Luxuriöse Doppelhaushälfte in Top-Qualität mit Panoramablick
898.750 €
Kaufpreis
4
Zimmer
immobilien.de Nr.: 9240332
Objektnummer: 84
Kaufpreis
| Kaufpreis | 898.750 € |
Wohnfläche, Grundstück & Bausubstanz
| Gesamtfläche | 186 m² |
| Grundstücksfläche | 626 m² |
| Zimmer | 4 |
| Baujahr | 2025 |
| Verfügbar ab | keine Angabe |
Beschreibung der Immobilie
Diese stilvolle Doppelhaushälfte mit Pool und Meerblick von beiden Etagen befindet sich in einer äußerst attraktiven und begehrten Lage.
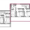
Das Erdgeschoss besteht aus einem offenen Wohnzimmer, einer Küche und einem Esszimmer mit großen Glaswänden, die mit einer überdachten Terrasse, einem beheizten Pool und einem Sonnendeck verbunden sind. In dieser Bauphase hat der Investor die Möglichkeit vorgesehen, beide Gebäude zu verbinden und einen Weg zwischen ihnen zu schaffen, falls sich jemand für den Kauf zweier fantastischer Häuser mit hervorragendem Zusammenlegungspotenzial entscheidet, was das Gesamtpaket abrunden würde.
Auf dieser Etage befinden sich außerdem ein Gäste-WC, ein Technikraum, ein Heizraum und eine Außentoilette.
Im ersten Stock befinden sich drei Schlafzimmer mit eigenen Bädern und Zugang zur Terrasse, von der aus man einen beruhigenden Blick auf wunderschöne Sonnenuntergänge und das Meer hat.
Im gesamten Haus wird eine Fußbodenheizung installiert, mit Klimaanlage für zusätzliches Heizen und Kühlen.
Die Villa wird mit außergewöhnlich hochwertigen Materialien gebaut und kann mit maßgefertigten Designermöbeln ausgestattet werden.
In dieser Phase besteht die Möglichkeit, die endgültige Dekoration und den endgültigen Preis auszuhandeln. Es besteht die Möglichkeit, beide Häuser mit großem Potenzial für ein Tourismusgeschäft zu erwerben oder im Zentrum dieser bekannten istrischen Stadt eine eigene Immobilie zu errichten.
Für weitere Informationen zu diesem Projekt stehen wir Ihnen gerne zur Verfügung.
Die Immobilie kann ausschließlich nach Unterzeichnung eines Vermittlungsvertrags besichtigt werden, der die Grundlage für das weitere Verfahren im Zusammenhang mit dem Kauf und Verkauf sowie der Provisionserhebung gemäß dem Gesetz über die Immobilienvermittlung bildet.
Im Falle eines Kaufvertrags beträgt die Vermittlungsgebühr 3% ohne Mehrwertsteuer und wird sowohl vom Käufer als auch vom Verkäufer bei der Unterzeichnung des Vorvertrags/Kaufvertrags erhoben.
ID CODE: 84
Das Erdgeschoss besteht aus einem offenen Wohnzimmer, einer Küche und einem Esszimmer mit großen Glaswänden, die mit einer überdachten Terrasse, einem beheizten Pool und einem Sonnendeck verbunden sind. In dieser Bauphase hat der Investor die Möglichkeit vorgesehen, beide Gebäude zu verbinden und einen Weg zwischen ihnen zu schaffen, falls sich jemand für den Kauf zweier fantastischer Häuser mit hervorragendem Zusammenlegungspotenzial entscheidet, was das Gesamtpaket abrunden würde.
Auf dieser Etage befinden sich außerdem ein Gäste-WC, ein Technikraum, ein Heizraum und eine Außentoilette.
Im ersten Stock befinden sich drei Schlafzimmer mit eigenen Bädern und Zugang zur Terrasse, von der aus man einen beruhigenden Blick auf wunderschöne Sonnenuntergänge und das Meer hat.
Im gesamten Haus wird eine Fußbodenheizung installiert, mit Klimaanlage für zusätzliches Heizen und Kühlen.
Die Villa wird mit außergewöhnlich hochwertigen Materialien gebaut und kann mit maßgefertigten Designermöbeln ausgestattet werden.
In dieser Phase besteht die Möglichkeit, die endgültige Dekoration und den endgültigen Preis auszuhandeln. Es besteht die Möglichkeit, beide Häuser mit großem Potenzial für ein Tourismusgeschäft zu erwerben oder im Zentrum dieser bekannten istrischen Stadt eine eigene Immobilie zu errichten.
Für weitere Informationen zu diesem Projekt stehen wir Ihnen gerne zur Verfügung.
Die Immobilie kann ausschließlich nach Unterzeichnung eines Vermittlungsvertrags besichtigt werden, der die Grundlage für das weitere Verfahren im Zusammenhang mit dem Kauf und Verkauf sowie der Provisionserhebung gemäß dem Gesetz über die Immobilienvermittlung bildet.
Im Falle eines Kaufvertrags beträgt die Vermittlungsgebühr 3% ohne Mehrwertsteuer und wird sowohl vom Käufer als auch vom Verkäufer bei der Unterzeichnung des Vorvertrags/Kaufvertrags erhoben.
ID CODE: 84
Ausstattungsmerkmale
| Anzahl der Etagen im Haus | 1 |
| Bad | 3 |
Karte wird geladen...
Objektstandort
52440 Poreč
- Istrien
Kontaktanfrage senden
Über den Anbieter
Nekretnine1 j.d.o.o.
Pomerio 27
51000 Rijeka
Kontakt
| Telefon | +385 95 714 8583 |
| Website | www.nekretnine1.hr |
Ansprechpartner/in
Nekretnine1.hr