Zu vermieten, Zagreb, Gornji Grad, Familienhaus, Schwimmbad
8.000 €
Kaltmiete
8.000 €
Kaltmiete (netto)
immobilien.de Nr.: 9220568
Objektnummer: 14670-1
Mietpreis & Nebenkosten
| Kaltmiete | 8.000 € |
| Kaltmiete (netto) | 8.000 € |
| Nebenkosten | Keine Angabe |
Wohnfläche, Grundstück & Bausubstanz
| Gesamtfläche | 444 m² |
| Grundstücksfläche | 967 m² |
| Fläche Sonstiges | 2 m² |
| Baujahr | 1975 |
| Letzte Modernisierung | 2012 |
| Verfügbar ab | keine Angabe |
Energie
| Energieeffizienzklasse | U izradi |
Beschreibung der Immobilie
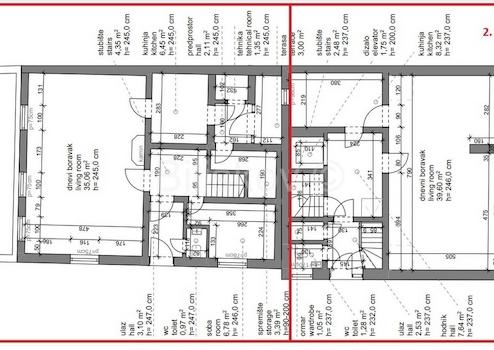
www.biliskov.com ID 14670Gornji Grad, JurjevskaKomplett renoviertes Familienhaus mit einer Fläche von 444 m² auf einem Grundstück von 967 m². Das Haus befindet sich in einer sehr schönen Lage, in unmittelbarer Nähe des Stadtzentrums und dennoch von Grün umgeben.Das Haus hat zwei separate Eingänge und kann als zwei separate Einheiten funktionieren. Die erste Etage ist miteinander verbunden.Der erste Teil des Hauses umfasst ein Erdgeschoss und ein Obergeschoss, bestehend aus einem Eingangsflur, einem WC, einem Wohnzimmer mit Kamin, einer Küche und einem Arbeitszimmer; im Obergeschoss befinden sich drei Schlafzimmer, jedes mit eigenem Badezimmer.Der zweite Teil des Hauses besteht aus einem Untergeschoss mit einem Heizraum, einem Badezimmer, einem technischen Raum für Geräte und einem Aufzug, der alle vier Etagen des zweiten Hauses verbindet.Im Erdgeschoss gibt es ein Wohnzimmer, ein WC, einen Flur und eine überdachte Terrasse; im Obergeschoss befinden sich drei Schlafzimmer, zwei Badezimmer und Garderoben; im obersten Stockwerk gibt es ein grosses Wohnzimmer, ein Badezimmer und eine überdachte Terrasse mit einem schönen Blick auf Tuškanac und Dubravkin put.Das Haus wurde 2012 komplett renoviert.Fenster: AluminiumHeizung: Etagenheizung – GasPreis: 8.000 € Miete beinhaltet alle Kosten.Agenturgebühr: Eine monatliche Miete + MwSt
Ausstattungsmerkmale
| Balkone | 1 |
| Garten | |
| Terrassen | 1 |
Karte wird geladen...
Objektstandort
Zagreb
- Zagreb (Stadt) [Grad Zagreb]
Kontaktanfrage senden
Über den Anbieter
Biliskov nekretnine d.o.o.
Cesta dr. F. Tudmana 866A
21216 Kastel Stari
Kontakt
| Telefon | +38598411775 |