Ibiza - Exklusive Luxus-Suite im Neubau-Refugium mit Meerblick, Terrasse und Stellplätzen
3.950.000 €
Kaufpreis
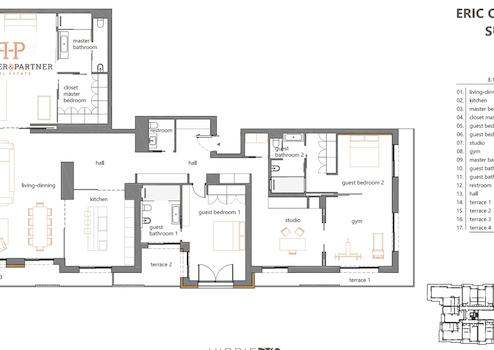
308,15 m²
Wohnfläche
367,05 m²
Nutzfläche
4
Zimmer
immobilien.de Nr.: 9219574
Objektnummer: 25-162NS
Kaufpreis
| Kaufpreis | 3.950.000 € |
| Stellplatz Tiefgarage Kaufpreis | 0 € |
Wohnfläche, Grundstück & Bausubstanz
| Wohnfläche | 308,15 m² |
| Nutzfläche | 367,05 m² |
| Zimmer | 4 |
| Verfügbar ab | keine Angabe |
| Zustand | Erstbezug |
Beschreibung der Immobilie
Dieses bezugsfertige Suite verkörpert mediterranen Luxus in seiner reinsten Form. In einer der exklusivsten Anlagen der Insel gelegen, vereint es visionäre Architektur mit hochwertigen Materialien wie Holz, Naturstein und Glas. Durchdachte Gestaltung, elegante vertikale Gärten und großzügige Raumkonzepte machen dieses Zuhause zu einem Rückzugsort mit Charakter – stilvoll, lichtdurchflutet und außergewöhnlich komfortabel.
Mit einer Gesamtfläche von über 367 m² inklusive Terrasse bietet diese Immobilie Raum für anspruchsvolles Wohnen in einer der begehrtesten Lagen Europas.
Mit einer Gesamtfläche von über 367 m² inklusive Terrasse bietet diese Immobilie Raum für anspruchsvolles Wohnen in einer der begehrtesten Lagen Europas.
Ausstattungsmerkmale
| Anzahl der Etagen im Haus | 4 |
| Inserat befindet sich im Stockwerk | 3 |
| Küche | Einbauküche |
| Bad | 3 |
| Fahrstuhl |
Höchster Wohnkomfort auf höchstem Niveau
- 3 großzügige Schlafzimmer
- 3 luxuriöse Badezimmer mit Spa-Charakter
- Offenes Wohn- und Esskonzept mit bodentiefen Fenstern
- Voll ausgestattete Designerküche mit Geräten von Gaggenau und Armaturen von Dornbracht
- Nachhaltige Fußbodenheizung und -kühlung
- Hochwertige Designermöblierung
- Private Tiefgaragenstellplätze mit E-Ladestation
- Exklusive Residenz-Services
- 24/7 Concierge-Service
- Indoor-Pool im Beach-Stil
- Spa- und Wellnessbereich
- Outdoor-Fitnessbereich und Chill-Out-Garten mit BBQ-Zone
-Elektrisches E-Bike als Willkommensgeschenk
- 3 großzügige Schlafzimmer
- 3 luxuriöse Badezimmer mit Spa-Charakter
- Offenes Wohn- und Esskonzept mit bodentiefen Fenstern
- Voll ausgestattete Designerküche mit Geräten von Gaggenau und Armaturen von Dornbracht
- Nachhaltige Fußbodenheizung und -kühlung
- Hochwertige Designermöblierung
- Private Tiefgaragenstellplätze mit E-Ladestation
- Exklusive Residenz-Services
- 24/7 Concierge-Service
- Indoor-Pool im Beach-Stil
- Spa- und Wellnessbereich
- Outdoor-Fitnessbereich und Chill-Out-Garten mit BBQ-Zone
-Elektrisches E-Bike als Willkommensgeschenk
Karte wird geladen...
Objektstandort
Ibiza
Lage & Infrastruktur
Objektstandort
Ibiza
Diese Suite befindet sich nur eine Gehminute vom Playa d’en Bossa entfernt – einem der bekanntesten Strände der Insel. Hier treffen türkisblaues Wasser, exklusive Beach Clubs und das legendäre Nachtleben Ibizas aufeinander. Die zentrale Lage bietet optimale Anbindung an Flughafen, Marina und Ibiza-Stadt – und dennoch genießen Sie maximale Privatsphäre in einer der exklusivsten Wohngegenden der Insel.
Kontaktanfrage senden
Über den Anbieter
HUETHER & PARTNER SL
Ronda del Oeste 76
07680 Porto Cristo
Kontakt
| Telefon | 0034971834007 |
| Mobil | 00491728141227 |
Ansprechpartner/in
Frau Sabine Benkenstein