OPATIJA, IČIĆI - Baugrundstück 2800m2 MIT STANDORTERLAUBNIS!! Und mit Blick auf das Meer für ein Wohnhaus - Wohnungen/Appartements
550.000 €
Kaufpreis
immobilien.de Nr.: 9212996
Objektnummer: 41434
Kaufpreis
| Kaufpreis | 550.000 € |
Wohnfläche, Grundstück & Bausubstanz
| Gesamtfläche | 1.400 m² |
| Verfügbar ab | keine Angabe |
Beschreibung der Immobilie
OPATIJA, IČIĆI - Baugrundstück 2800m2 MIT STANDORTERLAUBNIS!! Und mit Blick auf das Meer für ein Wohnhaus - Wohnungen/Appartements
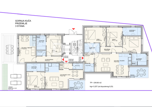
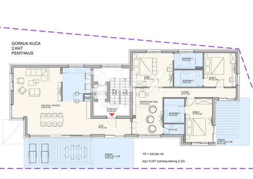
Das Grundstück in der Natur besteht aus 2 Grundstücken mit jeweils ca. 1400 m2, und für eines dieser Grundstücke wurde eine Standortgenehmigung für ein Objekt von 1131 m2 (BRP) + Schwimmbad erhalten. Derzeit liegt keine Genehmigung vor, es wurde jedoch eine Standortgenehmigung beantragt, eine Genehmigung für das fertiggestellte Projekt und dieselbe Genehmigung für das erste Grundstück. Die Standortgenehmigung wurde für das Gebäude eingeholt, das (gemäß dem in den Bildern gezeigten Projekt) aus Folgendem besteht: - KELLER mit einer Gesamtfläche von 381 m2 - Garagenplatz mit Parkplätzen + Platz für Tanks + Wellness (oder einem anderen Inhalt). auf Wunsch des potenziellen Käufers) - ERDGESCHOSS - Gesamtfläche 250 m2 – 3 Wohnungen (zwei Wohnungen 1F+DB und eine Wohnung 2F+DB) - 1. STOCK Gesamtfläche 250 m2 – 2 Wohnungen – (zwei Wohnungen 3B+DB) - 2. STOCK GESCHOSS Gesamtfläche 250m2 – 1 Penthouse (3F+DB) ) Das Baugrundstück ist 700 m Luftlinie vom Meer entfernt, hat Meerblick und eine südliche Ausrichtung. Die Geländekonfiguration ist völlig flach. Das Feld liegt in einer ruhigen und friedlichen Lage und direkt neben der asphaltierten Straße. Alle Versorgungseinrichtungen vor Ort. Sauberes und ordentliches Anwesen. Das Grundstück ist geräumt und zum Bau bereit. Das künftig auf diesem Grundstück gebaute Anwesen hätte bereits vom Erdgeschoss aus einen Blick auf das Meer, aber vom ersten Stock aus hätte man einen offenen Panoramablick auf das Meer, die gesamte Kvarner-Bucht und die Inseln. Da das Baugrundstück einer juristischen Person (Firma) gehört, die nur für dieses Projekt offen ist, besteht auch die Möglichkeit, das gesamte Unternehmen zusammen mit dem Grundstück zu kaufen. Dieses Anwesen liegt 700 m Luftlinie vom Meer entfernt, bzw. 1,6 km mit dem Auto (ca. 4 Minuten). Eine gute Gelegenheit für Investoren, die sich mit dem Bau von Wohngebäuden, Wohnungen und Immobilien beschäftigen. IMMOBILIEN IN AUSGEZEICHNETER UND EINZIGARTIGER LAGE MIT GROSSEM POTENZIAL!!! IČIĆI: Ičići ist eine kleine Touristenstadt mit etwa 800 Einwohnern an der nördlichen Adria in der Kvarner-Bucht. Der Ort liegt 5 km von Opatija und 15 km von Rijeka entfernt. Es liegt am Fuße des 2300 km hohen Berges Učka und seine Umgebung wurde aufgrund seiner Einzigartigkeit und natürlichen Schönheit zum Naturpark erklärt. Die Bevölkerung ist hauptsächlich im Tourismus und in der Gastronomie tätig. Aufgrund seiner günstigen Lage hat sich Ičići im Laufe der Jahre zu einem echten Touristenziel mit zahlreichen Angeboten entwickelt. Neben einem reichhaltigen Verpflegungsangebot bietet es auch die Möglichkeit, verschiedene Sportarten auszuüben, Ausflüge zu unternehmen und abends auszugehen. Von Ičić aus hat man einen wunderbaren Blick auf die beiden größten kroatischen Inseln Krk und Cres, die auch mit dem Boot besucht werden können. Dieser Ort ist vor allem für seine hervorragend ausgestattete ACI Marina bekannt. Dank der Vielfalt an Unterkünften (Hotels, Apartments, Wohnmobile) sowie Sport- und Freizeiteinrichtungen (Tennisplätze, Wassersport, Segeln...) hat der Wassertourismus hier einen Raum für die Entwicklung gefunden. Auf dem Weg von Ičić nach Učka stoßen Sie auf die kleine mittelalterliche Stadt Veprinac, die über ein eigenes Gesetz verfügt und auf das Jahr 1500 zurückgeht. In der Nähe befindet sich der Parkplatz Ičići, der sich in Strandnähe und nicht weit von den Tennisplätzen befindet. Die Haupttouristenattraktion von Ičić ist definitiv der Strand. Es liegt im Zentrum der Stadt und besteht aus einem Beton- und einem Sandteil. Jedes Jahr wird in die Verschönerung des Strandes investiert, weshalb der Strand Jahr für Jahr die Blaue Flagge erhält. Der Eintritt ist frei und für jedermann zugänglich. Der Strand wird auf der einen Seite von der ACI-Marina begrenzt, auf der anderen Seite befindet sich ein kleinerer Hafen, der seit der Zeit der Stadt Ičići existiert und sich parallel zur Stadt entwickelt hat. Dieser Hafen akzeptiert kleinere Boote und erinnert daran, dass Ičići ein Küstenort ist. Es ist erwähnenswert, dass die berühmte Lungomare, eine Küstenpromenade, die 1885 vom österreichischen Kaiser Franz Joseph I. erbaut wurde, durch Ičići verläuft. Diese wunderschön dekorierte Küstenpromenade ist 12 km lang und erstreckt sich von Voloski bis Lovran, und Ičići liegt fast auf halber Strecke. Nachts ist es dezent beleuchtet, sodass die Voraussetzungen für romantische Spaziergänge geschaffen sind. Die Stadt Ičići ist durch Überland- und Stadtbusse mit anderen Städten verbunden. Besonders bekannt sind in den Küstenstädten die sogenannten „Fischerfeste“, die in den Sommermonaten stattfinden. Ičići hat auch eigene Feste, über die sowohl die Einheimischen als auch die Touristen einige Tage im Voraus durch zahlreiche Plakate informiert werden. Opatija: Opatija, eine wunderschöne Küstenstadt an der Adria, ist ein beliebtes Touristenziel für Touristen aus aller Welt. Die Stadt ist von wunderschöner Natur umgeben und liegt am Fuße des Berges Učka. Immobilien in Opatija bieten einen unbezahlbaren Blick auf das Meer und die umliegenden Inseln Krk und Cres. Opatija ist umgeben von charmanten Kleinstädten mit alten Häusern in engen, geschichtsträchtigen Gassen. Die Straßen der Stadt Opatija bestehen aus Anwesen, die durch ihre besondere Architektur und Villen aus der Habsburgerzeit hervorstechen. Eine große Auswahl an Stränden, kristallklares Meer und verschiedene touristische Dienstleistungen sind die Schlüsselfaktoren, die Opatija zu einem perfekten Reiseziel machen, das von den Nachbarländern als ausgezeichnete Investitionswahl anerkannt wird. Die Immobilienpreise in dieser Gegend steigen, die Mietauslastung ist ausgezeichnet, was zu einer Kapitalrendite von 5 bis 10 % geführt hat und ausländische Investoren anzieht.
Sehr geehrte Kunden, die Agenturprovision wird gemäß den Allgemeinen Geschäftsbedingungen www.dux-nekretnine.hr/opci-uvjeti-poslovanja berechnet
ID CODE: 41434
Das Grundstück in der Natur besteht aus 2 Grundstücken mit jeweils ca. 1400 m2, und für eines dieser Grundstücke wurde eine Standortgenehmigung für ein Objekt von 1131 m2 (BRP) + Schwimmbad erhalten. Derzeit liegt keine Genehmigung vor, es wurde jedoch eine Standortgenehmigung beantragt, eine Genehmigung für das fertiggestellte Projekt und dieselbe Genehmigung für das erste Grundstück. Die Standortgenehmigung wurde für das Gebäude eingeholt, das (gemäß dem in den Bildern gezeigten Projekt) aus Folgendem besteht: - KELLER mit einer Gesamtfläche von 381 m2 - Garagenplatz mit Parkplätzen + Platz für Tanks + Wellness (oder einem anderen Inhalt). auf Wunsch des potenziellen Käufers) - ERDGESCHOSS - Gesamtfläche 250 m2 – 3 Wohnungen (zwei Wohnungen 1F+DB und eine Wohnung 2F+DB) - 1. STOCK Gesamtfläche 250 m2 – 2 Wohnungen – (zwei Wohnungen 3B+DB) - 2. STOCK GESCHOSS Gesamtfläche 250m2 – 1 Penthouse (3F+DB) ) Das Baugrundstück ist 700 m Luftlinie vom Meer entfernt, hat Meerblick und eine südliche Ausrichtung. Die Geländekonfiguration ist völlig flach. Das Feld liegt in einer ruhigen und friedlichen Lage und direkt neben der asphaltierten Straße. Alle Versorgungseinrichtungen vor Ort. Sauberes und ordentliches Anwesen. Das Grundstück ist geräumt und zum Bau bereit. Das künftig auf diesem Grundstück gebaute Anwesen hätte bereits vom Erdgeschoss aus einen Blick auf das Meer, aber vom ersten Stock aus hätte man einen offenen Panoramablick auf das Meer, die gesamte Kvarner-Bucht und die Inseln. Da das Baugrundstück einer juristischen Person (Firma) gehört, die nur für dieses Projekt offen ist, besteht auch die Möglichkeit, das gesamte Unternehmen zusammen mit dem Grundstück zu kaufen. Dieses Anwesen liegt 700 m Luftlinie vom Meer entfernt, bzw. 1,6 km mit dem Auto (ca. 4 Minuten). Eine gute Gelegenheit für Investoren, die sich mit dem Bau von Wohngebäuden, Wohnungen und Immobilien beschäftigen. IMMOBILIEN IN AUSGEZEICHNETER UND EINZIGARTIGER LAGE MIT GROSSEM POTENZIAL!!! IČIĆI: Ičići ist eine kleine Touristenstadt mit etwa 800 Einwohnern an der nördlichen Adria in der Kvarner-Bucht. Der Ort liegt 5 km von Opatija und 15 km von Rijeka entfernt. Es liegt am Fuße des 2300 km hohen Berges Učka und seine Umgebung wurde aufgrund seiner Einzigartigkeit und natürlichen Schönheit zum Naturpark erklärt. Die Bevölkerung ist hauptsächlich im Tourismus und in der Gastronomie tätig. Aufgrund seiner günstigen Lage hat sich Ičići im Laufe der Jahre zu einem echten Touristenziel mit zahlreichen Angeboten entwickelt. Neben einem reichhaltigen Verpflegungsangebot bietet es auch die Möglichkeit, verschiedene Sportarten auszuüben, Ausflüge zu unternehmen und abends auszugehen. Von Ičić aus hat man einen wunderbaren Blick auf die beiden größten kroatischen Inseln Krk und Cres, die auch mit dem Boot besucht werden können. Dieser Ort ist vor allem für seine hervorragend ausgestattete ACI Marina bekannt. Dank der Vielfalt an Unterkünften (Hotels, Apartments, Wohnmobile) sowie Sport- und Freizeiteinrichtungen (Tennisplätze, Wassersport, Segeln...) hat der Wassertourismus hier einen Raum für die Entwicklung gefunden. Auf dem Weg von Ičić nach Učka stoßen Sie auf die kleine mittelalterliche Stadt Veprinac, die über ein eigenes Gesetz verfügt und auf das Jahr 1500 zurückgeht. In der Nähe befindet sich der Parkplatz Ičići, der sich in Strandnähe und nicht weit von den Tennisplätzen befindet. Die Haupttouristenattraktion von Ičić ist definitiv der Strand. Es liegt im Zentrum der Stadt und besteht aus einem Beton- und einem Sandteil. Jedes Jahr wird in die Verschönerung des Strandes investiert, weshalb der Strand Jahr für Jahr die Blaue Flagge erhält. Der Eintritt ist frei und für jedermann zugänglich. Der Strand wird auf der einen Seite von der ACI-Marina begrenzt, auf der anderen Seite befindet sich ein kleinerer Hafen, der seit der Zeit der Stadt Ičići existiert und sich parallel zur Stadt entwickelt hat. Dieser Hafen akzeptiert kleinere Boote und erinnert daran, dass Ičići ein Küstenort ist. Es ist erwähnenswert, dass die berühmte Lungomare, eine Küstenpromenade, die 1885 vom österreichischen Kaiser Franz Joseph I. erbaut wurde, durch Ičići verläuft. Diese wunderschön dekorierte Küstenpromenade ist 12 km lang und erstreckt sich von Voloski bis Lovran, und Ičići liegt fast auf halber Strecke. Nachts ist es dezent beleuchtet, sodass die Voraussetzungen für romantische Spaziergänge geschaffen sind. Die Stadt Ičići ist durch Überland- und Stadtbusse mit anderen Städten verbunden. Besonders bekannt sind in den Küstenstädten die sogenannten „Fischerfeste“, die in den Sommermonaten stattfinden. Ičići hat auch eigene Feste, über die sowohl die Einheimischen als auch die Touristen einige Tage im Voraus durch zahlreiche Plakate informiert werden. Opatija: Opatija, eine wunderschöne Küstenstadt an der Adria, ist ein beliebtes Touristenziel für Touristen aus aller Welt. Die Stadt ist von wunderschöner Natur umgeben und liegt am Fuße des Berges Učka. Immobilien in Opatija bieten einen unbezahlbaren Blick auf das Meer und die umliegenden Inseln Krk und Cres. Opatija ist umgeben von charmanten Kleinstädten mit alten Häusern in engen, geschichtsträchtigen Gassen. Die Straßen der Stadt Opatija bestehen aus Anwesen, die durch ihre besondere Architektur und Villen aus der Habsburgerzeit hervorstechen. Eine große Auswahl an Stränden, kristallklares Meer und verschiedene touristische Dienstleistungen sind die Schlüsselfaktoren, die Opatija zu einem perfekten Reiseziel machen, das von den Nachbarländern als ausgezeichnete Investitionswahl anerkannt wird. Die Immobilienpreise in dieser Gegend steigen, die Mietauslastung ist ausgezeichnet, was zu einer Kapitalrendite von 5 bis 10 % geführt hat und ausländische Investoren anzieht.
Sehr geehrte Kunden, die Agenturprovision wird gemäß den Allgemeinen Geschäftsbedingungen www.dux-nekretnine.hr/opci-uvjeti-poslovanja berechnet
ID CODE: 41434
Ausstattungsmerkmale
| Anzahl der Etagen im Haus | 0 |
Karte wird geladen...
Objektstandort
51410 Opatija - Okolica
- Kvarner Region [Primorsko-Goranska]
Kontaktanfrage senden
Über den Anbieter
DUX Nekretnine d.o.o.
Tizianova
51000 Rijeka
Kontakt
| Telefon | +385 91 480 8808 |
| Mobil | +385 91 480 8808 |
Ansprechpartner/in
Patrik Hrštić