PRIMOŠTEN – MODERNE WOHNUNG IM ERSTEN STOCK (S3), FLÄCHE 73,45 M²
323.000 €
Kaufpreis
3
Zimmer
immobilien.de Nr.: 9179239
Objektnummer: 231
Kaufpreis
| Kaufpreis | 323.000 € |
Wohnfläche, Grundstück & Bausubstanz
| Gesamtfläche | 73 m² |
| Zimmer | 3 |
| Verfügbar ab | keine Angabe |
Beschreibung der Immobilie
In einer ruhigen und gepflegten Lage in Primošten steht eine elegante Wohnung zum Verkauf, gelegen im ersten Stock eines modernen Wohngebäudes mit insgesamt sieben Wohneinheiten. Die Lage bietet eine ideale Kombination aus Privatsphäre und guter Erreichbarkeit – nahe aller Annehmlichkeiten, aber dennoch abgeschirmt vom sommerlichen Trubel.
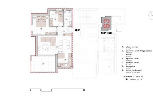
Die Wohnung hat eine Fläche von 73,45 m² und überzeugt mit einem funktionalen Grundriss und lichtdurchflutetem Interieur. Der zentrale Bereich ist ein offener Wohnraum mit Küche und Essbereich (21,26 m²). Zudem verfügt die Wohnung über zwei Schlafzimmer, ein Badezimmer, einen Eingangsbereich sowie eine überdachte Terrasse (6,94 m²).
Das Gebäude wird nach höchsten Standards mit hochwertigen Materialien errichtet. Stahlbetonkonstruktion, Fassade mit 10 cm Steinwolle isoliert. Außen-Aluminiumfenster mit Dreifachverglasung, elektrischen Rollläden und Insektenschutzgittern. Die Wohnung verfügt über Sicherheitstüren, Fußbodenheizung, Klimaanlagen in jedem Raum sowie Bodenbeläge aus hochwertiger Keramik und Parkett (verschiedene Ausführungen nach Wahl des Käufers).
Ein eigener Parkplatz in der Garage oder im Freien ist vorhanden, jeder mit Ladestation für Elektrofahrzeuge. Das Objekt befindet sich derzeit im Bau, Fertigstellung der Konstruktion ist Anfang 2026 geplant, der Einzug Ende Käufer haben die Möglichkeit, in Absprache mit dem Investor die Innenausstattung individuell mitzugestalten.
Die Maklerprovision beträgt 3 % des erzielten Kaufpreises.
Für weitere Informationen und Besichtigungstermine kontaktieren Sie uns bitte.
ID CODE: 231
Die Wohnung hat eine Fläche von 73,45 m² und überzeugt mit einem funktionalen Grundriss und lichtdurchflutetem Interieur. Der zentrale Bereich ist ein offener Wohnraum mit Küche und Essbereich (21,26 m²). Zudem verfügt die Wohnung über zwei Schlafzimmer, ein Badezimmer, einen Eingangsbereich sowie eine überdachte Terrasse (6,94 m²).
Das Gebäude wird nach höchsten Standards mit hochwertigen Materialien errichtet. Stahlbetonkonstruktion, Fassade mit 10 cm Steinwolle isoliert. Außen-Aluminiumfenster mit Dreifachverglasung, elektrischen Rollläden und Insektenschutzgittern. Die Wohnung verfügt über Sicherheitstüren, Fußbodenheizung, Klimaanlagen in jedem Raum sowie Bodenbeläge aus hochwertiger Keramik und Parkett (verschiedene Ausführungen nach Wahl des Käufers).
Ein eigener Parkplatz in der Garage oder im Freien ist vorhanden, jeder mit Ladestation für Elektrofahrzeuge. Das Objekt befindet sich derzeit im Bau, Fertigstellung der Konstruktion ist Anfang 2026 geplant, der Einzug Ende Käufer haben die Möglichkeit, in Absprache mit dem Investor die Innenausstattung individuell mitzugestalten.
Die Maklerprovision beträgt 3 % des erzielten Kaufpreises.
Für weitere Informationen und Besichtigungstermine kontaktieren Sie uns bitte.
ID CODE: 231
Ausstattungsmerkmale
| Anzahl der Etagen im Haus | 4 |
| Inserat befindet sich im Stockwerk | 1 |
| Bad | 1 |
Karte wird geladen...
Objektstandort
22202 Primošten
- Dalmatien-Sibenik [Sibensko-Kninska]
Kontaktanfrage senden
Über den Anbieter
Nekretnine1 j.d.o.o.
Pomerio 27
51000 Rijeka
Kontakt
| Telefon | +385 95 714 8583 |
| Website | www.nekretnine1.hr |
Ansprechpartner/in
Nekretnine1.hr