Dugo Selo - Istok, Dugo Selo, Gewerbeimmobilie, 588m², Investitionsmöglichkeit
980.000 €
Kaufpreis
10
Zimmer
immobilien.de Nr.: 9149306
Objektnummer: 2777
Kaufpreis
| Kaufpreis | 980.000 € |
Wohnfläche, Grundstück & Bausubstanz
| Gesamtfläche | 588 m² |
| Bürofläche | 588 m² |
| Zimmer | 10 |
| Baujahr | 2008 |
| Verfügbar ab | keine Angabe |
Beschreibung der Immobilie
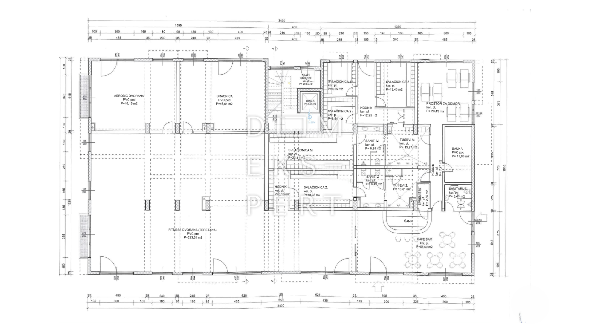
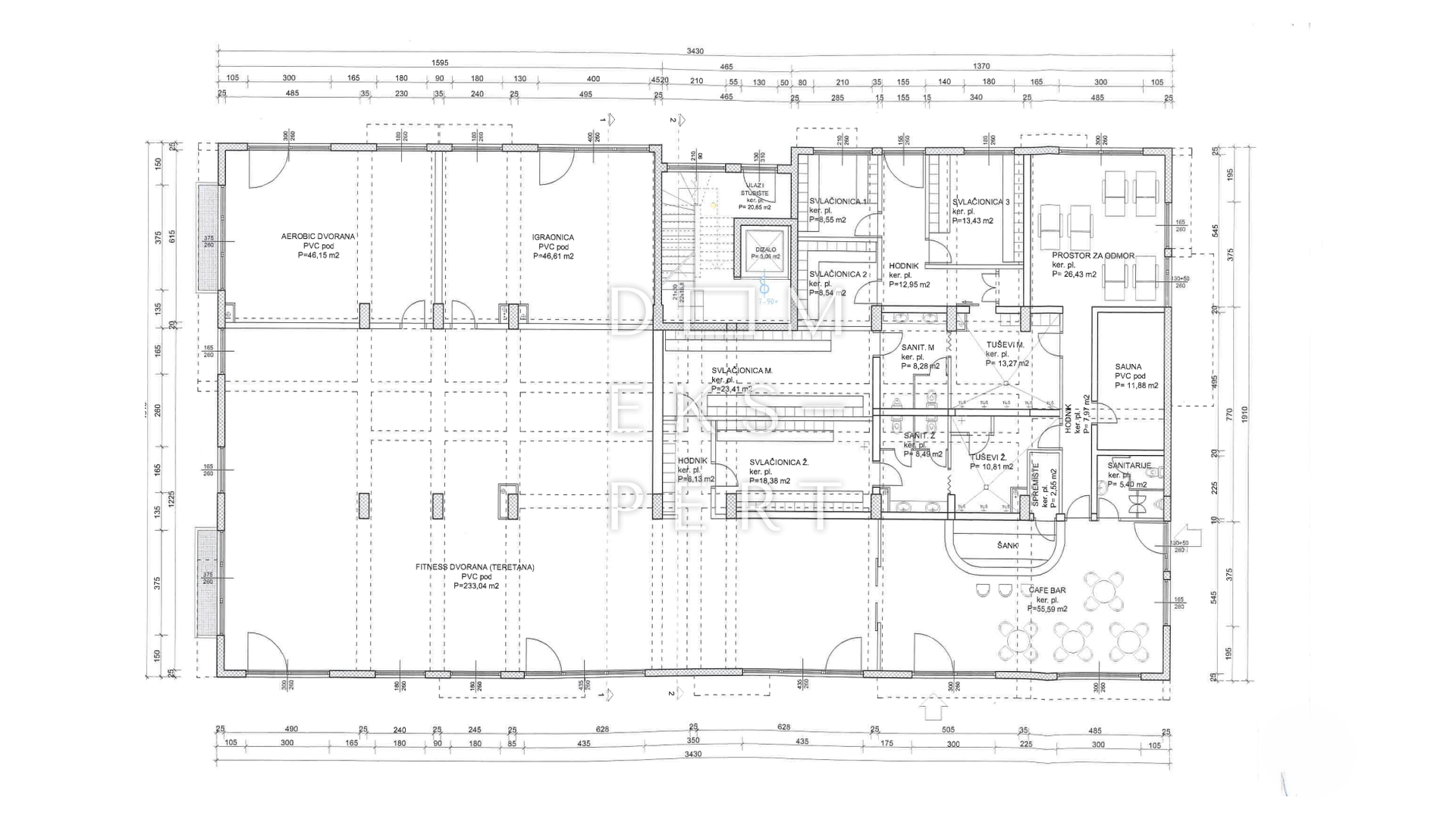
Zum Verkauf steht die gesamte Erdgeschossfläche eines Wohn- und Geschäftsgebäudes mit drei Stockwerken, Baujahr 2008.
Gesamtnutzfläche: 588,27 m²
Die Fläche besteht aus:
Fitnessraum – 233 m²
Aerobicraum – 46,15 m²
Spielzimmer – 46,61 m²
Café-Bar – 55,59 m²
Ruheraum – 26,43 m²
5 Umkleideräume – (23,41 m², 18,38 m², 8,55 m², 8,54 m², 13,43 m²)
3 Toiletten – (8,28 m², 8,49 m², 5,40 m²)
2 Duschbereiche – (10,81 m², 13,27 m²)
2 Flure – (6,13 m² und 12,95 m²)
Abstellraum – 2,55 m²
Weitere Vorteile:
13 private Parkplätze im Hof (im Preis inbegriffen)
Gas-Zentralheizung (Etagenheizung)
Separate Zähler für alle Versorgungen – Abrechnung nach tatsächlichem Verbrauch (Strom, Wasser, Gas)
Lage:
Das Gebäude befindet sich in attraktiver Lage in Dugo Selo, in der Nähe von Geschäften und Kindergärten.
Der Bahnhof ist nur 1900 Meter entfernt.
Ideal geeignet für:
Fitness- oder Wellnesscenter
Kinderspielzimmer
Rehabilitations- oder Therapiezentrum
Schulungszentrum oder Sprachschule
Büro oder Gastronomiebetrieb
ID CODE: 2777
Gesamtnutzfläche: 588,27 m²
Die Fläche besteht aus:
Fitnessraum – 233 m²
Aerobicraum – 46,15 m²
Spielzimmer – 46,61 m²
Café-Bar – 55,59 m²
Ruheraum – 26,43 m²
5 Umkleideräume – (23,41 m², 18,38 m², 8,55 m², 8,54 m², 13,43 m²)
3 Toiletten – (8,28 m², 8,49 m², 5,40 m²)
2 Duschbereiche – (10,81 m², 13,27 m²)
2 Flure – (6,13 m² und 12,95 m²)
Abstellraum – 2,55 m²
Weitere Vorteile:
13 private Parkplätze im Hof (im Preis inbegriffen)
Gas-Zentralheizung (Etagenheizung)
Separate Zähler für alle Versorgungen – Abrechnung nach tatsächlichem Verbrauch (Strom, Wasser, Gas)
Lage:
Das Gebäude befindet sich in attraktiver Lage in Dugo Selo, in der Nähe von Geschäften und Kindergärten.
Der Bahnhof ist nur 1900 Meter entfernt.
Ideal geeignet für:
Fitness- oder Wellnesscenter
Kinderspielzimmer
Rehabilitations- oder Therapiezentrum
Schulungszentrum oder Sprachschule
Büro oder Gastronomiebetrieb
ID CODE: 2777
Ausstattungsmerkmale
| Anzahl der Etagen im Haus | 0 |
Karte wird geladen...
Objektstandort
Dugo Selo
- Zagreb (Region) [Zagrebacka]
Kontaktanfrage senden
Über den Anbieter
Dom Ekspert d.o.o.
Varazdinska cesta 111
10360 Sesvete
Kontakt
| Telefon | +385 1 201 3007 |
| Mobil | +385 99 360 1634 |
Ansprechpartner/in
Snježana Čabraja