ISTRIEN, SAVUDRIJA - Wohnung im 1. Stock in der Nähe des Meeres
255.000 €
Kaufpreis
4
Zimmer
immobilien.de Nr.: 9134765
Objektnummer: 40242
Kaufpreis
| Kaufpreis | 255.000 € |
Wohnfläche, Grundstück & Bausubstanz
| Gesamtfläche | 79 m² |
| Zimmer | 4 |
| Baujahr | 2025 |
| Verfügbar ab | keine Angabe |
Beschreibung der Immobilie
ISTRIEN, SAVUDRIJA – Ferienwohnung im 1. Stock in Meeresnähe
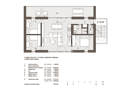
Wenn Sie Istrien von Nordwesten her betreten, stoßen Sie als erstes auf Savudrija, am äußersten Rand der gleichnamigen Halbinsel gelegen. Das geschichtsträchtige kleine Fischerdorf wurde erstmals im 12. Jahrhundert erwähnt, und archäologische Funde aus der Umgebung belegen, dass dieses Gebiet bereits in der Steinzeit besiedelt war. Die gegliederte, überwiegend felsige Küste, durchsetzt mit kleinen Kieselstränden und umgeben von üppiger mediterraner Vegetation, zieht zahlreiche Touristen an, die gerne wiederkommen. Die Ferienwohnung nimmt die gesamte Etage des Wohngebäudes ein und verfügt über einen separaten Eingang, was das Gefühl von Privatsphäre und Komfort noch weiter unterstreicht. Die Gesamtfläche der Ferienwohnung beträgt 79 m², davon sind 62,50 m² Wohnfläche und 22 m² eine geräumige, überdachte Loggia. Die Wohnung bietet einen freien Blick auf das Meer, was zur Atmosphäre eines authentischen mediterranen Lebensstils beiträgt. Der Grundriss der Wohnung ist sorgfältig durchdacht und umfasst einen Eingangsbereich, drei Schlafzimmer, ein modernes Badezimmer, ein separates WC sowie ein geräumiges Wohnzimmer mit Esszimmer und offener Küche. Vom Wohnzimmer aus gelangt man auf eine große Loggia – ein idealer Ort zum Entspannen und Genießen der Natur zu jeder Jahreszeit. Zur Wohnung gehören außerdem ausgewiesene Parkplätze im umzäunten Hof des Gebäudes. Das Gebäude umfasst insgesamt vier Wohneinheiten und wird schlüsselfertig verkauft. Die Fertigstellung aller Arbeiten ist für Herbst 2025 geplant.
Sehr geehrte Kunden, die Agenturprovision wird gemäß den Allgemeinen Geschäftsbedingungen berechnet: www.dux-nekretnine.hr/opci-uvjeti-poslovanja
ID CODE: 40242
Wenn Sie Istrien von Nordwesten her betreten, stoßen Sie als erstes auf Savudrija, am äußersten Rand der gleichnamigen Halbinsel gelegen. Das geschichtsträchtige kleine Fischerdorf wurde erstmals im 12. Jahrhundert erwähnt, und archäologische Funde aus der Umgebung belegen, dass dieses Gebiet bereits in der Steinzeit besiedelt war. Die gegliederte, überwiegend felsige Küste, durchsetzt mit kleinen Kieselstränden und umgeben von üppiger mediterraner Vegetation, zieht zahlreiche Touristen an, die gerne wiederkommen. Die Ferienwohnung nimmt die gesamte Etage des Wohngebäudes ein und verfügt über einen separaten Eingang, was das Gefühl von Privatsphäre und Komfort noch weiter unterstreicht. Die Gesamtfläche der Ferienwohnung beträgt 79 m², davon sind 62,50 m² Wohnfläche und 22 m² eine geräumige, überdachte Loggia. Die Wohnung bietet einen freien Blick auf das Meer, was zur Atmosphäre eines authentischen mediterranen Lebensstils beiträgt. Der Grundriss der Wohnung ist sorgfältig durchdacht und umfasst einen Eingangsbereich, drei Schlafzimmer, ein modernes Badezimmer, ein separates WC sowie ein geräumiges Wohnzimmer mit Esszimmer und offener Küche. Vom Wohnzimmer aus gelangt man auf eine große Loggia – ein idealer Ort zum Entspannen und Genießen der Natur zu jeder Jahreszeit. Zur Wohnung gehören außerdem ausgewiesene Parkplätze im umzäunten Hof des Gebäudes. Das Gebäude umfasst insgesamt vier Wohneinheiten und wird schlüsselfertig verkauft. Die Fertigstellung aller Arbeiten ist für Herbst 2025 geplant.
Sehr geehrte Kunden, die Agenturprovision wird gemäß den Allgemeinen Geschäftsbedingungen berechnet: www.dux-nekretnine.hr/opci-uvjeti-poslovanja
ID CODE: 40242
Ausstattungsmerkmale
| Anzahl der Etagen im Haus | 0 |
| Bad | 1 |
Karte wird geladen...
Objektstandort
52470 Umag
- Istrien
Kontaktanfrage senden
Über den Anbieter
DUX Nekretnine d.o.o.
Tizianova
51000 Rijeka
Kontakt
| Telefon | +385 91 480 8808 |
| Mobil | +385 91 480 8808 |
Ansprechpartner/in
Noa Čehić