VODICE, LUXUSVILLA (1) MIT POOL UND PANORAMABLICK
1.365.000 €
Kaufpreis
7
Zimmer
immobilien.de Nr.: 9116003
Objektnummer: 130
Preise & Kosten
| Kaufpreis | 1.365.000 € |
| Nebenkosten | keine Angabe |
Größe & Zustand
| Gesamtfläche | 376 m² |
| Zimmer | 7 |
| Verfügbar ab | keine Angabe |
Objektbeschreibung
Zum Verkauf steht eine Villa moderner Architektur, gelegen in erhöhter Position mit freiem Blick auf das Meer – von Šibenik bis zu den Kornaten. Die Immobilie befindet sich in einer ruhigen und gepflegten Umgebung und bietet ein hohes Maß an Funktionalität und Privatsphäre.
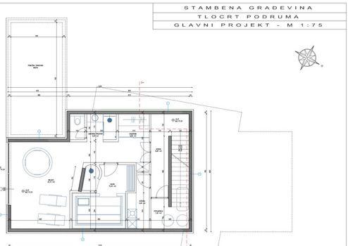
Die Villa erstreckt sich über drei Etagen:
Kellergeschoss (Nutzfläche 90,11 m²): Beinhaltet Technik- und Serviceräume wie Abstellraum, Maschinenraum, Waschküche, Garderoben sowie einen Bereich, der für Wellness/Spa vorgesehen ist.
Erdgeschoss: Umfasst ein Wohnzimmer mit offener Küche und Essbereich (ca. 52 m²), ein Schlafzimmer mit eigenem Bad und begehbarem Kleiderschrank (31 m²) sowie Zugang zur überdachten Terrasse. Zudem gibt es eine Sommerküche und eine zusätzliche überdachte Terrasse von 34,60 m². Auf der Vorderseite befinden sich der Pool und der Liegebereich.
Obergeschoss: Drei Schlafzimmer, jeweils mit eigenem Bad, begehbarem Kleiderschrank und Loggia.
Die Mehrwertsteuer ist im Preis inbegriffen – der Käufer zahlt keine Grunderwerbsteuer.
Voraussichtliche Fertigstellung: Anfang Für weitere Informationen und zur Vereinbarung eines Besichtigungstermins kontaktieren Sie uns gerne.
ID CODE: 130
Die Villa erstreckt sich über drei Etagen:
Kellergeschoss (Nutzfläche 90,11 m²): Beinhaltet Technik- und Serviceräume wie Abstellraum, Maschinenraum, Waschküche, Garderoben sowie einen Bereich, der für Wellness/Spa vorgesehen ist.
Erdgeschoss: Umfasst ein Wohnzimmer mit offener Küche und Essbereich (ca. 52 m²), ein Schlafzimmer mit eigenem Bad und begehbarem Kleiderschrank (31 m²) sowie Zugang zur überdachten Terrasse. Zudem gibt es eine Sommerküche und eine zusätzliche überdachte Terrasse von 34,60 m². Auf der Vorderseite befinden sich der Pool und der Liegebereich.
Obergeschoss: Drei Schlafzimmer, jeweils mit eigenem Bad, begehbarem Kleiderschrank und Loggia.
Die Mehrwertsteuer ist im Preis inbegriffen – der Käufer zahlt keine Grunderwerbsteuer.
Voraussichtliche Fertigstellung: Anfang Für weitere Informationen und zur Vereinbarung eines Besichtigungstermins kontaktieren Sie uns gerne.
ID CODE: 130
Ausstattung
| Anzahl der Etagen im Haus | 1 |
