ISTRIEN, CEROVLJE – Altes Steingebäude mit Renovierungsbeginn
250.000 €
Kaufpreis
5
Zimmer
immobilien.de Nr.: 9113946
Objektnummer: 39844
Kaufpreis
| Kaufpreis | 250.000 € |
Wohnfläche, Grundstück & Bausubstanz
| Gesamtfläche | 200 m² |
| Grundstücksfläche | 749 m² |
| Zimmer | 5 |
| Verfügbar ab | keine Angabe |
Beschreibung der Immobilie
ISTRIEN, CEROVLJE – Steinhaus mit laufender Renovierung
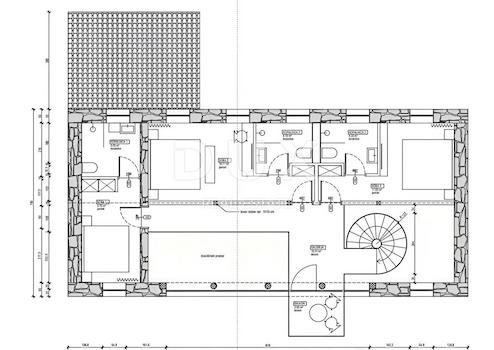
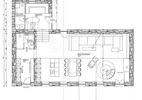
Cerovlje ist der zentrale Ort der gleichnamigen Gemeinde, die sich über die Hügellandschaft nordöstlich von Pazin erstreckt und zahlreiche Weiler und mehrere größere ländliche Siedlungen umfasst. Sie liegt 278 Meter über dem Meeresspiegel und hat eine Fläche von 4,99 km². In dieser Gemeinde befinden sich die längste Höhle Istriens, ein Olivenhain auf der höchsten Höhe und zwei Burgen. Durch die Gemeinde fließt der Fluss Pazinčica, und entlang des Flusstals verlaufen eine Eisenbahnlinie, dann eine Straße und schließlich eine Autobahn. In dieser Landschaft mit märchenhaften Ausblicken steht ein Steinhaus mit laufender Renovierung zum Verkauf. Es liegt eingebettet in Ruhe und dem Charme der Natur am Rande eines malerischen Steindorfes, das Ruhe und Tradition ausstrahlt und von dem aus sich ein Panoramablick auf die malerischen samtenen Hügel bietet. Das beeindruckende antike Gebäude aus der österreichisch-ungarischen Zeit erstreckt sich über zwei Etagen und muss renoviert werden. Die Renovierung könnte zu einer repräsentativen Immobilie mit großem Potenzial führen. Daher wurde ein Projekt entwickelt und die Baugenehmigung für den Umbau eingeholt. Das Projekt ist als perfekte Mischung aus Tradition und Moderne konzipiert und fügt sich in Form und Farbe in die Siedlung und Landschaft ein. Die Adaptierung hat begonnen; das Dach und die Betonzwischenbodenkonstruktionen wurden installiert. Der angegebene Preis bezieht sich auf den angegebenen Zustand. Die Kombination aus üppigem Grün und Architektur macht diese Immobilie ideal für Liebhaber von Steinantiquitäten und Natur und bietet großes Potenzial für ein ruhiges Familienleben oder ein profitables Vermietungsgeschäft.
Sehr geehrte Kunden, die Agenturprovision wird gemäß den Allgemeinen Geschäftsbedingungen berechnet: www.dux-nekretnine.hr/opci-uvjeti-poslovanja
ID CODE: 39844
Cerovlje ist der zentrale Ort der gleichnamigen Gemeinde, die sich über die Hügellandschaft nordöstlich von Pazin erstreckt und zahlreiche Weiler und mehrere größere ländliche Siedlungen umfasst. Sie liegt 278 Meter über dem Meeresspiegel und hat eine Fläche von 4,99 km². In dieser Gemeinde befinden sich die längste Höhle Istriens, ein Olivenhain auf der höchsten Höhe und zwei Burgen. Durch die Gemeinde fließt der Fluss Pazinčica, und entlang des Flusstals verlaufen eine Eisenbahnlinie, dann eine Straße und schließlich eine Autobahn. In dieser Landschaft mit märchenhaften Ausblicken steht ein Steinhaus mit laufender Renovierung zum Verkauf. Es liegt eingebettet in Ruhe und dem Charme der Natur am Rande eines malerischen Steindorfes, das Ruhe und Tradition ausstrahlt und von dem aus sich ein Panoramablick auf die malerischen samtenen Hügel bietet. Das beeindruckende antike Gebäude aus der österreichisch-ungarischen Zeit erstreckt sich über zwei Etagen und muss renoviert werden. Die Renovierung könnte zu einer repräsentativen Immobilie mit großem Potenzial führen. Daher wurde ein Projekt entwickelt und die Baugenehmigung für den Umbau eingeholt. Das Projekt ist als perfekte Mischung aus Tradition und Moderne konzipiert und fügt sich in Form und Farbe in die Siedlung und Landschaft ein. Die Adaptierung hat begonnen; das Dach und die Betonzwischenbodenkonstruktionen wurden installiert. Der angegebene Preis bezieht sich auf den angegebenen Zustand. Die Kombination aus üppigem Grün und Architektur macht diese Immobilie ideal für Liebhaber von Steinantiquitäten und Natur und bietet großes Potenzial für ein ruhiges Familienleben oder ein profitables Vermietungsgeschäft.
Sehr geehrte Kunden, die Agenturprovision wird gemäß den Allgemeinen Geschäftsbedingungen berechnet: www.dux-nekretnine.hr/opci-uvjeti-poslovanja
ID CODE: 39844
Ausstattungsmerkmale
| Anzahl der Etagen im Haus | 0 |
| Bad | 3 |
Karte wird geladen...
Objektstandort
52402 Cerovlje
- Istrien
Kontaktanfrage senden
Über den Anbieter
DUX Nekretnine d.o.o.
Tizianova
51000 Rijeka
Kontakt
| Telefon | +385 91 480 8808 |
| Mobil | +385 91 480 8808 |
Ansprechpartner/in
Iva Zajc