IHR UNGARN EXPERTE Verkauft ein schönes Einfamilienhaus in Siófok
299.000 €
Kaufpreis
160 m²
Wohnfläche
8
Zimmer
immobilien.de Nr.: 9105188
Objektnummer: 16201#suwskN
Kaufpreis
| Kaufpreis | 299.000 € |
Wohnfläche, Grundstück & Bausubstanz
| Wohnfläche | 160 m² |
| Grundstücksfläche | 570 m² |
| Zimmer | 8 |
| Baujahr | 2000 |
| Verfügbar ab | Sofort |
| Zustand | Gepflegt |
Energie
| Baujahr (laut Energieausweis) | 2000 |
Beschreibung der Immobilie
Wohnfläche 160 m²
Grundstücksfläche 570 m²
Zimmeranzahl 8
Guter Zustand
Baujahr 1981–2000
Komfort inklusive
Gebäudeebene 2
Klimaanlage
Bad und WC in separatem Raum
Dachgeschoss ausgebaut
Keller
Parkplatz im Hof – im Preis inbegriffen
Gasheizung
Isolierung: 10 cm
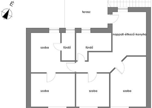
ZUM VERKAUF IN SIÓFOK, 800 m vom Ufer des Plattensees entfernt, ein 160 m² großes, zweistöckiges, freistehendes Einfamilienhaus mit 8 Zimmern und zwei separaten Eingängen. Es eignet sich hervorragend für den Urlaub oder auch als Familien- oder Ferienhaus!
Die Immobilie befindet sich in Siófok-Szabadifürdő, 800 Meter vom ARANYPARTI-FREISTRAND entfernt und dennoch in einer ruhigen, friedlichen Umgebung. Das zweistöckige Einfamilienhaus ist die perfekte Wahl für zwei Generationen, da die beiden Etagen sehr gut voneinander getrennt sind und über separate Eingänge und Terrassen verfügen. Sowohl im Erdgeschoss als auch im ersten Stock befinden sich 4–4 Zimmer, jeweils mit einem geräumigen Wohnzimmer mit amerikanischer Küche und einem Gemeinschaftsbereich. Bei Bedarf kann das Dachgeschoss weiter ausgebaut werden, da ein Ausbau möglich ist.
Die Lage ist hervorragend, da es nur 300 Meter vom Bahnhof entfernt ist!
Das Haus befindet sich dank kontinuierlicher Instandhaltung in gutem Zustand. Der großzügige, durchgehende Garten wird von schönen, großen Bäumen beschattet. Alle drei Terrassen (eine vorne, zwei hinten) sind mit gemütlichen Sitzgelegenheiten ausgestattet.
Das Haus wird mit einem Gaskessel beheizt, und sieben der acht Zimmer sind mit Klimaanlagen ausgestattet.
Das Anwesen wurde in den letzten 10 Jahren kontinuierlich an Urlauber und Erholungssuchende vermietet. Sie kamen jedes Jahr wieder und entschieden sich vor allem wegen der Ruhe und Sauberkeit für dieses Objekt, das sich vom geschäftigen und lauten Stadtzentrum von Siófok absetzte. Die beiden Etagen des Hauses wurden saisonweise separat vermietet. Bitte kontaktieren Sie mich bezüglich der Rendite, ich kann Ihnen genaue Daten liefern!
Wenn Sie an dieser Immobilie interessiert sind, sie besichtigen möchten oder weitere Fragen haben, kontaktieren Sie mich bitte vertrauensvoll.
WIR ARBEITEN MIT ZUVERLÄSSIGEN PARTNERN VOR ORT IN UNGARN ZUSAMMEN UND SIND IN DER LAGE EINE PROFESSIONELLE BETREUUNG VOM ERSTEN KONTAKT, ÜBER EINE AUSWAHL DER IMMOBILIE AUS EINEM BREITEN ANGEBOT, BIS HIN ZUM RECHTSSICHEREN KAUFVERTRAG UND DANACH ZU GEWÄHRLEISTEN.
UNSERE PARTNER VOR ORT IN UNGARN SPRECHEN UNGARISCH, DEUTSCH UND ENGLISCH
Wenn Sie irgendwelche Fragen über die Immobilie haben, rufen Sie uns gerne an. Fragen Sie uns, wir helfen Ihnen gerne weiter.
Grundstücksfläche 570 m²
Zimmeranzahl 8
Guter Zustand
Baujahr 1981–2000
Komfort inklusive
Gebäudeebene 2
Klimaanlage
Bad und WC in separatem Raum
Dachgeschoss ausgebaut
Keller
Parkplatz im Hof – im Preis inbegriffen
Gasheizung
Isolierung: 10 cm
ZUM VERKAUF IN SIÓFOK, 800 m vom Ufer des Plattensees entfernt, ein 160 m² großes, zweistöckiges, freistehendes Einfamilienhaus mit 8 Zimmern und zwei separaten Eingängen. Es eignet sich hervorragend für den Urlaub oder auch als Familien- oder Ferienhaus!
Die Immobilie befindet sich in Siófok-Szabadifürdő, 800 Meter vom ARANYPARTI-FREISTRAND entfernt und dennoch in einer ruhigen, friedlichen Umgebung. Das zweistöckige Einfamilienhaus ist die perfekte Wahl für zwei Generationen, da die beiden Etagen sehr gut voneinander getrennt sind und über separate Eingänge und Terrassen verfügen. Sowohl im Erdgeschoss als auch im ersten Stock befinden sich 4–4 Zimmer, jeweils mit einem geräumigen Wohnzimmer mit amerikanischer Küche und einem Gemeinschaftsbereich. Bei Bedarf kann das Dachgeschoss weiter ausgebaut werden, da ein Ausbau möglich ist.
Die Lage ist hervorragend, da es nur 300 Meter vom Bahnhof entfernt ist!
Das Haus befindet sich dank kontinuierlicher Instandhaltung in gutem Zustand. Der großzügige, durchgehende Garten wird von schönen, großen Bäumen beschattet. Alle drei Terrassen (eine vorne, zwei hinten) sind mit gemütlichen Sitzgelegenheiten ausgestattet.
Das Haus wird mit einem Gaskessel beheizt, und sieben der acht Zimmer sind mit Klimaanlagen ausgestattet.
Das Anwesen wurde in den letzten 10 Jahren kontinuierlich an Urlauber und Erholungssuchende vermietet. Sie kamen jedes Jahr wieder und entschieden sich vor allem wegen der Ruhe und Sauberkeit für dieses Objekt, das sich vom geschäftigen und lauten Stadtzentrum von Siófok absetzte. Die beiden Etagen des Hauses wurden saisonweise separat vermietet. Bitte kontaktieren Sie mich bezüglich der Rendite, ich kann Ihnen genaue Daten liefern!
Wenn Sie an dieser Immobilie interessiert sind, sie besichtigen möchten oder weitere Fragen haben, kontaktieren Sie mich bitte vertrauensvoll.
WIR ARBEITEN MIT ZUVERLÄSSIGEN PARTNERN VOR ORT IN UNGARN ZUSAMMEN UND SIND IN DER LAGE EINE PROFESSIONELLE BETREUUNG VOM ERSTEN KONTAKT, ÜBER EINE AUSWAHL DER IMMOBILIE AUS EINEM BREITEN ANGEBOT, BIS HIN ZUM RECHTSSICHEREN KAUFVERTRAG UND DANACH ZU GEWÄHRLEISTEN.
UNSERE PARTNER VOR ORT IN UNGARN SPRECHEN UNGARISCH, DEUTSCH UND ENGLISCH
Wenn Sie irgendwelche Fragen über die Immobilie haben, rufen Sie uns gerne an. Fragen Sie uns, wir helfen Ihnen gerne weiter.
Ausstattungsmerkmale
| Anzahl der Etagen im Haus | 2 |
| Bad | 2 |
| Bad | Dusche, Wanne, Fenster |
| Boden | Fliesen, Laminat |
Alapterület 160 m2
Telekterület 570 m2
Szobák 8
Ingatlan állapota jó állapotú
Építés éve 1981 és 2000 között
Komfort összkomfortos
Épület szintjei 2
Légkondicionáló van
Fürdő és wc külön helyiségben
Tetőtér beépített
Pince van
Parkolás udvari beálló - benne van az árban
Fűtés gázkazán
Szigetelés van - 10 cm
ELADÓ SIÓFOKON a BALATON partjától 800 méterre egy 160 nm-es, 8 szobás, kétszintes ÖNÁLLÓ CSALÁDI HÁZ KÉT KÜLÖNÁLLÓ BEJÁRATTAL, ami KIVÁLÓ LEHET ÜDÜLTETÉSRE vagy akár családi otthonnak, NYARALÓNAK is!
Az ingatlan Siófok-Szabadifürdőn található az ARANYPARTI SZABADSTRANDTÓL 800 méterre, mégis csendes, nyugodt környezetben. A kétszintes családi ház akár két generációnak is tökéletes választás, hiszen nagyon jól elszeparált a két szint, külön bejárattal és terasszal ellátottak. A földszinten és az emeleten egyaránt 4-4 szoba került kialakításra egy-egy tágas amerikai konyhás nappalival és közösségi térrel. Igény esetén a tetőtér még tovább bővíthető, hiszen a beépíthetőség lehetővé teszi.
Kiváló lokációval bír, ugyanis a vasútállomástól mindössze 300 méterre van!
A folyamatos karbantartásnak köszönhetően jó állapotban van a ház. A kert tágas és egybefüggő, amit szép nagy fák árnyékolnak és mind a 3 terasz (1 elől, kettő hátul) hangulatos kiülőkkel ellátott.
A ház fűtéséről gázkazán gondoskodik, továbbá a 8 szobából 7 klímával ellátott.
Az elmúlt majd 10 évben folyamatosan ki volt adva nyaralni és pihenni vágyóknak az ingatlan, akik évről évre szívesen visszatértek és legfőképpen a nyugalom és tisztaság miatt választották ezt a lehetőséget a forgalmas és zajos Siófoki belvárossal szemben. A ház két szintje külön is ki volt adva szintenként szezonban, a hozammal kapcsolatban kérem keressen, pontos adatokkal is tudok szolgálni!
Amennyiben felkeltette az érdeklődését ez az ingatlan, szeretné megtekinteni vagy további kérdései vannak, keressen bizalommal.
Telekterület 570 m2
Szobák 8
Ingatlan állapota jó állapotú
Építés éve 1981 és 2000 között
Komfort összkomfortos
Épület szintjei 2
Légkondicionáló van
Fürdő és wc külön helyiségben
Tetőtér beépített
Pince van
Parkolás udvari beálló - benne van az árban
Fűtés gázkazán
Szigetelés van - 10 cm
ELADÓ SIÓFOKON a BALATON partjától 800 méterre egy 160 nm-es, 8 szobás, kétszintes ÖNÁLLÓ CSALÁDI HÁZ KÉT KÜLÖNÁLLÓ BEJÁRATTAL, ami KIVÁLÓ LEHET ÜDÜLTETÉSRE vagy akár családi otthonnak, NYARALÓNAK is!
Az ingatlan Siófok-Szabadifürdőn található az ARANYPARTI SZABADSTRANDTÓL 800 méterre, mégis csendes, nyugodt környezetben. A kétszintes családi ház akár két generációnak is tökéletes választás, hiszen nagyon jól elszeparált a két szint, külön bejárattal és terasszal ellátottak. A földszinten és az emeleten egyaránt 4-4 szoba került kialakításra egy-egy tágas amerikai konyhás nappalival és közösségi térrel. Igény esetén a tetőtér még tovább bővíthető, hiszen a beépíthetőség lehetővé teszi.
Kiváló lokációval bír, ugyanis a vasútállomástól mindössze 300 méterre van!
A folyamatos karbantartásnak köszönhetően jó állapotban van a ház. A kert tágas és egybefüggő, amit szép nagy fák árnyékolnak és mind a 3 terasz (1 elől, kettő hátul) hangulatos kiülőkkel ellátott.
A ház fűtéséről gázkazán gondoskodik, továbbá a 8 szobából 7 klímával ellátott.
Az elmúlt majd 10 évben folyamatosan ki volt adva nyaralni és pihenni vágyóknak az ingatlan, akik évről évre szívesen visszatértek és legfőképpen a nyugalom és tisztaság miatt választották ezt a lehetőséget a forgalmas és zajos Siófoki belvárossal szemben. A ház két szintje külön is ki volt adva szintenként szezonban, a hozammal kapcsolatban kérem keressen, pontos adatokkal is tudok szolgálni!
Amennyiben felkeltette az érdeklődését ez az ingatlan, szeretné megtekinteni vagy további kérdései vannak, keressen bizalommal.
Sonstige Informationen
Hinweis auf den Umrechnungskurs zwischen HUF (ungarischen Forint) und dem € (EUR)
Wir weisen darauf hin, dass wir die Kaufpreisangabe zum Zeitpunkt der Veröffentlichung des Angebotes von HUF (ungarischen Forint) in € (EUR) zum damaligen Wechselkurs umgerechnet haben.
Bitte beachten Sie deshalb, dass der Kaufpreis schwanken kann.
Es gilt der Kaufpreis zum aktuellen Umrechnungskurs bei Kaufpreisfälligkeit.
Rechtlicher Hinweis / Disclaimer
Wir bitten um Verständnis, dass wir nur vollständig ausgefüllte Emailanfragen mit Vornamen,
Namen, Anschrift, Telefonnummer und Emailadresse beantworten können.
Alle Daten und Fakten stammen vom Eigentümer des Objektes. Wir haben uns vor Ort von der
Übereinstimmung überzeugt. Trotz aller Gründlichkeit können wir für die Richtigkeit und
Vollständigkeit der Angaben keine Haftung übernehmen. Irrtum und Auslassung sowie
Zwischenverkauf und/oder Zwischenvermietung bleiben vorbehalten.
Eine Reservierung kann nur nach schriftlicher Vereinbarung in Absprache mit dem Makler und dem
Eigentümer erfolgen.
Disclaimer / Property offers
Please understand that we will only answer fully completed requests with name, address, telephone
number and email address.
Provided, neither Langer Immobilien GmbH & Co. KG, its officers or employees accept any
responsibility as to the accuracy of the information provided on either this or in any subsequent
communication.
We strongly recommend that each individual investor takes independent professional advice
concerning all aspects of any proposed purchase.
Langer Immobilien GmbH & Co. KG does not take any responsibility for any Professional or other
costs incurred by an investor.
The provision of the information contained in this E-Mail or any subsequent communication is no
indication or proof of Langer Immobilien GmbH & Co. KG’s legal appointment by the owner / vendor
of a proposed investment to market this opportunity exclusively or as one of several appointed
consultants.
Hauptsitz: Langer Immobilien GmbH & Co. KG, Weydingerstraße 14-16, 10178 Berlin - Mitte
Wir weisen darauf hin, dass wir die Kaufpreisangabe zum Zeitpunkt der Veröffentlichung des Angebotes von HUF (ungarischen Forint) in € (EUR) zum damaligen Wechselkurs umgerechnet haben.
Bitte beachten Sie deshalb, dass der Kaufpreis schwanken kann.
Es gilt der Kaufpreis zum aktuellen Umrechnungskurs bei Kaufpreisfälligkeit.
Rechtlicher Hinweis / Disclaimer
Wir bitten um Verständnis, dass wir nur vollständig ausgefüllte Emailanfragen mit Vornamen,
Namen, Anschrift, Telefonnummer und Emailadresse beantworten können.
Alle Daten und Fakten stammen vom Eigentümer des Objektes. Wir haben uns vor Ort von der
Übereinstimmung überzeugt. Trotz aller Gründlichkeit können wir für die Richtigkeit und
Vollständigkeit der Angaben keine Haftung übernehmen. Irrtum und Auslassung sowie
Zwischenverkauf und/oder Zwischenvermietung bleiben vorbehalten.
Eine Reservierung kann nur nach schriftlicher Vereinbarung in Absprache mit dem Makler und dem
Eigentümer erfolgen.
Disclaimer / Property offers
Please understand that we will only answer fully completed requests with name, address, telephone
number and email address.
Provided, neither Langer Immobilien GmbH & Co. KG, its officers or employees accept any
responsibility as to the accuracy of the information provided on either this or in any subsequent
communication.
We strongly recommend that each individual investor takes independent professional advice
concerning all aspects of any proposed purchase.
Langer Immobilien GmbH & Co. KG does not take any responsibility for any Professional or other
costs incurred by an investor.
The provision of the information contained in this E-Mail or any subsequent communication is no
indication or proof of Langer Immobilien GmbH & Co. KG’s legal appointment by the owner / vendor
of a proposed investment to market this opportunity exclusively or as one of several appointed
consultants.
Hauptsitz: Langer Immobilien GmbH & Co. KG, Weydingerstraße 14-16, 10178 Berlin - Mitte
Karte wird geladen...
Objektstandort
8600 Siófok
Lage & Infrastruktur
Objektstandort
8600 Siófok
Siófok (deutsch: Fock, im Mittelalter: Fuk, später: Fok) ist eine Hafen- und Ferienstadt im nordöstlichen Teil des Komitats Somogy. Es ist der Sitz des Bezirks Siófok, der bevölkerungsreichsten und größten Siedlung an der Balatonküste und der größten und zweitbevölkerungsreichsten Siedlung im Komitat Somogy. Seine Fläche beträgt 124,66 km² und er liegt an der Dreiländerecke des Balatonbeckens, des Mezőföld und der Mikroregionen des äußeren Somogy. Es ist der wichtigste Logistikknotenpunkt für Waren zwischen dem Balaton und der Donau. Es ist auch eine Universitätsstadt, und ab 2024 wird hier der einzige transdanubische Campus der Universität Debrecen betrieben. Bis zur Komitatsneugliederung im Jahr 1950 war das heutige Stadtgebiet zwischen zwei Komitaten aufgeteilt. Der Teil westlich von Sió gehörte einst zu Somogy, während die Gebiete östlich davon zum Komitat Veszprém gehörten. Erst danach fiel das gesamte Gebiet unter die Zuständigkeit von Somogy. Gemessen an der Gesamtzahl der Übernachtungen in gewerblichen Unterkünften im Jahr 2019 ist Sió der sechstbeliebteste Ferienort Ungarns. Dank der nahegelegenen Stadt Ságvár liegt Sió in einem der ältesten bewohnten Gebiete rund um den Plattensee.
Die Stadt ist bekannt für ihre symbolträchtigen Gebäude, ihre hervorragenden Strände und ihr Nachtleben. Mit ihrer 17 Kilometer langen Küste, Hotels sowie zahlreichen Bars, Restaurants und Nachtclubs ist Sió nach Budapest das zweitbeliebteste Reiseziel Ungarns. Dank ihres Tourismus zählt sie zu den reichsten Städten Ungarns.
Sehenswürdigkeiten
Wasserturm
Evangelische Kirche
Villen aus der Zeit des Dualismus:
Jókai-Villa
Thanhoffer Villa
Karinthy Villa
Sarlós Kirche Unserer Lieben Frau der Schmerzen
Sió-Schleuse
Siófok BAHART Hafen
Petőfi-Promenade
Istrien-Promenade
Krúdy-Promenade
Rózsakert
Jókai-Park
Millennium Park und Bahnhof
Riesenrad
Meteorologisches Observatorium (Entwurf: Péter Molnár)
Die Stadt ist bekannt für ihre symbolträchtigen Gebäude, ihre hervorragenden Strände und ihr Nachtleben. Mit ihrer 17 Kilometer langen Küste, Hotels sowie zahlreichen Bars, Restaurants und Nachtclubs ist Sió nach Budapest das zweitbeliebteste Reiseziel Ungarns. Dank ihres Tourismus zählt sie zu den reichsten Städten Ungarns.
Sehenswürdigkeiten
Wasserturm
Evangelische Kirche
Villen aus der Zeit des Dualismus:
Jókai-Villa
Thanhoffer Villa
Karinthy Villa
Sarlós Kirche Unserer Lieben Frau der Schmerzen
Sió-Schleuse
Siófok BAHART Hafen
Petőfi-Promenade
Istrien-Promenade
Krúdy-Promenade
Rózsakert
Jókai-Park
Millennium Park und Bahnhof
Riesenrad
Meteorologisches Observatorium (Entwurf: Péter Molnár)
Kontaktanfrage senden
Über den Anbieter
Langer Immobilien GmbH & Co.KG
Weydingerstraße 14-16
10178 Berlin
Kontakt
| Telefon | +49 30 24009830 |
| Mobil | +49 163 7554200 |
| Website | www.langerimmobilien.de |
Ansprechpartner/in
Herrn Günther Langer