Leben am Meer: Traumhafte Hafenwohnung in Porto Cristo
385.000 €
Kaufpreis
137 m²
Wohnfläche
8 m²
Nutzfläche
5
Zimmer
immobilien.de Nr.: 9094012
Objektnummer: FALC-KrKe-69305
Kaufpreis
| Kaufpreis | 385.000 € |
| Maklerprovision | keine Käuferprovision |
Wohnfläche, Grundstück & Bausubstanz
| Wohnfläche | 137 m² |
| Nutzfläche | 8 m² |
| Gesamtfläche | 145 m² |
| Zimmer | 5 |
| Letzte Modernisierung | 2024 |
| Verfügbar ab | sofort |
| Zustand | Modernisiert |
Beschreibung der Immobilie
Stilvoll wohnen in bester Lage: Vollständig renovierte 5-Zimmer-Wohnung mit Hafenblick in Porto Cristo
In direkter Hafenlage von Porto Cristo, einem der charmantesten Küstenorte an Mallorcas Ostküste, befindet sich diese hochwertig ausgestattete und im Frühjahr 2024 vollständig renovierte 5-Zimmer-Wohnung. Nur wenige Schritte vom Wasser entfernt und in fußläufiger Nähe zu Restaurants, Cafés, kleinen Buchten und Einkaufsmöglichkeiten, bietet diese Immobilie die perfekte Kombination aus mediterranem Lebensgefühl und modernem Wohnkomfort.
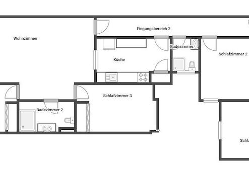
Die Wohnung liegt im vierten Obergeschoss eines gepflegten Wohngebäudes und ist bequem mit dem Aufzug erreichbar, der Sie direkt bis in die Etage bringt. Auf rund 135 m² Wohnfläche erwarten Sie vier Schlafzimmer, zwei stilvolle Badezimmer, ein heller Wohn- und Essbereich, eine voll ausgestattete Küche sowie ein sonniger Balkon mit seitlichem Blick auf den Hafenbereich Es Rivet.
Die gesamte Wohnung wurde mit viel Liebe zum Detail modernisiert. Alle Wohn- und Schlafräume sind mit neuen Klimaanlagen (mit Kühl- und Heizfunktion) ausgestattet. Die Wohnung wird voll möbliert übergeben – geschmackvoll eingerichtet und ist sofort bezugsbereit. Ideal für alle, die Wert auf Komfort, Stil und Funktionalität legen.
Der Wohn-/Essbereich ist großzügig gestaltet und bietet neben zwei gemütlichen Sofas auch einen 65-Zoll-Smart-TV, Highspeed-WLAN sowie einen Arbeitsplatz mit Monitor – perfekt auch für Homeoffice oder längere Aufenthalte. Die Küche verfügt über moderne Einbaugeräte und eine praktische Durchreiche zum Essbereich. Ein angrenzender Hauswirtschaftsraum ist mit Waschmaschine und Trockner ausgestattet und bietet zusätzlichen Stauraum.
Die vier Schlafzimmer sind vielseitig nutzbar: Ein Zimmer ist mit einem Doppelbett und Einbauschrank ausgestattet und hat direkten Zugang zum Balkon. Zwei weitere Schlafzimmer verfügen über Einzel- bzw. Etagenbetten und sind ideal für Kinder oder Gäste. Das vierte Zimmer kann flexibel als Gästezimmer, Arbeitsraum oder Hobbyraum genutzt werden.
Die beiden Badezimmer wurden ebenso wie die restliche Wohnung vollständig modernisiert und verfügen über bodengleiche Duschen sowie Fenster zur natürlichen Belüftung.
Besonders hervorzuheben ist der Balkon mit Blick auf Es Rivet – ein wunderbarer Ort für den morgendlichen Kaffee oder entspannte Abende bei Sonnenuntergang.
Ein weiterer Vorteil: Nur wenige Gehminuten entfernt befindet sich ein kostenloser öffentlicher Parkplatz – ein echter Pluspunkt in Hafennähe.
Diese Immobilie eignet sich ideal als ganzjähriger Wohnsitz, als komfortables Feriendomizil oder als wertbeständige Investition. Die Kombination aus Lage, Ausstattung, Wohnfläche und sofortiger Bezugsfertigkeit ist in Porto Cristo in dieser Form eine echte Rarität.
In direkter Hafenlage von Porto Cristo, einem der charmantesten Küstenorte an Mallorcas Ostküste, befindet sich diese hochwertig ausgestattete und im Frühjahr 2024 vollständig renovierte 5-Zimmer-Wohnung. Nur wenige Schritte vom Wasser entfernt und in fußläufiger Nähe zu Restaurants, Cafés, kleinen Buchten und Einkaufsmöglichkeiten, bietet diese Immobilie die perfekte Kombination aus mediterranem Lebensgefühl und modernem Wohnkomfort.
Die Wohnung liegt im vierten Obergeschoss eines gepflegten Wohngebäudes und ist bequem mit dem Aufzug erreichbar, der Sie direkt bis in die Etage bringt. Auf rund 135 m² Wohnfläche erwarten Sie vier Schlafzimmer, zwei stilvolle Badezimmer, ein heller Wohn- und Essbereich, eine voll ausgestattete Küche sowie ein sonniger Balkon mit seitlichem Blick auf den Hafenbereich Es Rivet.
Die gesamte Wohnung wurde mit viel Liebe zum Detail modernisiert. Alle Wohn- und Schlafräume sind mit neuen Klimaanlagen (mit Kühl- und Heizfunktion) ausgestattet. Die Wohnung wird voll möbliert übergeben – geschmackvoll eingerichtet und ist sofort bezugsbereit. Ideal für alle, die Wert auf Komfort, Stil und Funktionalität legen.
Der Wohn-/Essbereich ist großzügig gestaltet und bietet neben zwei gemütlichen Sofas auch einen 65-Zoll-Smart-TV, Highspeed-WLAN sowie einen Arbeitsplatz mit Monitor – perfekt auch für Homeoffice oder längere Aufenthalte. Die Küche verfügt über moderne Einbaugeräte und eine praktische Durchreiche zum Essbereich. Ein angrenzender Hauswirtschaftsraum ist mit Waschmaschine und Trockner ausgestattet und bietet zusätzlichen Stauraum.
Die vier Schlafzimmer sind vielseitig nutzbar: Ein Zimmer ist mit einem Doppelbett und Einbauschrank ausgestattet und hat direkten Zugang zum Balkon. Zwei weitere Schlafzimmer verfügen über Einzel- bzw. Etagenbetten und sind ideal für Kinder oder Gäste. Das vierte Zimmer kann flexibel als Gästezimmer, Arbeitsraum oder Hobbyraum genutzt werden.
Die beiden Badezimmer wurden ebenso wie die restliche Wohnung vollständig modernisiert und verfügen über bodengleiche Duschen sowie Fenster zur natürlichen Belüftung.
Besonders hervorzuheben ist der Balkon mit Blick auf Es Rivet – ein wunderbarer Ort für den morgendlichen Kaffee oder entspannte Abende bei Sonnenuntergang.
Ein weiterer Vorteil: Nur wenige Gehminuten entfernt befindet sich ein kostenloser öffentlicher Parkplatz – ein echter Pluspunkt in Hafennähe.
Diese Immobilie eignet sich ideal als ganzjähriger Wohnsitz, als komfortables Feriendomizil oder als wertbeständige Investition. Die Kombination aus Lage, Ausstattung, Wohnfläche und sofortiger Bezugsfertigkeit ist in Porto Cristo in dieser Form eine echte Rarität.
Ausstattungsmerkmale
| Anzahl der Etagen im Haus | 4 |
| Küche | Einbauküche |
| Bad | 2 |
| Bad | Dusche, Fenster |
| Boden | Fliesen |
| Balkone | 1 |
| Fahrstuhl |
Sonstige Informationen
FALC ist eine international aufgestellte Immobilienagentur, für die Kundenzufriedenheit an erster Stelle steht. Zahlreiche Auszeichnungen belegen dies. Unsere kompetenten Agenten vor Ort sind absolute Kenner des jeweiligen Marktes und freuen sich jederzeit über Ihre Kontaktaufnahme. Machen Sie sich Ihr eigenes Bild und lernen Sie uns am besten persönlich kennen. Wir sind der richtige Ansprechpartner, wenn es um den Kauf oder Verkauf Ihrer Traumimmobilie auf Mallorca geht. Gerne lassen wir Sie hierbei von unserem großen Netzwerk an professionellen Dienstleistern partizipieren, sei es steuerliche oder anwaltliche Beratung, Unterstützung bei der Administration oder Instandhaltung Ihrer Ferienimmobilie.
Bitte beachten Sie, dass sämtliche Angaben teilweise oder ganz auf Angaben des Eigentümers beruhen und wir hierfür keine Gewähr übernehmen können.
Die Inhalte und Bilder dieses Exposés könnten mithilfe von künstlicher Intelligenz (KI) erstellt worden sein.
Bitte beachten Sie, dass sämtliche Angaben teilweise oder ganz auf Angaben des Eigentümers beruhen und wir hierfür keine Gewähr übernehmen können.
Die Inhalte und Bilder dieses Exposés könnten mithilfe von künstlicher Intelligenz (KI) erstellt worden sein.
Karte wird geladen...
Objektstandort
07680 Porto Cristo
- Mallorca
Lage & Infrastruktur
Objektstandort
07680 Porto Cristo
- Mallorca
Die Wohnung befindet sich in absoluter Toplage im Herzen von Porto Cristo, direkt am charmanten Hafen – einer der begehrtesten und atmosphärischsten Orte an der mallorquinischen Ostküste. Hier verbinden sich mediterrane Gelassenheit mit urbaner Infrastruktur und einer Vielzahl an Freizeitmöglichkeiten.
In unmittelbarer Umgebung finden sich zahlreiche Restaurants, gemütliche Bars und Cafés, viele davon direkt an der Hafenpromenade mit Blick auf die Boote und das Meer. Auch für den täglichen Bedarf ist bestens gesorgt: Supermärkte, Bäckereien, Apotheken und Ärzte befinden sich ebenso in Laufnähe wie ein modernes Gesundheitszentrum und ein Krankenhaus (Hospital de Llevant), das nur wenige Fahrminuten entfernt liegt.
Ein weiteres Highlight sind die weltberühmten Drachenhöhlen (Cuevas del Drach) – ein faszinierendes Naturwunder mit unterirdischem See, das sich ebenfalls in Porto Cristo befindet und bequem zu Fuß erreichbar ist.
Dank der guten Anbindung an die Infrastruktur ist auch die Inselmitte schnell erreichbar: Die lebendige Stadt Manacor, bekannt für ihre Wochenmärkte, Schulen und das Rafa Nadal Sportzentrum, liegt nur etwa 12 Kilometer entfernt und ist sowohl mit dem Auto als auch mit dem regelmäßig verkehrenden Bus schnell erreichbar.
Der Internationale Flughafen von Palma de Mallorca ist in ca. 45 Minuten mit dem Auto erreichbar – ideal für Pendler, Zweitwohnsitzbesitzer oder internationale Besucher.
Diese Lage bietet alles, was das Herz begehrt – Meerblick, Infrastruktur, Ruhe und mediterranes Lebensgefühl. Ob als dauerhaftes Zuhause oder als stilvoller Rückzugsort auf Mallorca – in Porto Cristo vereint sich Lebensqualität mit Urlaubsflair.
In unmittelbarer Umgebung finden sich zahlreiche Restaurants, gemütliche Bars und Cafés, viele davon direkt an der Hafenpromenade mit Blick auf die Boote und das Meer. Auch für den täglichen Bedarf ist bestens gesorgt: Supermärkte, Bäckereien, Apotheken und Ärzte befinden sich ebenso in Laufnähe wie ein modernes Gesundheitszentrum und ein Krankenhaus (Hospital de Llevant), das nur wenige Fahrminuten entfernt liegt.
Ein weiteres Highlight sind die weltberühmten Drachenhöhlen (Cuevas del Drach) – ein faszinierendes Naturwunder mit unterirdischem See, das sich ebenfalls in Porto Cristo befindet und bequem zu Fuß erreichbar ist.
Dank der guten Anbindung an die Infrastruktur ist auch die Inselmitte schnell erreichbar: Die lebendige Stadt Manacor, bekannt für ihre Wochenmärkte, Schulen und das Rafa Nadal Sportzentrum, liegt nur etwa 12 Kilometer entfernt und ist sowohl mit dem Auto als auch mit dem regelmäßig verkehrenden Bus schnell erreichbar.
Der Internationale Flughafen von Palma de Mallorca ist in ca. 45 Minuten mit dem Auto erreichbar – ideal für Pendler, Zweitwohnsitzbesitzer oder internationale Besucher.
Diese Lage bietet alles, was das Herz begehrt – Meerblick, Infrastruktur, Ruhe und mediterranes Lebensgefühl. Ob als dauerhaftes Zuhause oder als stilvoller Rückzugsort auf Mallorca – in Porto Cristo vereint sich Lebensqualität mit Urlaubsflair.
Kontaktanfrage senden
Über den Anbieter
FALC Immobilien GmbH & Co. KG
Humperdickstr. 3
53773 Hennef (Sieg)
Kontakt
| Telefon | +49 179 4568682 |
| Mobil | +49 179 4568682 |
| Fax | +49 2242 9010319 |
| Website | www.falcimmo.de |
Ansprechpartner/in
Frau Kristin Kemper