Solin, Grundstück zu verkaufen 936 m2, mit Baubeginn
399.000 €
Kaufpreis
immobilien.de Nr.: 9086535
Objektnummer: 15274-1
Kaufpreis
| Kaufpreis | 399.000 € |
Wohnfläche, Grundstück & Bausubstanz
| Gesamtfläche | 936 m² |
| Verfügbar ab | keine Angabe |
Beschreibung der Immobilie
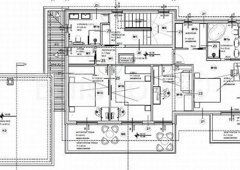
Solin, Mezanovci, Baugrundstück 936 m² mit Baubeginn und gültiger Baugenehmigung.
Das Grundstück hat eine regelmässige rechteckige Form.
Der Eigentümer erhielt im September 2022 eine endgültige und gültige Baugenehmigung für ein Wohngebäude. Die Genehmigung ist drei Jahre gültig und kann um weitere drei Jahre verlängert werden.
Das Projekt umfasst ein Erdgeschoss und ein Obergeschoss.
Das Erdgeschoss bietet Platz für eine Garage, eine Küche mit Essbereich und angeschlossenem Wohnzimmer sowie zwei Terrassen.
Der Aussenbereich des Hauses verfügt über eine Sonnenterrasse, einen Aussenwhirlpool und Terrassen.
Im Obergeschoss sind ein Hauptschlafzimmer mit eigenem Bad, begehbarem Kleiderschrank und privater Terrasse sowie drei weitere Schlafzimmer – alle mit Zugang zu einer Gemeinschaftsterrasse – und ein Badezimmer geplant.
Das Projekt ist für komfortables Wohnen konzipiert, eignet sich aber auch zur Vermietung. Der Aussenbereich bietet ausreichend Platz für den Bau eines Swimmingpools.
Das Projekt kann nach den Wünschen des Käufers angepasst werden. Der Verkaufspreis beinhaltet das Projekt mit gültiger Baugenehmigung und gezahlten Kommunalbeiträgen (über 30.000 €).
Das Grundstück ist direkt über die Strasse erreichbar. Strom und Wasser sind vor Ort vorhanden.
www.biliskov.com ID 15274-1
Das Grundstück hat eine regelmässige rechteckige Form.
Der Eigentümer erhielt im September 2022 eine endgültige und gültige Baugenehmigung für ein Wohngebäude. Die Genehmigung ist drei Jahre gültig und kann um weitere drei Jahre verlängert werden.
Das Projekt umfasst ein Erdgeschoss und ein Obergeschoss.
Das Erdgeschoss bietet Platz für eine Garage, eine Küche mit Essbereich und angeschlossenem Wohnzimmer sowie zwei Terrassen.
Der Aussenbereich des Hauses verfügt über eine Sonnenterrasse, einen Aussenwhirlpool und Terrassen.
Im Obergeschoss sind ein Hauptschlafzimmer mit eigenem Bad, begehbarem Kleiderschrank und privater Terrasse sowie drei weitere Schlafzimmer – alle mit Zugang zu einer Gemeinschaftsterrasse – und ein Badezimmer geplant.
Das Projekt ist für komfortables Wohnen konzipiert, eignet sich aber auch zur Vermietung. Der Aussenbereich bietet ausreichend Platz für den Bau eines Swimmingpools.
Das Projekt kann nach den Wünschen des Käufers angepasst werden. Der Verkaufspreis beinhaltet das Projekt mit gültiger Baugenehmigung und gezahlten Kommunalbeiträgen (über 30.000 €).
Das Grundstück ist direkt über die Strasse erreichbar. Strom und Wasser sind vor Ort vorhanden.
www.biliskov.com ID 15274-1
Karte wird geladen...
Objektstandort
Solin
- Dalmatien-Split [Splitsko-Dalmatinska]
Kontaktanfrage senden
Über den Anbieter
Biliskov nekretnine d.o.o.
Cesta dr. F. Tudmana 866A
21216 Kastel Stari
Kontakt
| Telefon | +38598411775 |