IHR UNGARN EXPERTE Verkauft ein schönes Einfamilienhaus in Piliszentlászló
254.000 €
Kaufpreis
140 m²
Wohnfläche
6
Zimmer
immobilien.de Nr.: 9037986
Objektnummer: 15999#suwskN
Preise & Kosten
| Kaufpreis | 254.000 € |
| Nebenkosten | keine Angabe |
Größe & Zustand
| Wohnfläche | 140 m² |
| Grundstücksfläche | 1.312 m² |
| Zimmer | 6 |
| Baujahr | 2010 |
| Verfügbar ab | Sofort |
| Zustand | Gepflegt |
Energie
| Baujahr (laut Energieausweis) | 2010 |
Objektbeschreibung
Grundfläche 140 m2
Grundstücksfläche 1312 m2
Zimmer 6
Der Zustand der Immobilie ist in gutem Zustand.
Komfort-Allrounder
Gebäudeebenen 2
Panoramablick
Dachbodenraum eingebaut
Parken Straße, öffentlicher Bereich
Heizen mit einem Mischbrennstoffkessel
Es gibt Isolierung - 10 cm
Energieausweis D
In Pilisszentlászló, in einem ruhigen Teil des Visegrád-Gebirges mit Panoramablick, steht ein 140 m² großes, auf zwei Ebenen angelegtes Einfamilienhaus auf einem 1312 m² großen, gepflegten Grundstück zum Verkauf. Die Wohnräume der Immobilie sind hell, luftig und dank der Südostausrichtung und der hervorragenden Sonneneinstrahlung sonnendurchflutet. Das Haus und der Garten bieten einen atemberaubenden Blick auf die umliegenden Berge und die ruhige Umgebung könnte ideal für ein dauerhaftes Zuhause oder sogar einen Zweitwohnsitz in der Nähe der Natur sein.
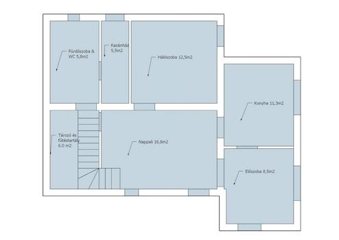
Das Haus verfügt insgesamt über vier Schlafzimmer, ein Arbeitszimmer und zwei geräumige Wohnzimmer und bietet somit eine komfortable Raumaufteilung für eine größere Familie. Zusätzlich zur Wohnfläche stehen knapp 100 m² Lagerfläche zur Verfügung, darunter eine geschlossene Ebene unter dem Garten. Das Gebäude verfügt über eine stabile Baukonstruktion aus dem Jahr 1995 mit einem den Geländeverhältnissen angepassten Niveauausgleich, verstärkten Stützmauern und einem soliden Fundament. Beheizt wird das Haus mit einem Mischbrennstoffkessel von Totya und einem anschließbaren Pelletbrenner von Ferroli, mit 1000 Liter Pufferspeicher und Heizkörperwärmeübertragung. Im vergangenen Jahr erhielten die Fenster im Erdgeschoss eine moderne Dreifach-Wärmeschutzverglasung und zudem wurde eine neue, isolierte Sicherheitseingangstür eingebaut.
Das Grundstück ist landschaftlich gestaltet und gepflegt: Es ist mit einer Rosenlaube, einem Pavillon, einem Gartenkamin und einem Grill ausgestattet, sodass der Außenbereich von Frühling bis Herbst aktiv genutzt werden kann. Unter dem Schuppen befindet sich ein separater, geschlossener Gartenabstellraum, der sich ideal zur Lagerung von Werkzeugen, Gartenmöbeln oder Sportgeräten eignet. An der Straßenfront ist ein betonierter Stellplatz für drei Autos vorhanden, bei Bedarf kann auch ein überdachter Stellplatz zur Verfügung gestellt werden.
Die Lage der Immobilie ist ideal für diejenigen, die ein dauerhaftes Zuhause in einer ruhigen, natürlichen Umgebung suchen und dennoch Szentendre, Visegrád oder sogar Budapest leicht erreichen möchten. Pilisszentlászló liegt im Gebiet des Duna-Ipoly-Nationalparks, einer freundlichen Siedlung mit außergewöhnlich sauberer Luft, einem aktiven Gemeinschaftsleben und hervorragenden Wanderwegen in der Nähe.
Für weitere Informationen und zur Terminvereinbarung kontaktieren Sie mich bitte vertrauensvoll.
WIR ARBEITEN MIT ZUVERLÄSSIGEN PARTNERN VOR ORT IN UNGARN ZUSAMMEN UND SIND IN DER LAGE EINE PROFESSIONELLE BETREUUNG VOM ERSTEN KONTAKT, ÜBER EINE AUSWAHL DER IMMOBILIE AUS EINEM BREITEN ANGEBOT, BIS HIN ZUM RECHTSSICHEREN KAUFVERTRAG UND DANACH ZU GEWÄHRLEISTEN.
UNSERE PARTNER VOR ORT IN UNGARN SPRECHEN UNGARISCH, DEUTSCH UND ENGLISCH
Wenn Sie irgendwelche Fragen über die Immobilie haben, rufen Sie uns gerne an. Fragen Sie uns, wir helfen Ihnen gerne weiter.
Grundstücksfläche 1312 m2
Zimmer 6
Der Zustand der Immobilie ist in gutem Zustand.
Komfort-Allrounder
Gebäudeebenen 2
Panoramablick
Dachbodenraum eingebaut
Parken Straße, öffentlicher Bereich
Heizen mit einem Mischbrennstoffkessel
Es gibt Isolierung - 10 cm
Energieausweis D
In Pilisszentlászló, in einem ruhigen Teil des Visegrád-Gebirges mit Panoramablick, steht ein 140 m² großes, auf zwei Ebenen angelegtes Einfamilienhaus auf einem 1312 m² großen, gepflegten Grundstück zum Verkauf. Die Wohnräume der Immobilie sind hell, luftig und dank der Südostausrichtung und der hervorragenden Sonneneinstrahlung sonnendurchflutet. Das Haus und der Garten bieten einen atemberaubenden Blick auf die umliegenden Berge und die ruhige Umgebung könnte ideal für ein dauerhaftes Zuhause oder sogar einen Zweitwohnsitz in der Nähe der Natur sein.
Das Haus verfügt insgesamt über vier Schlafzimmer, ein Arbeitszimmer und zwei geräumige Wohnzimmer und bietet somit eine komfortable Raumaufteilung für eine größere Familie. Zusätzlich zur Wohnfläche stehen knapp 100 m² Lagerfläche zur Verfügung, darunter eine geschlossene Ebene unter dem Garten. Das Gebäude verfügt über eine stabile Baukonstruktion aus dem Jahr 1995 mit einem den Geländeverhältnissen angepassten Niveauausgleich, verstärkten Stützmauern und einem soliden Fundament. Beheizt wird das Haus mit einem Mischbrennstoffkessel von Totya und einem anschließbaren Pelletbrenner von Ferroli, mit 1000 Liter Pufferspeicher und Heizkörperwärmeübertragung. Im vergangenen Jahr erhielten die Fenster im Erdgeschoss eine moderne Dreifach-Wärmeschutzverglasung und zudem wurde eine neue, isolierte Sicherheitseingangstür eingebaut.
Das Grundstück ist landschaftlich gestaltet und gepflegt: Es ist mit einer Rosenlaube, einem Pavillon, einem Gartenkamin und einem Grill ausgestattet, sodass der Außenbereich von Frühling bis Herbst aktiv genutzt werden kann. Unter dem Schuppen befindet sich ein separater, geschlossener Gartenabstellraum, der sich ideal zur Lagerung von Werkzeugen, Gartenmöbeln oder Sportgeräten eignet. An der Straßenfront ist ein betonierter Stellplatz für drei Autos vorhanden, bei Bedarf kann auch ein überdachter Stellplatz zur Verfügung gestellt werden.
Die Lage der Immobilie ist ideal für diejenigen, die ein dauerhaftes Zuhause in einer ruhigen, natürlichen Umgebung suchen und dennoch Szentendre, Visegrád oder sogar Budapest leicht erreichen möchten. Pilisszentlászló liegt im Gebiet des Duna-Ipoly-Nationalparks, einer freundlichen Siedlung mit außergewöhnlich sauberer Luft, einem aktiven Gemeinschaftsleben und hervorragenden Wanderwegen in der Nähe.
Für weitere Informationen und zur Terminvereinbarung kontaktieren Sie mich bitte vertrauensvoll.
WIR ARBEITEN MIT ZUVERLÄSSIGEN PARTNERN VOR ORT IN UNGARN ZUSAMMEN UND SIND IN DER LAGE EINE PROFESSIONELLE BETREUUNG VOM ERSTEN KONTAKT, ÜBER EINE AUSWAHL DER IMMOBILIE AUS EINEM BREITEN ANGEBOT, BIS HIN ZUM RECHTSSICHEREN KAUFVERTRAG UND DANACH ZU GEWÄHRLEISTEN.
UNSERE PARTNER VOR ORT IN UNGARN SPRECHEN UNGARISCH, DEUTSCH UND ENGLISCH
Wenn Sie irgendwelche Fragen über die Immobilie haben, rufen Sie uns gerne an. Fragen Sie uns, wir helfen Ihnen gerne weiter.
Ausstattung
| Anzahl der Etagen im Haus | 2 |
| Küche | Einbauküche |
| Bad | 2 |
| Bad | Dusche, Fenster |
| Boden | Fliesen, Laminat |
| Terrassen | 1 |
Alapterület 140 m2
Telekterület 1312 m2
Szobák 6
Ingatlan állapota jó állapotú
Komfort összkomfortos
Épület szintjei 2
Kilátás panorámás
Tetőtér beépített
Parkolás utca, közterület
Fűtés vegyes tüzelésű kazán
Szigetelés van - 10 cm
Energetikai tanúsítvány D
Pilisszentlászlón, a Visegrádi-hegység csendes, panorámás részén eladó egy 140 m²-es, szinteltolásos kialakítású családi ház, amely egy 1312 m²-es, gondozott telken helyezkedik el. Az ingatlan lakóterei világosak, szellősek, délkeleti tájolásának és a kiváló benapozottságnak köszönhetően egész napfényben úsznak. A házból és a kertből lenyűgöző kilátás nyílik a környező hegyekre, a nyugodt környezet pedig ideális lehet állandó otthonnak, vagy akár második, természetközeli lakóhelynek is.
A ház összesen négy hálószobát, egy dolgozószobát és két tágas nappalit kínál, így nagyobb család számára is kényelmes elrendezést biztosít. A lakótér mellett közel 100 m²-nyi tárolóhely áll rendelkezésre, beleértve a kert alatt kialakított zárt szintet is. Az épület stabil szerkezetű, 1995-ben épült, a terepviszonyokat követve szinteltolással, megerősített támfalakkal és masszív alapozással. A ház fűtése vegyes tüzelésű Totya kazánnal, illetve egy csatlakoztatható Ferroli pellet égővel történik, 1000 literes puffer tartállyal, radiátoros hőleadással. Az elmúlt évben a földszinti nyílászárók korszerű, háromrétegű termoüvegezést kaptak, valamint új, hőszigetelt, biztonsági bejárati ajtó is beépítésre került.
A telek parkosított, szépen karbantartott: rózsalugassal, szaletlivel, kerti tűzrakóhellyel és grillezővel ellátott, így a kültér is aktívan használható a tavasztól őszig tartó időszakban. A szaletli alatt egy különálló, zárt kerti tároló található, amely ideális lehet szerszámok, kerti bútorok vagy sporteszközök elhelyezésére. Az utcafronton három autó számára kialakított betonozott parkoló áll rendelkezésre, és igény esetén fedett beálló is létesíthető.
Az ingatlan elhelyezkedése ideális azok számára, akik nyugodt, természetközeli környezetben keresnek tartós otthont, mégis szeretnék könnyen elérni Szentendrét, Visegrádot vagy akár Budapestet. Pilisszentlászló a Duna–Ipoly Nemzeti Park területén található, kiemelkedően tiszta levegőjű, barátságos település, aktív közösségi élettel és kiváló túraútvonalakkal a közelben.
További információért, időpont egyeztetésért kérem, keressen bizalommal.
Telekterület 1312 m2
Szobák 6
Ingatlan állapota jó állapotú
Komfort összkomfortos
Épület szintjei 2
Kilátás panorámás
Tetőtér beépített
Parkolás utca, közterület
Fűtés vegyes tüzelésű kazán
Szigetelés van - 10 cm
Energetikai tanúsítvány D
Pilisszentlászlón, a Visegrádi-hegység csendes, panorámás részén eladó egy 140 m²-es, szinteltolásos kialakítású családi ház, amely egy 1312 m²-es, gondozott telken helyezkedik el. Az ingatlan lakóterei világosak, szellősek, délkeleti tájolásának és a kiváló benapozottságnak köszönhetően egész napfényben úsznak. A házból és a kertből lenyűgöző kilátás nyílik a környező hegyekre, a nyugodt környezet pedig ideális lehet állandó otthonnak, vagy akár második, természetközeli lakóhelynek is.
A ház összesen négy hálószobát, egy dolgozószobát és két tágas nappalit kínál, így nagyobb család számára is kényelmes elrendezést biztosít. A lakótér mellett közel 100 m²-nyi tárolóhely áll rendelkezésre, beleértve a kert alatt kialakított zárt szintet is. Az épület stabil szerkezetű, 1995-ben épült, a terepviszonyokat követve szinteltolással, megerősített támfalakkal és masszív alapozással. A ház fűtése vegyes tüzelésű Totya kazánnal, illetve egy csatlakoztatható Ferroli pellet égővel történik, 1000 literes puffer tartállyal, radiátoros hőleadással. Az elmúlt évben a földszinti nyílászárók korszerű, háromrétegű termoüvegezést kaptak, valamint új, hőszigetelt, biztonsági bejárati ajtó is beépítésre került.
A telek parkosított, szépen karbantartott: rózsalugassal, szaletlivel, kerti tűzrakóhellyel és grillezővel ellátott, így a kültér is aktívan használható a tavasztól őszig tartó időszakban. A szaletli alatt egy különálló, zárt kerti tároló található, amely ideális lehet szerszámok, kerti bútorok vagy sporteszközök elhelyezésére. Az utcafronton három autó számára kialakított betonozott parkoló áll rendelkezésre, és igény esetén fedett beálló is létesíthető.
Az ingatlan elhelyezkedése ideális azok számára, akik nyugodt, természetközeli környezetben keresnek tartós otthont, mégis szeretnék könnyen elérni Szentendrét, Visegrádot vagy akár Budapestet. Pilisszentlászló a Duna–Ipoly Nemzeti Park területén található, kiemelkedően tiszta levegőjű, barátságos település, aktív közösségi élettel és kiváló túraútvonalakkal a közelben.
További információért, időpont egyeztetésért kérem, keressen bizalommal.
Sonstige Informationen
Hinweis auf den Umrechnungskurs zwischen HUF (ungarischen Forint) und dem € (EUR)
Wir weisen darauf hin, dass wir die Kaufpreisangabe zum Zeitpunkt der Veröffentlichung des Angebotes von HUF (ungarischen Forint) in € (EUR) zum damaligen Wechselkurs umgerechnet haben.
Bitte beachten Sie deshalb, dass der Kaufpreis schwanken kann.
Es gilt der Kaufpreis zum aktuellen Umrechnungskurs bei Kaufpreisfälligkeit.
Rechtlicher Hinweis / Disclaimer
Wir bitten um Verständnis, dass wir nur vollständig ausgefüllte Emailanfragen mit Vornamen,
Namen, Anschrift, Telefonnummer und Emailadresse beantworten können.
Alle Daten und Fakten stammen vom Eigentümer des Objektes. Wir haben uns vor Ort von der
Übereinstimmung überzeugt. Trotz aller Gründlichkeit können wir für die Richtigkeit und
Vollständigkeit der Angaben keine Haftung übernehmen. Irrtum und Auslassung sowie
Zwischenverkauf und/oder Zwischenvermietung bleiben vorbehalten.
Eine Reservierung kann nur nach schriftlicher Vereinbarung in Absprache mit dem Makler und dem
Eigentümer erfolgen.
Disclaimer / Property offers
Please understand that we will only answer fully completed requests with name, address, telephone
number and email address.
Provided, neither Langer Immobilien GmbH & Co. KG, its officers or employees accept any
responsibility as to the accuracy of the information provided on either this or in any subsequent
communication.
We strongly recommend that each individual investor takes independent professional advice
concerning all aspects of any proposed purchase.
Langer Immobilien GmbH & Co. KG does not take any responsibility for any Professional or other
costs incurred by an investor.
The provision of the information contained in this E-Mail or any subsequent communication is no
indication or proof of Langer Immobilien GmbH & Co. KG’s legal appointment by the owner / vendor
of a proposed investment to market this opportunity exclusively or as one of several appointed
consultants.
Hauptsitz: Langer Immobilien GmbH & Co. KG, Weydingerstraße 14-16, 10178 Berlin - Mitte
Wir weisen darauf hin, dass wir die Kaufpreisangabe zum Zeitpunkt der Veröffentlichung des Angebotes von HUF (ungarischen Forint) in € (EUR) zum damaligen Wechselkurs umgerechnet haben.
Bitte beachten Sie deshalb, dass der Kaufpreis schwanken kann.
Es gilt der Kaufpreis zum aktuellen Umrechnungskurs bei Kaufpreisfälligkeit.
Rechtlicher Hinweis / Disclaimer
Wir bitten um Verständnis, dass wir nur vollständig ausgefüllte Emailanfragen mit Vornamen,
Namen, Anschrift, Telefonnummer und Emailadresse beantworten können.
Alle Daten und Fakten stammen vom Eigentümer des Objektes. Wir haben uns vor Ort von der
Übereinstimmung überzeugt. Trotz aller Gründlichkeit können wir für die Richtigkeit und
Vollständigkeit der Angaben keine Haftung übernehmen. Irrtum und Auslassung sowie
Zwischenverkauf und/oder Zwischenvermietung bleiben vorbehalten.
Eine Reservierung kann nur nach schriftlicher Vereinbarung in Absprache mit dem Makler und dem
Eigentümer erfolgen.
Disclaimer / Property offers
Please understand that we will only answer fully completed requests with name, address, telephone
number and email address.
Provided, neither Langer Immobilien GmbH & Co. KG, its officers or employees accept any
responsibility as to the accuracy of the information provided on either this or in any subsequent
communication.
We strongly recommend that each individual investor takes independent professional advice
concerning all aspects of any proposed purchase.
Langer Immobilien GmbH & Co. KG does not take any responsibility for any Professional or other
costs incurred by an investor.
The provision of the information contained in this E-Mail or any subsequent communication is no
indication or proof of Langer Immobilien GmbH & Co. KG’s legal appointment by the owner / vendor
of a proposed investment to market this opportunity exclusively or as one of several appointed
consultants.
Hauptsitz: Langer Immobilien GmbH & Co. KG, Weydingerstraße 14-16, 10178 Berlin - Mitte
Lage des Objektes
Pilisszentlászló (slowakisch: Senváclav) ist ein Dorf im Bezirk Szentendre, Komitat Pest, im Ballungsraum Budapest. Es wurde nach König Ladislaus I. (Heiliger) benannt. Die höchste Siedlung im Visegrád-Gebirge (ungefähr 360 Meter hoch), zwischen 310 und 430 Metern gelegen, befindet sich etwa 8 Kilometer von Szentendre entfernt, im Szentlászló-Becken, größtenteils entlang der Straße 1116, die durch das Lepence-Tal und zwischen Szentendre und Visegrád führt; Die kurze Straße 11 111 führt zum Zentrum der Siedlung. Das kleine intermontane Becken ist auf allen Seiten von Andesitvulkanen aus dem Miozän umgeben. Die bedeutendsten Erhebungen:
St. Ladislaus-Hügel (590 m),
Rosenhügel (549 m),
Alter Priesterberg (567 m),
Tüskés-Berg (510 m).
Alle Sehenswürdigkeiten des Visegrád-Gebirges (Visegrád, Dobogó-kő, Rám-szakadék, Vörös-kő, Prédikáló-szék) sind von Pilisszentlászló aus leicht zu erreichen. Sein Hauptfluss ist der Apátkúti-Bach, aber auch ein Seitenarm des Lepence-Bachs entspringt im Dorf. Das gesamte innere und äußere Gebiet des Dorfes ist Teil des Duna-Ipoly-Nationalparks.
Sehenswürdigkeiten
Die Kirche ist das einzige Denkmal im Dorf. Die Kirche wurde von den Paulinermönchen in den Jahren 1770–1772 im Barockstil an der Stelle des zerstörten Klosters auf dessen Grundmauern erbaut. Am Türsturz des Kirchentores ist das Wappen der Pauluskirche zu sehen: Ein Rabe mit ausgebreiteten Flügeln hält einen Laib Brot im Schnabel.
Die Waldorfschule in Kékvölgy besteht seit 2003. Dies rettete die örtliche Schule vor einer Fusion und Regionalisierung.
Hoboji Zen-Tempel
St. Ladislaus-Hügel (590 m),
Rosenhügel (549 m),
Alter Priesterberg (567 m),
Tüskés-Berg (510 m).
Alle Sehenswürdigkeiten des Visegrád-Gebirges (Visegrád, Dobogó-kő, Rám-szakadék, Vörös-kő, Prédikáló-szék) sind von Pilisszentlászló aus leicht zu erreichen. Sein Hauptfluss ist der Apátkúti-Bach, aber auch ein Seitenarm des Lepence-Bachs entspringt im Dorf. Das gesamte innere und äußere Gebiet des Dorfes ist Teil des Duna-Ipoly-Nationalparks.
Sehenswürdigkeiten
Die Kirche ist das einzige Denkmal im Dorf. Die Kirche wurde von den Paulinermönchen in den Jahren 1770–1772 im Barockstil an der Stelle des zerstörten Klosters auf dessen Grundmauern erbaut. Am Türsturz des Kirchentores ist das Wappen der Pauluskirche zu sehen: Ein Rabe mit ausgebreiteten Flügeln hält einen Laib Brot im Schnabel.
Die Waldorfschule in Kékvölgy besteht seit 2003. Dies rettete die örtliche Schule vor einer Fusion und Regionalisierung.
Hoboji Zen-Tempel
Anbieter kontaktieren
Anbieter
Langer Immobilien GmbH & Co.KG
Weydingerstraße 14-16
10178 Berlin
Kontakt
| Telefon | +49 30 24009830 |
| Mobil | +49 163 7554200 |
| Website | www.langerimmobilien.de |
