ISTRIEN, KRINGA – Grundstück + Genehmigung
145.000 €
Kaufpreis
1
Zimmer
immobilien.de Nr.: 9029135
Objektnummer: 38752
Kaufpreis
| Kaufpreis | 145.000 € |
Wohnfläche, Grundstück & Bausubstanz
| Gesamtfläche | 982 m² |
| Grundstücksfläche | 943 m² |
| Zimmer | 1 |
| Verfügbar ab | keine Angabe |
Beschreibung der Immobilie
ISTRIEN, KRINGA (Umgebung) – Baugrundstück mit endgültiger Genehmigung für ein luxuriöses Familienhaus mit Swimmingpool
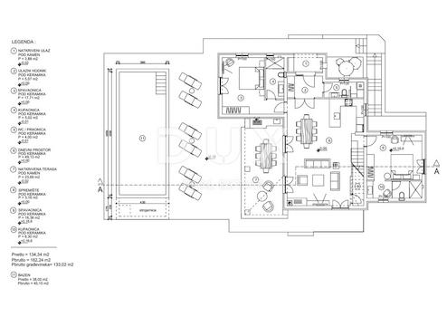
In einem ruhigen, von Grün umgebenen istrischen Dorf bieten wir ein 982 m² großes Baugrundstück mit gültiger Baugenehmigung für den Bau einer luxuriösen rustikalen Villa an, die eine authentische mediterrane Atmosphäre mit modernem Komfort verbindet. Laut Projekt soll das künftige Gebäude über insgesamt 216,68 m² Nettowohnfläche, verteilt auf drei Etagen, sowie einen 38 m² großen Swimmingpool verfügen – ideal für das Familienleben oder als Investition in die touristische Vermietung. Der Grundriss des Hauses sieht folgendes vor: Keller (23 m²) – Technikraum/Abstellraum. Erdgeschoss (134 m²) – überdachter Eingang und Eingangshalle, Schlafzimmer mit eigenem Bad, Toilette/Waschküche, offenes Wohnzimmer mit Essbereich und Küche, zusätzliches Schlafzimmer mit Bad und überdachte Terrasse mit Außenküche. Erster Stock (59,68 m²) – zwei komfortable Schlafzimmer, beide mit eigenem Bad und Blick in die Natur. Bei der Planung des Projekts wurde besonderer Wert auf Energieeffizienz gelegt und die Lage des Grundstücks ermöglicht ein ruhiges Leben in der Nähe aller wichtigen Annehmlichkeiten – Meer, Geschäfte, Schulen und Verkehrsanbindungen. Der Zugang zum Grundstück ist gesichert und es befindet sich in Privatbesitz. Dieses Grundstück mit vollständiger Dokumentation und einem fertigen Projekt ermöglicht einen schnellen Baubeginn ohne zusätzliche Wartezeiten. Eine perfekte Gelegenheit für alle, die ihr Traumhaus bauen oder in eine Luxusimmobilie an einem besonderen Standort in Istrien investieren möchten. Für weitere Informationen und Projektdetails können Sie uns gerne kontaktieren.
Sehr geehrte Kunden, die Agenturprovision wird gemäß den Allgemeinen Geschäftsbedingungen berechnet: www.dux-nekretnine.hr/opci-uvjeti-poslovanja
ID CODE: 38752
In einem ruhigen, von Grün umgebenen istrischen Dorf bieten wir ein 982 m² großes Baugrundstück mit gültiger Baugenehmigung für den Bau einer luxuriösen rustikalen Villa an, die eine authentische mediterrane Atmosphäre mit modernem Komfort verbindet. Laut Projekt soll das künftige Gebäude über insgesamt 216,68 m² Nettowohnfläche, verteilt auf drei Etagen, sowie einen 38 m² großen Swimmingpool verfügen – ideal für das Familienleben oder als Investition in die touristische Vermietung. Der Grundriss des Hauses sieht folgendes vor: Keller (23 m²) – Technikraum/Abstellraum. Erdgeschoss (134 m²) – überdachter Eingang und Eingangshalle, Schlafzimmer mit eigenem Bad, Toilette/Waschküche, offenes Wohnzimmer mit Essbereich und Küche, zusätzliches Schlafzimmer mit Bad und überdachte Terrasse mit Außenküche. Erster Stock (59,68 m²) – zwei komfortable Schlafzimmer, beide mit eigenem Bad und Blick in die Natur. Bei der Planung des Projekts wurde besonderer Wert auf Energieeffizienz gelegt und die Lage des Grundstücks ermöglicht ein ruhiges Leben in der Nähe aller wichtigen Annehmlichkeiten – Meer, Geschäfte, Schulen und Verkehrsanbindungen. Der Zugang zum Grundstück ist gesichert und es befindet sich in Privatbesitz. Dieses Grundstück mit vollständiger Dokumentation und einem fertigen Projekt ermöglicht einen schnellen Baubeginn ohne zusätzliche Wartezeiten. Eine perfekte Gelegenheit für alle, die ihr Traumhaus bauen oder in eine Luxusimmobilie an einem besonderen Standort in Istrien investieren möchten. Für weitere Informationen und Projektdetails können Sie uns gerne kontaktieren.
Sehr geehrte Kunden, die Agenturprovision wird gemäß den Allgemeinen Geschäftsbedingungen berechnet: www.dux-nekretnine.hr/opci-uvjeti-poslovanja
ID CODE: 38752
Ausstattungsmerkmale
| Anzahl der Etagen im Haus | 1 |
Karte wird geladen...
Objektstandort
52444 Tinjan
- Istrien
Kontaktanfrage senden
Über den Anbieter
DUX Nekretnine d.o.o.
Tizianova
51000 Rijeka
Kontakt
| Telefon | +385 91 480 8808 |
| Mobil | +385 91 480 8808 |
Ansprechpartner/in
Mladen Tićak