Verkauf, Pag, Mandre, Maisonettewohnung, Meerblick, Neubau
330.000 €
Kaufpreis
immobilien.de Nr.: 9021834
Objektnummer: 15195-1
Kaufpreis
| Kaufpreis | 330.000 € |
Wohnfläche, Grundstück & Bausubstanz
| Gesamtfläche | 82,6 m² |
| Fläche Sonstiges | 3 m² |
| Baujahr | 2026 |
| Verfügbar ab | keine Angabe |
Beschreibung der Immobilie
www.biliskov.com ID: 15195
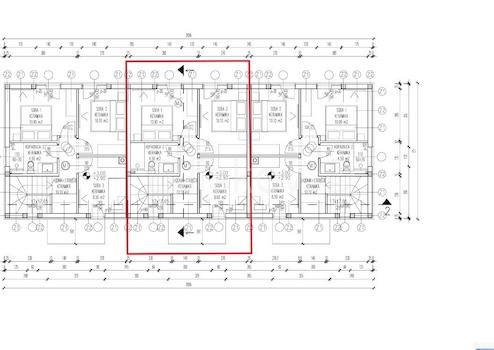
Pag, Mandre Zum Verkauf steht eine Maisonettewohnung mit Meerblick, Fläche 82,60 m², in einem Neubau mit drei Wohneinheiten. Der Baubeginn ist für April 2026 geplant.
Das Erdgeschoss (38,40 m²) besteht aus einem Flur, Abstellraum, Badezimmer und einem offenen Wohnbereich mit Küche, Esszimmer und Wohnzimmer mit Zugang zu einer schönen Terrasse mit Pool (6x3 m). Über eine innere Treppe gelangt man in das Obergeschoss (44,20 m²), das aus einem Flur, drei Schlafzimmern und einem Badezimmer besteht.
Zur Wohnung gehören zwei Aussenstellplätze und ein externer Abstellraum.
Die Wohnung befindet sich in einem attraktiven Komplex von acht modernen Reihenhäusern, in der ruhigen Siedlung Mandre auf der Insel Pag, nur 500 Meter vom Meer und dem Hafen Mandre entfernt.
Energieausweis: Erwartet A, A+ Ausrichtung: Ost–West Fenster: PVC-Fenster mit Aluminium, wärmeisolierte Rollläden mit elektrischem Antrieb Heizung / Klimatisierung: Klimaanlagen (in jedem Raum) Preis: 330.000 € Maklerprovision für Käufer: 2 % + MwSt. vom Kaufpreis
Pag, Mandre Zum Verkauf steht eine Maisonettewohnung mit Meerblick, Fläche 82,60 m², in einem Neubau mit drei Wohneinheiten. Der Baubeginn ist für April 2026 geplant.
Das Erdgeschoss (38,40 m²) besteht aus einem Flur, Abstellraum, Badezimmer und einem offenen Wohnbereich mit Küche, Esszimmer und Wohnzimmer mit Zugang zu einer schönen Terrasse mit Pool (6x3 m). Über eine innere Treppe gelangt man in das Obergeschoss (44,20 m²), das aus einem Flur, drei Schlafzimmern und einem Badezimmer besteht.
Zur Wohnung gehören zwei Aussenstellplätze und ein externer Abstellraum.
Die Wohnung befindet sich in einem attraktiven Komplex von acht modernen Reihenhäusern, in der ruhigen Siedlung Mandre auf der Insel Pag, nur 500 Meter vom Meer und dem Hafen Mandre entfernt.
Energieausweis: Erwartet A, A+ Ausrichtung: Ost–West Fenster: PVC-Fenster mit Aluminium, wärmeisolierte Rollläden mit elektrischem Antrieb Heizung / Klimatisierung: Klimaanlagen (in jedem Raum) Preis: 330.000 € Maklerprovision für Käufer: 2 % + MwSt. vom Kaufpreis
Ausstattungsmerkmale
| Terrassen | 1 |
Karte wird geladen...
Objektstandort
Kolan
- Dalmatien-Zadar (Region) [Zadarska]
Kontaktanfrage senden
Über den Anbieter
Biliskov nekretnine d.o.o.
Cesta dr. F. Tudmana 866A
21216 Kastel Stari
Kontakt
| Telefon | +38598411775 |