Verkauf, Pag, Mandre, Maisonette-Wohnung, Meerblick, Neubau
350.000 €
Kaufpreis
immobilien.de Nr.: 9017676
Objektnummer: 15183-1
Preise & Kosten
| Kaufpreis | 350.000 € |
| Nebenkosten | keine Angabe |
Größe & Zustand
| Gesamtfläche | 87,6 m² |
| Fläche Sonstiges | 3 m² |
| Baujahr | 2026 |
| Verfügbar ab | keine Angabe |
Energie
| Energieeffizienzklasse | A+ |
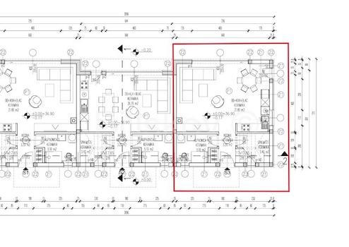
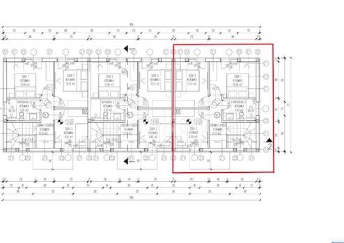
Objektbeschreibung
Pag, Mandre Maisonettewohnung mit Meerblick, 87,60 m², zum Verkauf in einem Neubau mit 3 Wohnungen. Baubeginn ist für April 2026 geplant. Das Erdgeschoss mit 43,50 m² besteht aus Flur, Abstellraum, Bad und offenem Wohn-, Ess- und Küchenbereich mit Zugang zur Terrasse mit Pool (6x3 m). Über eine Innentreppe gelangt man ins Obergeschoss mit 44,10 m², bestehend aus Flur, 3 Schlafzimmern und Bad. Zur Wohnung gehören zwei Aussenstellplätze und ein Aussenabstellraum. Attraktive Wohnanlage mit acht modernen Reihenhäusern in ruhiger Lage in Mandre, nur 500 Meter vom Meer und Hafen entfernt. Erwartete Energieklasse: A, A+ Ausrichtung: Nord-Ost-West PVC-Fenster mit elektrischen Aluminiumrollläden Klimaanlage in jedem Raum Preis: 350.000 € Maklerprovision für den Käufer: 2 % + MwSt
Anbieter
Biliskov nekretnine d.o.o.
Cesta dr. F. Tudmana 866A
21216 Kastel Stari
Kontakt
| Telefon | +38598411775 |
