ZADAR, SUKOŠAN – Wunderschönes neues Gebäude 200 Meter vom Strand entfernt mit Meerblick! S1
289.205 €
Kaufpreis
3
Zimmer
immobilien.de Nr.: 9015255
Objektnummer: 38478
Preise & Kosten
| Kaufpreis | 289.205 € |
| Nebenkosten | keine Angabe |
Größe & Zustand
| Gesamtfläche | 82 m² |
| Zimmer | 3 |
| Baujahr | 2025 |
| Verfügbar ab | keine Angabe |
Objektbeschreibung
ZADAR, SUKOŠAN – Wunderschönes neues Gebäude 200 Meter vom Strand entfernt mit Meerblick! S1
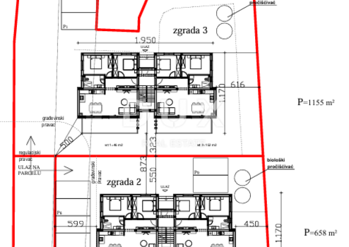
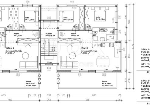
Im Herzen von Sukošan, in ruhiger Lage, nur 200 Meter vom Strand entfernt, befindet sich ein moderner Neubau, der die perfekte Kombination aus Luxus, Funktionalität und mediterranem Lebensstil bietet. Das nach höchsten Baustandards (4 Sterne) konzipierte Gebäude mit insgesamt sechs Wohnungen bietet außergewöhnliche Wohnqualität in Meeresnähe und verfügt zu jeder Wohnung über einen eigenen Parkplatz mit der Option, einen weiteren zu erwerben. Alle Apartments sind sorgfältig auf moderne Bedürfnisse zugeschnitten und verfügen über zwei komfortable Schlafzimmer, ein elegantes Badezimmer, ein geräumiges Wohnzimmer, eine Küche und einen Essbereich. Die Wohnungen im Erdgeschoss bieten teilweisen Meerblick und einen privaten Garten, während die Wohnungen in den oberen Stockwerken einen atemberaubenden Panoramablick bieten und die Wohnungen im zweiten Stock über private Dachterrassen verfügen – der ideale Ort für abendliche Zusammenkünfte bei Sonnenuntergang. Bei der Bauqualität und der Materialauswahl gibt es keine Kompromisse: Thermo-Aluminium-Tischlerei, elektrische Rollläden und Moskitonetze sorgen für Komfort und Langlebigkeit. Fußbodenheizung in Bädern und Wohnräumen, hochwertiges Eichenparkett in den Zimmern und hochwertiges italienisches Feinsteinzeug von Marazzi und Mirage unterstreichen den luxuriösen Touch jedes Raumes zusätzlich. In jedem Zimmer und Wohnzimmer sind Mitsubishi-Klimaanlagen (Multi-Split-System) installiert, während das Treppenhaus und der Eingang des Gebäudes mit Naturstein verkleidet sind. Sanitärkeramik der renommierten Marke Villeroy&Boch und Sicherheitstüren sorgen zusätzlich für Sicherheit und Eleganz. Der Parkplatz ist aus Betonblöcken gebaut und die gärtnerisch gestalteten Gärten vervollständigen den Eindruck einer luxuriösen mediterranen Oase. Die Konstruktion des Gebäudes besteht aus Stahlbeton mit hochwertigen Ziegelwänden und die Fertigstellung der Arbeiten ist für Mitte 2026 geplant. Sukošan ist ein malerischer Ort, der Ruhe, natürliche Schönheit, hervorragende Verbindungen mit der Stadt Zadar und ein reichhaltiges Angebot an Restaurants, Jachthäfen und Einrichtungen bietet. Zadar selbst, nur zehn Autominuten entfernt, begeistert mit seiner Geschichte, seinem kulturellen Erbe und seinem modernen Lebensrhythmus – einer perfekten Mischung aus Alt und Neu. Für weitere Informationen und eine Führung kontaktieren Sie uns. Finden Sie Ihren idealen Platz an der Sonne in Sukošan.
Sehr geehrte Kunden, die Agenturprovision wird gemäß den Allgemeinen Geschäftsbedingungen berechnet www.dux-nekretnine.hr/opci-uvjeti-poslovanja
ID CODE: 38478
Im Herzen von Sukošan, in ruhiger Lage, nur 200 Meter vom Strand entfernt, befindet sich ein moderner Neubau, der die perfekte Kombination aus Luxus, Funktionalität und mediterranem Lebensstil bietet. Das nach höchsten Baustandards (4 Sterne) konzipierte Gebäude mit insgesamt sechs Wohnungen bietet außergewöhnliche Wohnqualität in Meeresnähe und verfügt zu jeder Wohnung über einen eigenen Parkplatz mit der Option, einen weiteren zu erwerben. Alle Apartments sind sorgfältig auf moderne Bedürfnisse zugeschnitten und verfügen über zwei komfortable Schlafzimmer, ein elegantes Badezimmer, ein geräumiges Wohnzimmer, eine Küche und einen Essbereich. Die Wohnungen im Erdgeschoss bieten teilweisen Meerblick und einen privaten Garten, während die Wohnungen in den oberen Stockwerken einen atemberaubenden Panoramablick bieten und die Wohnungen im zweiten Stock über private Dachterrassen verfügen – der ideale Ort für abendliche Zusammenkünfte bei Sonnenuntergang. Bei der Bauqualität und der Materialauswahl gibt es keine Kompromisse: Thermo-Aluminium-Tischlerei, elektrische Rollläden und Moskitonetze sorgen für Komfort und Langlebigkeit. Fußbodenheizung in Bädern und Wohnräumen, hochwertiges Eichenparkett in den Zimmern und hochwertiges italienisches Feinsteinzeug von Marazzi und Mirage unterstreichen den luxuriösen Touch jedes Raumes zusätzlich. In jedem Zimmer und Wohnzimmer sind Mitsubishi-Klimaanlagen (Multi-Split-System) installiert, während das Treppenhaus und der Eingang des Gebäudes mit Naturstein verkleidet sind. Sanitärkeramik der renommierten Marke Villeroy&Boch und Sicherheitstüren sorgen zusätzlich für Sicherheit und Eleganz. Der Parkplatz ist aus Betonblöcken gebaut und die gärtnerisch gestalteten Gärten vervollständigen den Eindruck einer luxuriösen mediterranen Oase. Die Konstruktion des Gebäudes besteht aus Stahlbeton mit hochwertigen Ziegelwänden und die Fertigstellung der Arbeiten ist für Mitte 2026 geplant. Sukošan ist ein malerischer Ort, der Ruhe, natürliche Schönheit, hervorragende Verbindungen mit der Stadt Zadar und ein reichhaltiges Angebot an Restaurants, Jachthäfen und Einrichtungen bietet. Zadar selbst, nur zehn Autominuten entfernt, begeistert mit seiner Geschichte, seinem kulturellen Erbe und seinem modernen Lebensrhythmus – einer perfekten Mischung aus Alt und Neu. Für weitere Informationen und eine Führung kontaktieren Sie uns. Finden Sie Ihren idealen Platz an der Sonne in Sukošan.
Sehr geehrte Kunden, die Agenturprovision wird gemäß den Allgemeinen Geschäftsbedingungen berechnet www.dux-nekretnine.hr/opci-uvjeti-poslovanja
ID CODE: 38478
Ausstattung
| Anzahl der Etagen im Haus | 2 |
| Bad | 1 |
