Karlovac - Grundstück mit Projekt- und Baugenehmigung
34.000 €
Kaufpreis
immobilien.de Nr.: 9008695
Objektnummer: 2409
Kaufpreis
| Kaufpreis | 34.000 € |
Wohnfläche, Grundstück & Bausubstanz
| Gesamtfläche | 2.080 m² |
| Verfügbar ab | keine Angabe |
Beschreibung der Immobilie
Das Grundstück in Tušilović, Karlovac, stellt eine außergewöhnliche Investitionsmöglichkeit dar, sei es für den Bau eines Einfamilienhauses oder eines Wochenendhauses. Hier finden Sie eine Zusammenfassung der wichtigsten Informationen zu diesem Land:
Grundstücksbeschreibung:
Gesamtgrundstücksgröße: 2080 m2
Bauteil: 1051 m2
Landwirtschaftlicher Teil: 1029 m2
Lage: 14 km von der Stadt Karlovac, 17 km von der Einfahrt zur Autobahn A1 Rijeka-Karlovac-Zagreb, 71 km von den Plitvicer Seen, Topusko-Becken 40 km,
Das Grundstück liegt neben einer Asphaltstraße und verfügt über Zugang zu allen notwendigen Infrastrukturanschlüssen.
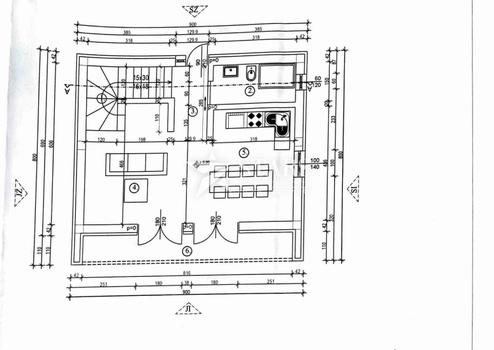
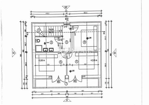
Für den Bau eines Hauses mit den Abmessungen 8 × 9 m, einer Nettowohnfläche von 154 m2, einem Schwimmbad 7 × 4 × 1,5 m und einem Hof mit 3 Parkplätzen liegt eine gültige Baugenehmigung vor.
Baugenehmigung erteilt am 3. November 2023.
Alle Wasser- und Versorgungsbeiträge wurden bezahlt.
Das Grundstück liegt in einem hügeligen Waldgebiet, umgeben von Ferienhäusern.
In unmittelbarer Nähe des Flusses Korana 1,8 km und des organisierten Badebereichs am Wasserfall in Koranski Brijeg cca 5 km .
Zusammen mit dem Grundstück liegt ein Projekt für den Bau eines Einfamilienhauses auf drei Etagen vor.
Das Grundstück passt aufgrund der natürlichen Schönheit und des Zugangs zu den notwendigen Annehmlichkeiten perfekt in Pläne für den Bau eines Luxushauses oder einer Wochenendanlage sowie für touristische Zwecke. Ein interessierter Käufer kann eine gültige Baugenehmigung für ein Wohnungsbaudarlehen nutzen und das Projekt auch nach seinen Wünschen modifizieren.
Dies ist eine Investition, die viel Entwicklungspotenzial bietet.
ID CODE: 2409
Grundstücksbeschreibung:
Gesamtgrundstücksgröße: 2080 m2
Bauteil: 1051 m2
Landwirtschaftlicher Teil: 1029 m2
Lage: 14 km von der Stadt Karlovac, 17 km von der Einfahrt zur Autobahn A1 Rijeka-Karlovac-Zagreb, 71 km von den Plitvicer Seen, Topusko-Becken 40 km,
Das Grundstück liegt neben einer Asphaltstraße und verfügt über Zugang zu allen notwendigen Infrastrukturanschlüssen.
Für den Bau eines Hauses mit den Abmessungen 8 × 9 m, einer Nettowohnfläche von 154 m2, einem Schwimmbad 7 × 4 × 1,5 m und einem Hof mit 3 Parkplätzen liegt eine gültige Baugenehmigung vor.
Baugenehmigung erteilt am 3. November 2023.
Alle Wasser- und Versorgungsbeiträge wurden bezahlt.
Das Grundstück liegt in einem hügeligen Waldgebiet, umgeben von Ferienhäusern.
In unmittelbarer Nähe des Flusses Korana 1,8 km und des organisierten Badebereichs am Wasserfall in Koranski Brijeg cca 5 km .
Zusammen mit dem Grundstück liegt ein Projekt für den Bau eines Einfamilienhauses auf drei Etagen vor.
Das Grundstück passt aufgrund der natürlichen Schönheit und des Zugangs zu den notwendigen Annehmlichkeiten perfekt in Pläne für den Bau eines Luxushauses oder einer Wochenendanlage sowie für touristische Zwecke. Ein interessierter Käufer kann eine gültige Baugenehmigung für ein Wohnungsbaudarlehen nutzen und das Projekt auch nach seinen Wünschen modifizieren.
Dies ist eine Investition, die viel Entwicklungspotenzial bietet.
ID CODE: 2409
Ausstattungsmerkmale
| Anzahl der Etagen im Haus | 0 |
Karte wird geladen...
Objektstandort
47000 Karlovac - Okolica
- Mittelkroatien [Karlovacka]