RIJEKA, PEĆINE – Grundstück 2. Reihe zum Meer 3072m2 für Sportzentrum mit Garagen / Hotel zu vermieten
1 €
Kaltmiete
immobilien.de Nr.: 9004256
Objektnummer: 38273
Mietpreis & Nebenkosten
| Kaltmiete | 1 € |
| Nebenkosten | Keine Angabe |
Wohnfläche, Grundstück & Bausubstanz
| Gesamtfläche | 3.072 m² |
| Verfügbar ab | keine Angabe |
Beschreibung der Immobilie
RIJEKA, PEĆINE – Grundstück 2. Reihe zum Meer 3072 m2 für ein Sportzentrum mit Garagen/Hotel zu vermieten
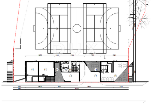
Für den Standort wurde ein Konzeptentwurf erstellt, der den Bau des PEĆINE SPORTS CENTER mit Tiefgarage, Hauptgebäude und Sportplatz in Rijeka, Siedlung Pećine vorsieht. Das betreffende Gebiet liegt im Geltungsbereich der DPU des Stadtgebiets Pećine und hat die Planungsbezeichnung R1-3. Laut DPU umfasst die Zone den geplanten Zweck R1 – Sport- und Freizeitzweck – SPORT. Laut DPU verfügt das Baugrundstück mit der Planungsbezeichnung über eine Gesamtfläche von 3.072,0 m², wobei die größte zulässige bebaute Fläche des Grundstücks 2.445,0 m² beträgt. Die maximal zulässige Anzahl an Stockwerken beträgt P+1 bei einer maximalen Gebäudehöhe von 8,0 m. AKTUELLE SITUATION: Bei der betroffenen Zone handelt es sich im Wesentlichen um ein flaches Plateau etwa 1,5 m über der Straße, auf dem ein Sportplatz, nämlich zwei Tennisplätze, angelegt wurde. Zum Gelände gehört neben dem gepflegten Sportplatz auch eine Sport- und Gastronomieanlage. Auf der Südwestseite wird das Grundstück durch eine Straße begrenzt, die etwa 1,5 m unter dem Niveau des Sportplatzplateaus liegt. Die nordwestliche und ein Teil der südöstlichen Seite werden durch einen öffentlichen Fußgängerbereich – öffentliche Treppen – definiert. Es wird auf der nordöstlichen Seite und teilweise auf der südöstlichen Seite von einer Klippe begrenzt. GEPLANTER ZUSTAND: Dieser Konzeptentwurf sieht den Bau des Sportzentrums Pećine und einer Tiefgarage für insgesamt 59 Parkplätze vor. Auf dem Garagendach ist die Errichtung eines Sportbereichs und eines Tribünentrakts geplant. Gemäß der kartografischen Darstellung 4.BAUBEDINGUNGEN ist auf einem Baugrundstück mit der Planungsbezeichnung R1-3 die Errichtung eines Erdgeschosses + 1 Gebäudes auf der Regulierungslinie mit einer Gesamtgrundfläche von 490,0 m² und einer Gesamtbruttofläche von 780,0 m² geplant. Im geplanten Gebäudeteil sollen Sport- und Freizeiteinrichtungen wie ein Vereinsbereich, Umkleidekabinen, ein Fitnessstudio sowie Gastronomie- und Geschäftsräume untergebracht werden. Zur Erweiterung des Baugrundstücks ist eine Tiefgarage mit Einfahrt von der Šetalište-Straße, XIII. Abteilung, geplant. Auf dem Dach der Garage entsteht ein Sportplatz mit Tribünenaufstellung. Liste der Nettoflächen: 1 - TECHNIKRAUM 44,0 m² 2 - TURNHALLE 1 150,0 m² 3 - KOMMUNIKATION 21,5 m² 4 - SPORTCLUB 28,0 m² 5 - TECHNIKRAUM 12,0 m² 6 - BÜROFLÄCHEN 113,5 m² 7 - TIEFGARAGE 1.800,0 m² 8 - TURNHALLE 2 109,0 m² 9 - DURCHGANG UND TREPPE 67,5 m²x0,5 10 - GARDEROBE 16,5 m² 11 - KOMMUNIKATION 21,5 m² 12 - SANITÄRRÄUME 19,0 m² 13 - ATRIUM 113,5 m²x0,5 CATERINGFLÄCHE 170,0 m² 15- TERRASSE 26,0 m²x0,5 16- SPORTPLATZ 17- TRIBÜNEN GESAMT 2.608,5 m2 - Bauland für ernsthafte Investoren - eine Rarität auf dem Markt - Grundstück an der Stadtgrenze - Zugang ist von der Hauptstraße gewährleistet und befindet sich in unmittelbarer Nähe (fußläufig erreichbar) einer Grundschule, eines Kindergartens und anderer Annehmlichkeiten des täglichen Lebens. Ein Anwesen, von dem aus Sie in nur einer Minute zu Fuß zum Meer und Strand gelangen! PEĆINE: Zahlreiche Villen mit grünen Innenhöfen, wunderschön angelegte Parks, eine Reihe von Stränden und Badebereichen sowie eine interessante Geschichte sind die Merkmale, die dieses Viertel von Rijeka im äußersten Südosten der Stadt schmücken. Der ehemalige Wohnort der Reichen ist mit Sommerhäusern entlang der Küste geschmückt, die von üppigen Blumengärten umgeben sind, während in einer späteren Periode Wohnhäuser errichtet wurden. Rijekas erstes großes Einkaufszentrum, ein Vergnügungspark für Kinder, ein Handball- und Tennisclub, Sportvereine, die Lage, die Nähe zum Stadtzentrum, ein Hotel und drei Hostels sind nur einige der Merkmale dieses Viertels, das Leben mit Entspannung und Erholung bietet.
Sehr geehrte Kunden, die Agenturprovision wird gemäß den Allgemeinen Geschäftsbedingungen berechnet: www.dux-nekretnine.hr/opci-uvjeti-poslovanja
ID CODE: 38273
Für den Standort wurde ein Konzeptentwurf erstellt, der den Bau des PEĆINE SPORTS CENTER mit Tiefgarage, Hauptgebäude und Sportplatz in Rijeka, Siedlung Pećine vorsieht. Das betreffende Gebiet liegt im Geltungsbereich der DPU des Stadtgebiets Pećine und hat die Planungsbezeichnung R1-3. Laut DPU umfasst die Zone den geplanten Zweck R1 – Sport- und Freizeitzweck – SPORT. Laut DPU verfügt das Baugrundstück mit der Planungsbezeichnung über eine Gesamtfläche von 3.072,0 m², wobei die größte zulässige bebaute Fläche des Grundstücks 2.445,0 m² beträgt. Die maximal zulässige Anzahl an Stockwerken beträgt P+1 bei einer maximalen Gebäudehöhe von 8,0 m. AKTUELLE SITUATION: Bei der betroffenen Zone handelt es sich im Wesentlichen um ein flaches Plateau etwa 1,5 m über der Straße, auf dem ein Sportplatz, nämlich zwei Tennisplätze, angelegt wurde. Zum Gelände gehört neben dem gepflegten Sportplatz auch eine Sport- und Gastronomieanlage. Auf der Südwestseite wird das Grundstück durch eine Straße begrenzt, die etwa 1,5 m unter dem Niveau des Sportplatzplateaus liegt. Die nordwestliche und ein Teil der südöstlichen Seite werden durch einen öffentlichen Fußgängerbereich – öffentliche Treppen – definiert. Es wird auf der nordöstlichen Seite und teilweise auf der südöstlichen Seite von einer Klippe begrenzt. GEPLANTER ZUSTAND: Dieser Konzeptentwurf sieht den Bau des Sportzentrums Pećine und einer Tiefgarage für insgesamt 59 Parkplätze vor. Auf dem Garagendach ist die Errichtung eines Sportbereichs und eines Tribünentrakts geplant. Gemäß der kartografischen Darstellung 4.BAUBEDINGUNGEN ist auf einem Baugrundstück mit der Planungsbezeichnung R1-3 die Errichtung eines Erdgeschosses + 1 Gebäudes auf der Regulierungslinie mit einer Gesamtgrundfläche von 490,0 m² und einer Gesamtbruttofläche von 780,0 m² geplant. Im geplanten Gebäudeteil sollen Sport- und Freizeiteinrichtungen wie ein Vereinsbereich, Umkleidekabinen, ein Fitnessstudio sowie Gastronomie- und Geschäftsräume untergebracht werden. Zur Erweiterung des Baugrundstücks ist eine Tiefgarage mit Einfahrt von der Šetalište-Straße, XIII. Abteilung, geplant. Auf dem Dach der Garage entsteht ein Sportplatz mit Tribünenaufstellung. Liste der Nettoflächen: 1 - TECHNIKRAUM 44,0 m² 2 - TURNHALLE 1 150,0 m² 3 - KOMMUNIKATION 21,5 m² 4 - SPORTCLUB 28,0 m² 5 - TECHNIKRAUM 12,0 m² 6 - BÜROFLÄCHEN 113,5 m² 7 - TIEFGARAGE 1.800,0 m² 8 - TURNHALLE 2 109,0 m² 9 - DURCHGANG UND TREPPE 67,5 m²x0,5 10 - GARDEROBE 16,5 m² 11 - KOMMUNIKATION 21,5 m² 12 - SANITÄRRÄUME 19,0 m² 13 - ATRIUM 113,5 m²x0,5 CATERINGFLÄCHE 170,0 m² 15- TERRASSE 26,0 m²x0,5 16- SPORTPLATZ 17- TRIBÜNEN GESAMT 2.608,5 m2 - Bauland für ernsthafte Investoren - eine Rarität auf dem Markt - Grundstück an der Stadtgrenze - Zugang ist von der Hauptstraße gewährleistet und befindet sich in unmittelbarer Nähe (fußläufig erreichbar) einer Grundschule, eines Kindergartens und anderer Annehmlichkeiten des täglichen Lebens. Ein Anwesen, von dem aus Sie in nur einer Minute zu Fuß zum Meer und Strand gelangen! PEĆINE: Zahlreiche Villen mit grünen Innenhöfen, wunderschön angelegte Parks, eine Reihe von Stränden und Badebereichen sowie eine interessante Geschichte sind die Merkmale, die dieses Viertel von Rijeka im äußersten Südosten der Stadt schmücken. Der ehemalige Wohnort der Reichen ist mit Sommerhäusern entlang der Küste geschmückt, die von üppigen Blumengärten umgeben sind, während in einer späteren Periode Wohnhäuser errichtet wurden. Rijekas erstes großes Einkaufszentrum, ein Vergnügungspark für Kinder, ein Handball- und Tennisclub, Sportvereine, die Lage, die Nähe zum Stadtzentrum, ein Hotel und drei Hostels sind nur einige der Merkmale dieses Viertels, das Leben mit Entspannung und Erholung bietet.
Sehr geehrte Kunden, die Agenturprovision wird gemäß den Allgemeinen Geschäftsbedingungen berechnet: www.dux-nekretnine.hr/opci-uvjeti-poslovanja
ID CODE: 38273
Ausstattungsmerkmale
| Anzahl der Etagen im Haus | 0 |
Karte wird geladen...
Objektstandort
51000 Rijeka
- Kvarner Region [Primorsko-Goranska]