ZADAR, ZATON – Baugrundstück 70 Meter vom Strand entfernt mit einem Vorentwurf für ein Gebäude mit 9 Wohnungen!
488.400 €
Kaufpreis
immobilien.de Nr.: 8995094
Objektnummer: 38158
Preise & Kosten
| Kaufpreis | 488.400 € |
| Nebenkosten | keine Angabe |
Größe & Zustand
| Gesamtfläche | 1.221 m² |
| Verfügbar ab | keine Angabe |
Objektbeschreibung
ZADAR, ZATON – Baugrundstück 70 Meter vom Strand entfernt mit einem Vorentwurf für ein Gebäude mit 9 Wohnungen!
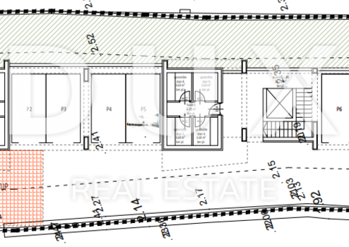
Zum Verkauf steht ein attraktives Baugrundstück mit einem Konzeptentwurf für ein modernes Wohngebäude mit neun Wohnungen, gelegen in fantastischer Lage in Zaton, nur 70 Meter vom Meer entfernt. Die Grundstücksfläche beträgt 1221 m2 und das Projekt umfasst ein Erdgeschoss, zwei Stockwerke und eine geräumige Dachterrasse mit atemberaubendem Meerblick. Dies ist eine außergewöhnliche Gelegenheit für Investoren! Das Gebäude wird über zwei Aufzüge verfügen, um den zukünftigen Bewohnern maximalen Komfort und Bequemlichkeit zu bieten. Jede Wohnung besteht aus zwei Schlafzimmern, einem Wohnzimmer, einer Küche und einem Badezimmer, außerdem verfügt die Wohnung über einen eigenen Abstellraum. Es stehen 12 Parkplätze zur Verfügung und die gesamte notwendige Infrastruktur, einschließlich Wasser und Strom, befindet sich in unmittelbarer Nähe. Ein weiterer Vorteil besteht darin, dass der Verkäufer eine juristische Person ist und der Käufer daher keine Grunderwerbsteuer zahlt. Zaton ist einer der begehrtesten Orte an der Adriaküste und bekannt für seine wunderschönen Strände, das kristallklare Meer und den authentischen dalmatinischen Charme. Es liegt nur zehn Autominuten von Zadar entfernt, einer der schönsten und malerischsten Städte Kroatiens, reich an Geschichte, Kultur und Gastronomie. Eine besondere Attraktion dieser Gegend ist das Zaton Holiday Resort, der beste Campingplatz Kroatiens, der mit seinen erstklassigen Annehmlichkeiten, dem langen Sandstrand, den Schwimmbädern, Sportplätzen und Unterhaltungsprogrammen für alle Generationen Besucher aus aller Welt anzieht. Genau aus diesem Grund ist Zaton eines der begehrtesten Ziele für Immobilieninvestitionen, sei es für die touristische Vermietung oder für luxuriöses Wohnen am Meer. Verpassen Sie nicht die Gelegenheit, in eine exklusive Lage mit großem Potenzial zu investieren! Kontaktieren Sie uns für weitere Informationen und sichern Sie sich Ihren Platz im Herzen der Adriaküste.
Sehr geehrte Kunden, die Agenturprovision wird gemäß den Allgemeinen Geschäftsbedingungen berechnet: http://www.dux-nekretnine.hr/opci-uvjeti-poslovanja
ID CODE: 38158
Zum Verkauf steht ein attraktives Baugrundstück mit einem Konzeptentwurf für ein modernes Wohngebäude mit neun Wohnungen, gelegen in fantastischer Lage in Zaton, nur 70 Meter vom Meer entfernt. Die Grundstücksfläche beträgt 1221 m2 und das Projekt umfasst ein Erdgeschoss, zwei Stockwerke und eine geräumige Dachterrasse mit atemberaubendem Meerblick. Dies ist eine außergewöhnliche Gelegenheit für Investoren! Das Gebäude wird über zwei Aufzüge verfügen, um den zukünftigen Bewohnern maximalen Komfort und Bequemlichkeit zu bieten. Jede Wohnung besteht aus zwei Schlafzimmern, einem Wohnzimmer, einer Küche und einem Badezimmer, außerdem verfügt die Wohnung über einen eigenen Abstellraum. Es stehen 12 Parkplätze zur Verfügung und die gesamte notwendige Infrastruktur, einschließlich Wasser und Strom, befindet sich in unmittelbarer Nähe. Ein weiterer Vorteil besteht darin, dass der Verkäufer eine juristische Person ist und der Käufer daher keine Grunderwerbsteuer zahlt. Zaton ist einer der begehrtesten Orte an der Adriaküste und bekannt für seine wunderschönen Strände, das kristallklare Meer und den authentischen dalmatinischen Charme. Es liegt nur zehn Autominuten von Zadar entfernt, einer der schönsten und malerischsten Städte Kroatiens, reich an Geschichte, Kultur und Gastronomie. Eine besondere Attraktion dieser Gegend ist das Zaton Holiday Resort, der beste Campingplatz Kroatiens, der mit seinen erstklassigen Annehmlichkeiten, dem langen Sandstrand, den Schwimmbädern, Sportplätzen und Unterhaltungsprogrammen für alle Generationen Besucher aus aller Welt anzieht. Genau aus diesem Grund ist Zaton eines der begehrtesten Ziele für Immobilieninvestitionen, sei es für die touristische Vermietung oder für luxuriöses Wohnen am Meer. Verpassen Sie nicht die Gelegenheit, in eine exklusive Lage mit großem Potenzial zu investieren! Kontaktieren Sie uns für weitere Informationen und sichern Sie sich Ihren Platz im Herzen der Adriaküste.
Sehr geehrte Kunden, die Agenturprovision wird gemäß den Allgemeinen Geschäftsbedingungen berechnet: http://www.dux-nekretnine.hr/opci-uvjeti-poslovanja
ID CODE: 38158
Ausstattung
| Anzahl der Etagen im Haus | 0 |
