Sesvete, Sesvete, Zentrum, Baugrundstück mit Projekt, 774 m²
1.000.000 €
Kaufpreis
immobilien.de Nr.: 8944530
Objektnummer: 2641
Kaufpreis
| Kaufpreis | 1.000.000 € |
Wohnfläche, Grundstück & Bausubstanz
| Gesamtfläche | 774 m² |
| Verfügbar ab | keine Angabe |
Beschreibung der Immobilie
ZU VERKAUFEN – BAUGRUNDSTÜCK IM ZENTRUM VON SESVETE MIT GENEHMIGTER PROJEKTUNTERLAGE UND BAUGENEHMIGUNG FÜR EIN GESCHÄFTSGEBÄUDE
Zum Verkauf steht ein Baugrundstück im Zentrum von Sesvete mit vollständiger Projektunterlage und erteilter Baugenehmigung für den Bau eines Geschäftsgebäudes.
GRUNDSTÜCK:
- Gesamtfläche: 774 m²
- Rechteckige Form
- Straßenfront: ca. 18 m
- Lage in der M‑Zone, Urbanes Regelwerk 2.1
PROJEKT:
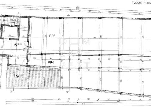
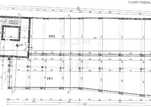
- Vorgesehen ist der Bau eines Geschäftsgebäudes mit 9 Geschäftseinheiten für Handels‑, Gastronomie‑ und Dienstleistungszwecke
Das Gebäude umfasst:
- Untergeschoss
- Erdgeschoss
- Ersten Stock
- Zweiten Stock
- Grundrissmaße: 36,49 m x 16,59 m
- Gesamte Bruttogeschossfläche (BGF): ca. 1.650 m²
INFRASTRUKTUR:
Wasser, Strom, Gas und Kanalisation sind bereits auf dem bestehenden Objekt auf dem Grundstück vorhanden
DOKUMENTATION:
Genehmigtes Projekt und erteilte Baugenehmigung
KONTAKT:
Snježana Čabraja
Tel: +385 1 2013 007
Mob: +385 099 3601 634
E‑Mail: snjezana.cabraja@domekspert.hr
ID CODE: 2641
Zum Verkauf steht ein Baugrundstück im Zentrum von Sesvete mit vollständiger Projektunterlage und erteilter Baugenehmigung für den Bau eines Geschäftsgebäudes.
GRUNDSTÜCK:
- Gesamtfläche: 774 m²
- Rechteckige Form
- Straßenfront: ca. 18 m
- Lage in der M‑Zone, Urbanes Regelwerk 2.1
PROJEKT:
- Vorgesehen ist der Bau eines Geschäftsgebäudes mit 9 Geschäftseinheiten für Handels‑, Gastronomie‑ und Dienstleistungszwecke
Das Gebäude umfasst:
- Untergeschoss
- Erdgeschoss
- Ersten Stock
- Zweiten Stock
- Grundrissmaße: 36,49 m x 16,59 m
- Gesamte Bruttogeschossfläche (BGF): ca. 1.650 m²
INFRASTRUKTUR:
Wasser, Strom, Gas und Kanalisation sind bereits auf dem bestehenden Objekt auf dem Grundstück vorhanden
DOKUMENTATION:
Genehmigtes Projekt und erteilte Baugenehmigung
KONTAKT:
Snježana Čabraja
Tel: +385 1 2013 007
Mob: +385 099 3601 634
E‑Mail: snjezana.cabraja@domekspert.hr
ID CODE: 2641
Ausstattungsmerkmale
| Anzahl der Etagen im Haus | 0 |
Karte wird geladen...
Objektstandort
10360 Sesvete
- Zagreb (Stadt) [Grad Zagreb]
Kontaktanfrage senden
Über den Anbieter
Dom Ekspert d.o.o.
Varazdinska cesta 111
10360 Sesvete
Kontakt
| Telefon | +385 1 201 3007 |
| Mobil | +385 99 360 1634 |
Ansprechpartner/in
Snježana Čabraja