Gornji Bukovac, Voll möblierte Dreizimmerwohnung im zweiten Stock - 155m2
469.000 €
Kaufpreis
4
Zimmer
immobilien.de Nr.: 8917548
Objektnummer: 2613
Kaufpreis
| Kaufpreis | 469.000 € |
Wohnfläche, Grundstück & Bausubstanz
| Gesamtfläche | 154 m² |
| Zimmer | 4 |
| Baujahr | 2011 |
| Verfügbar ab | keine Angabe |
Beschreibung der Immobilie
Zu verkaufen: Voll möblierte 4-Zimmer-Wohnung in Gornji Bukovac, Maksimir – 118,16 m²
Eine voll möblierte 4-Zimmer-Wohnung im zweiten (obersten) Stock eines kleinen Wohngebäudes, das 2011 in Gornji Bukovac, Maksimir erbaut wurde.
Die Wohnung ist nach Nordosten, Osten, Südosten und Südwesten ausgerichtet und bietet den ganzen Tag über viel natürliches Licht.
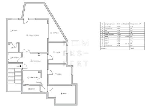
Flächen:
Beheizte Wohnfläche: 105,70 m²
Netto-Nutzfläche: 118,16 m² (berechnet mit Koeffizienten)
Bruttogeschossfläche: 154,97 m²
Raumaufteilung:
Eingangsbereich und Flur: 17,95 m²
Offener Wohn-, Ess- und Küchenbereich: 36,30 m²
Speisekammer: 2,75 m²
Drei Schlafzimmer: 13,64 m², 13,58 m² und 11,24 m²
Zwei Badezimmer: 6,73 m² und 3,51 m²
Terrasse: 17,53 m²
Loggia: 3,14 m²
Zur Wohnung gehören zwei nicht überdachte Außenparkplätze (jeweils 14,30 m²).
Lage:
Die Wohnung befindet sich in einer ausgezeichneten Lage, in der Nähe einer Grundschule, öffentlicher Verkehrsmittel, eines Marktes und anderer Annehmlichkeiten für ein komfortables Wohnen.
Kontakt:
Lorenzo Vinković
Festnetz: +385 1 2013 007
Mobil: +385 95 371 0020
E-Mail: lorenzo.vinkovic@domekspert.hr
ID CODE: 2613
Eine voll möblierte 4-Zimmer-Wohnung im zweiten (obersten) Stock eines kleinen Wohngebäudes, das 2011 in Gornji Bukovac, Maksimir erbaut wurde.
Die Wohnung ist nach Nordosten, Osten, Südosten und Südwesten ausgerichtet und bietet den ganzen Tag über viel natürliches Licht.
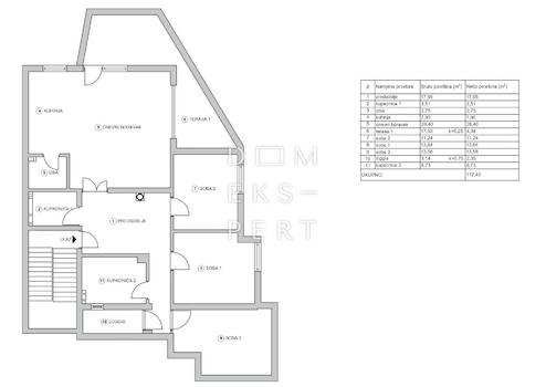
Flächen:
Beheizte Wohnfläche: 105,70 m²
Netto-Nutzfläche: 118,16 m² (berechnet mit Koeffizienten)
Bruttogeschossfläche: 154,97 m²
Raumaufteilung:
Eingangsbereich und Flur: 17,95 m²
Offener Wohn-, Ess- und Küchenbereich: 36,30 m²
Speisekammer: 2,75 m²
Drei Schlafzimmer: 13,64 m², 13,58 m² und 11,24 m²
Zwei Badezimmer: 6,73 m² und 3,51 m²
Terrasse: 17,53 m²
Loggia: 3,14 m²
Zur Wohnung gehören zwei nicht überdachte Außenparkplätze (jeweils 14,30 m²).
Lage:
Die Wohnung befindet sich in einer ausgezeichneten Lage, in der Nähe einer Grundschule, öffentlicher Verkehrsmittel, eines Marktes und anderer Annehmlichkeiten für ein komfortables Wohnen.
Kontakt:
Lorenzo Vinković
Festnetz: +385 1 2013 007
Mobil: +385 95 371 0020
E-Mail: lorenzo.vinkovic@domekspert.hr
ID CODE: 2613
Ausstattungsmerkmale
| Anzahl der Etagen im Haus | 2 |
| Inserat befindet sich im Stockwerk | 2 |
| Bad | 2 |
Karte wird geladen...
Objektstandort
10000 Maksimir
- Zagreb (Stadt) [Grad Zagreb]
Kontaktanfrage senden
Über den Anbieter
Dom Ekspert d.o.o.
Varazdinska cesta 111
10360 Sesvete
Kontakt
| Mobil | +385 95 371 0020 |
Ansprechpartner/in
Lorenzo Vinković