ISTRIEN, PIĆAN - Motel mit 70 Betten, 1025 m2
1 €
Kaufpreis
immobilien.de Nr.: 8887096
Objektnummer: 36136
Kaufpreis
| Kaufpreis | 1 € |
Wohnfläche, Grundstück & Bausubstanz
| Gesamtfläche | 1.025 m² |
| Bürofläche | 1.025 m² |
| Letzte Modernisierung | 2022 |
| Verfügbar ab | keine Angabe |
Beschreibung der Immobilie
ISTRIEN, PIĆAN - Motel mit 70 Betten, 1025 m2
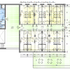
Pićan ist eine kleine, jahrhundertealte istrische Stadt mit einem reichen materiellen und kulturellen Erbe. Pićan ist ein kleiner Ort auf einem Hügel mit herrlichem Blick auf die umliegenden Städte, Weinberge, Olivenhaine und Učka und liegt auf halbem Weg zwischen zwei größeren Städten in Istrien – Pazin und Labina – Städten, in denen viele Arbeitgeber ansässig sind und jeden Tag dort sind gesuchte Unterkunft eher für Arbeiter. Genau das bietet diese Immobilie. Dieses neu adaptierte Motel mit einer Kapazität für 70 Personen liegt nur 6 Kilometer von Pićno entfernt. Die Anlage wurde 1968 erbaut und in diesem Jahr komplett renoviert. Bis auf die Stahlbetonkonstruktion ist alles neu. Sämtliche Installationen (Wasserversorgung, Kanalisation, Zentrale, Klimaanlage, Elektroinstallationen). Die Anlage verfügt über Wärmepumpen, die die Stromkosten senken, Sonnenkollektoren für Warmwasser und es ist geplant, auf der höchsten Terrasse ein Elektrizitätswerk zur Stromerzeugung zu errichten. Wenn wir den Haupteingang betreten, gelangen wir zur Rezeption, die sich in einem geräumigen Flur befindet, der zunächst zu 6 Zimmern mit jeweils 2 Einzelbetten und einem Fernseher führt. Dann kommen wir zu einem großen Schlafsaal mit 12 Einzelbetten. In der Fortsetzung des Flurs befinden sich Sanitäranlagen, 2 weitere Zimmer mit je 2 Betten und ein Esszimmer mit mehreren Tischen, von dem wir auf eine großzügige Terrasse gelangen. Im Erdgeschoss befinden sich 9 weitere Zimmer mit jeweils 2 Einzelbetten. Jedes dieser Zimmer verfügt über einen Fernseher und ein eigenes Badezimmer, und in der Fortsetzung des Flurs gibt es eine gemeinsame Küche und ein Esszimmer, dessen Tür zurück zur Rezeption führt. Wir steigen die Innentreppe hinauf zur Etage, wo sich links eine große Gemeinschaftstoilette befindet und rechts zwölf weitere Zimmer mit jeweils zwei Einzelbetten und einem Fernseher. Der Flur führt zu einer großzügigen Terrasse, ideal zum Sonnenbaden. Der Zugang zum Erdgeschoss ist über den Haupteingang möglich, ein weiterer zusätzlicher Eingang erfolgt über die Seite des Gebäudes. Die Kapazitäten des Hotels sind voll und das Hotel hat einen Vertrag mit einem namhaften Unternehmen, von dem es eine stattliche monatliche Miete erhält. Eine ideale Gelegenheit für Käufer, die auf der Suche nach neuen und sicheren Investitionen sind.
Sehr geehrte Kunden, die Agenturprovision wird gemäß den Allgemeinen Geschäftsbedingungen www.dux-nekretnine.hr/opci-uvjeti-poslovanja berechnet
ID CODE: 36136
Pićan ist eine kleine, jahrhundertealte istrische Stadt mit einem reichen materiellen und kulturellen Erbe. Pićan ist ein kleiner Ort auf einem Hügel mit herrlichem Blick auf die umliegenden Städte, Weinberge, Olivenhaine und Učka und liegt auf halbem Weg zwischen zwei größeren Städten in Istrien – Pazin und Labina – Städten, in denen viele Arbeitgeber ansässig sind und jeden Tag dort sind gesuchte Unterkunft eher für Arbeiter. Genau das bietet diese Immobilie. Dieses neu adaptierte Motel mit einer Kapazität für 70 Personen liegt nur 6 Kilometer von Pićno entfernt. Die Anlage wurde 1968 erbaut und in diesem Jahr komplett renoviert. Bis auf die Stahlbetonkonstruktion ist alles neu. Sämtliche Installationen (Wasserversorgung, Kanalisation, Zentrale, Klimaanlage, Elektroinstallationen). Die Anlage verfügt über Wärmepumpen, die die Stromkosten senken, Sonnenkollektoren für Warmwasser und es ist geplant, auf der höchsten Terrasse ein Elektrizitätswerk zur Stromerzeugung zu errichten. Wenn wir den Haupteingang betreten, gelangen wir zur Rezeption, die sich in einem geräumigen Flur befindet, der zunächst zu 6 Zimmern mit jeweils 2 Einzelbetten und einem Fernseher führt. Dann kommen wir zu einem großen Schlafsaal mit 12 Einzelbetten. In der Fortsetzung des Flurs befinden sich Sanitäranlagen, 2 weitere Zimmer mit je 2 Betten und ein Esszimmer mit mehreren Tischen, von dem wir auf eine großzügige Terrasse gelangen. Im Erdgeschoss befinden sich 9 weitere Zimmer mit jeweils 2 Einzelbetten. Jedes dieser Zimmer verfügt über einen Fernseher und ein eigenes Badezimmer, und in der Fortsetzung des Flurs gibt es eine gemeinsame Küche und ein Esszimmer, dessen Tür zurück zur Rezeption führt. Wir steigen die Innentreppe hinauf zur Etage, wo sich links eine große Gemeinschaftstoilette befindet und rechts zwölf weitere Zimmer mit jeweils zwei Einzelbetten und einem Fernseher. Der Flur führt zu einer großzügigen Terrasse, ideal zum Sonnenbaden. Der Zugang zum Erdgeschoss ist über den Haupteingang möglich, ein weiterer zusätzlicher Eingang erfolgt über die Seite des Gebäudes. Die Kapazitäten des Hotels sind voll und das Hotel hat einen Vertrag mit einem namhaften Unternehmen, von dem es eine stattliche monatliche Miete erhält. Eine ideale Gelegenheit für Käufer, die auf der Suche nach neuen und sicheren Investitionen sind.
Sehr geehrte Kunden, die Agenturprovision wird gemäß den Allgemeinen Geschäftsbedingungen www.dux-nekretnine.hr/opci-uvjeti-poslovanja berechnet
ID CODE: 36136
Ausstattungsmerkmale
| Anzahl der Etagen im Haus | 1 |
| Inserat befindet sich im Stockwerk | 1 |
Karte wird geladen...
Objektstandort
52332 Pićan
- Istrien
Kontaktanfrage senden
Über den Anbieter
DUX Nekretnine d.o.o.
Tizianova
51000 Rijeka
Kontakt
| Telefon | +385 91 480 8808 |
| Mobil | +385 91 480 8808 |
Ansprechpartner/in
Tina Širol