Klenovica, Poljice – Baubeginn mit Panoramablick
580.000 €
Kaufpreis
6
Zimmer
immobilien.de Nr.: 8749012
Objektnummer: 978
Kaufpreis
| Kaufpreis | 580.000 € |
Wohnfläche, Grundstück & Bausubstanz
| Gesamtfläche | 334 m² |
| Grundstücksfläche | 463 m² |
| Zimmer | 6 |
| Baujahr | 2024 |
| Verfügbar ab | keine Angabe |
Beschreibung der Immobilie
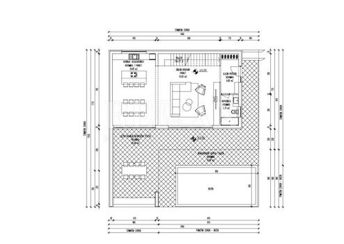
In der ruhigen Umgebung von Poljica, mit einem atemberaubenden Panoramablick auf das Meer, befindet sich eine großzügige Villa im Bau, ideal für diejenigen, die ihr zukünftiges Zuhause individuell gestalten möchten. Die Villa erstreckt sich über drei Etagen mit einer Gesamtfläche von 334,40 m². Die südliche Ausrichtung sorgt für reichlich natürliches Licht und einen herrlichen Meerblick von jeder Etage.
Im Untergeschoss, mit einer Fläche von 63,40 m², befinden sich eine Garage, ein Waschraum/Heizraum und zusätzlicher Stauraum.
Das Erdgeschoss mit 148,30 m² umfasst einen Eingangsbereich, ein großzügiges Wohnzimmer, eine Küche mit Essbereich, ein Badezimmer und eine überdachte Terrasse, die den perfekten Raum zur Entspannung bietet. Hier befindet sich auch ein Swimmingpool, ideal für Erfrischung an heißen Sommertagen.
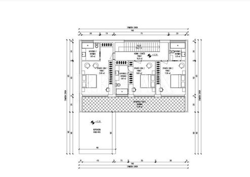
Im ersten Stock, mit einer Fläche von 122,70 m², befinden sich drei Schlafzimmer, jedes mit eigenem Bad, was maximalen Komfort und Privatsphäre gewährleistet. Die Schlafzimmer haben Zugang zu einer Loggia, von der aus Sie einen atemberaubenden Meerblick genießen können.
Die Villa wird im aktuellen Bauzustand verkauft, es besteht jedoch die Möglichkeit, sie für einen Preis von 1.200.000,00 Euro vollständig fertiggestellt zu erwerben, entsprechend den Wünschen des zukünftigen Eigentümers. Sie ist ideal für diejenigen, die eine ruhige Umgebung suchen und gleichzeitig die Nähe zum Meer und zu allen notwendigen Einrichtungen wünschen.
ID CODE: 978
Im Untergeschoss, mit einer Fläche von 63,40 m², befinden sich eine Garage, ein Waschraum/Heizraum und zusätzlicher Stauraum.
Das Erdgeschoss mit 148,30 m² umfasst einen Eingangsbereich, ein großzügiges Wohnzimmer, eine Küche mit Essbereich, ein Badezimmer und eine überdachte Terrasse, die den perfekten Raum zur Entspannung bietet. Hier befindet sich auch ein Swimmingpool, ideal für Erfrischung an heißen Sommertagen.
Im ersten Stock, mit einer Fläche von 122,70 m², befinden sich drei Schlafzimmer, jedes mit eigenem Bad, was maximalen Komfort und Privatsphäre gewährleistet. Die Schlafzimmer haben Zugang zu einer Loggia, von der aus Sie einen atemberaubenden Meerblick genießen können.
Die Villa wird im aktuellen Bauzustand verkauft, es besteht jedoch die Möglichkeit, sie für einen Preis von 1.200.000,00 Euro vollständig fertiggestellt zu erwerben, entsprechend den Wünschen des zukünftigen Eigentümers. Sie ist ideal für diejenigen, die eine ruhige Umgebung suchen und gleichzeitig die Nähe zum Meer und zu allen notwendigen Einrichtungen wünschen.
ID CODE: 978
Ausstattungsmerkmale
| Anzahl der Etagen im Haus | 1 |
| Bad | 4 |
Karte wird geladen...
Objektstandort
51250 Novi Vinodolski
- Kvarner Region [Primorsko-Goranska]
Kontaktanfrage senden
Über den Anbieter
Relax nekretnine d.o.o
Kralja Tomislava 89
51260 Novi Vinodolski
Kontakt
| Telefon | +385 51 333 888 |
| Mobil | +385 99 883 3323 |
| Website | www.relax-nekretnine.com/ |
Ansprechpartner/in
Gordan Butković, mag.oec.