INSEL PAG, POVLJANA - Moderne Wohnung mit Garten im Neubau S3
219.000 €
Kaufpreis
3
Zimmer
immobilien.de Nr.: 8741467
Objektnummer: 33093
Kaufpreis
| Kaufpreis | 219.000 € |
Wohnfläche, Grundstück & Bausubstanz
| Gesamtfläche | 57 m² |
| Zimmer | 3 |
| Baujahr | 2024 |
| Verfügbar ab | keine Angabe |
Beschreibung der Immobilie
INSEL PAG, POVLJANA - Moderne Wohnung mit Garten im Neubau S3
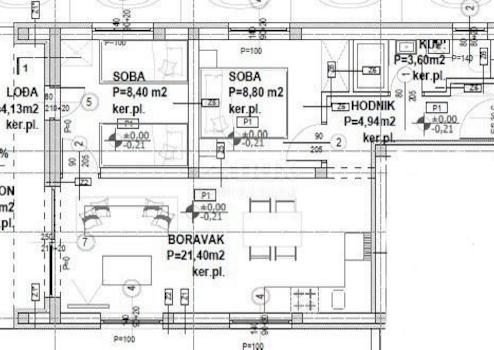
Moderne Wohnung zum Verkauf in einem neuen Gebäude in Povljana auf der Insel Pag. Die Wohnung mit einer Gesamtfläche von 46,53 m2 befindet sich im Erdgeschoss eines kleineren Wohnhauses mit 9 Wohneinheiten. Es besteht aus einem geräumigen Wohnzimmer, einer Küche und einem Esszimmer, zwei Schlafzimmern, einem Badezimmer und einem Flur. Die Wohnung verfügt über eine Loggia und einen Balkon sowie einen Garten von 62 m2 und einen Parkplatz im Hof des Gebäudes. Der Gesamtnutzwert der Wohnungsfläche inklusive Zubehör beträgt 57,84 m2. Das Gebäude befindet sich in einer äußerst attraktiven Lage, 300 m vom Meer und dem Stadtzentrum entfernt. Die Insel Pag ist flächenmäßig die fünftgrößte Insel der Adria, aber mit einer Küstenlänge von 302,47 km die am stärksten gegliederte Insel der Adria. Die Insel ist für ihre in einigen Teilen spärliche Vegetationsbedeckung bekannt, die oft mit der Oberfläche des Mondes verglichen wird.
Sehr geehrte Kunden, die Agenturprovision wird gemäß den Allgemeinen Geschäftsbedingungen berechnet: http://www.dux-nekretnine.hr/opci-uvjeti-poslovanja
ID CODE: 33093
Moderne Wohnung zum Verkauf in einem neuen Gebäude in Povljana auf der Insel Pag. Die Wohnung mit einer Gesamtfläche von 46,53 m2 befindet sich im Erdgeschoss eines kleineren Wohnhauses mit 9 Wohneinheiten. Es besteht aus einem geräumigen Wohnzimmer, einer Küche und einem Esszimmer, zwei Schlafzimmern, einem Badezimmer und einem Flur. Die Wohnung verfügt über eine Loggia und einen Balkon sowie einen Garten von 62 m2 und einen Parkplatz im Hof des Gebäudes. Der Gesamtnutzwert der Wohnungsfläche inklusive Zubehör beträgt 57,84 m2. Das Gebäude befindet sich in einer äußerst attraktiven Lage, 300 m vom Meer und dem Stadtzentrum entfernt. Die Insel Pag ist flächenmäßig die fünftgrößte Insel der Adria, aber mit einer Küstenlänge von 302,47 km die am stärksten gegliederte Insel der Adria. Die Insel ist für ihre in einigen Teilen spärliche Vegetationsbedeckung bekannt, die oft mit der Oberfläche des Mondes verglichen wird.
Sehr geehrte Kunden, die Agenturprovision wird gemäß den Allgemeinen Geschäftsbedingungen berechnet: http://www.dux-nekretnine.hr/opci-uvjeti-poslovanja
ID CODE: 33093
Ausstattungsmerkmale
| Anzahl der Etagen im Haus | 2 |
| Bad | 1 |
Karte wird geladen...
Objektstandort
23249 Povljana
- Dalmatien-Zadar (Region) [Zadarska]
Kontaktanfrage senden
Über den Anbieter
DUX Nekretnine d.o.o.
Tizianova
51000 Rijeka
Kontakt
| Telefon | +385 91 480 8808 |
| Mobil | +385 91 480 8808 |
Ansprechpartner/in
Sara Večeralo