ISTRIEN, SVETVINČENAT - Haus mit Swimmingpool in ländlicher Umgebung
520.000 €
Kaufpreis
4
Zimmer
immobilien.de Nr.: 8680747
Objektnummer: 32131
Kaufpreis
| Kaufpreis | 520.000 € |
Wohnfläche, Grundstück & Bausubstanz
| Gesamtfläche | 174 m² |
| Grundstücksfläche | 1.028 m² |
| Zimmer | 4 |
| Baujahr | 2024 |
| Verfügbar ab | keine Angabe |
Beschreibung der Immobilie
ISTRIEN, SVETVINČENAT - Haus mit Pool in ländlicher Umgebung
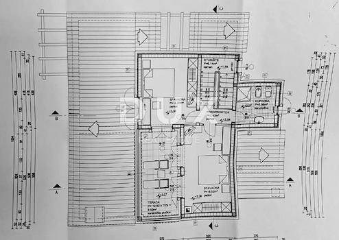
Wie aus einem Märchen liegt die schöne Renaissancestadt Svetvinčenat auf einem schroffen Plateau, umgeben von Wäldern, Weiden und Weinbergen. Svetvinčenat liegt auf 310 Metern Höhe im Süden Zentralistriens und wird von einem der schönsten Renaissanceplätze des Landes und der ältesten und am besten erhaltenen mittelalterlichen Burg Istriens dominiert. In der Gemeinde Svetvinčenat gibt es 22 Siedlungen, die mit natürlicher Schönheit, reichem historischen und kulturellen Erbe, künstlerischen Manifestationen sowie kulinarischem und gastronomischem Tourismus geschmückt sind. In der Nähe der Kleinstadt Svetvinčenta steht ein Haus mit Swimmingpool in ländlicher Umgebung zum Verkauf. Es befindet sich in einer sanften Siedlung, deren Lage ein authentisches Erlebnis einer kleinen istrischen Stadt, Intimität und Entspannung von all der Hektik und dem Lärm bietet und gleichzeitig nahe genug an den dynamischen Städten Istriens mit einer Reihe von Annehmlichkeiten liegt. Neben der Mikrolage zeichnet sich die Immobilie durch die Bauqualität aus, die langfristige Zufriedenheit und Wohnqualität garantiert. Das mediterrane Haus von zeitlosem Charme und Architektur, teilweise mit Stein verkleidet, fügt sich in Form und Farbe in das Dorf und die Landschaft ein. Es wurde als eine Wohneinheit konzipiert, die auf zwei Etagen Eleganz, Funktionalität und Komfort vereint. Das Erdgeschoss besteht aus einem offenen Raumkonzept, der Küche, Esszimmer und Wohnzimmer mit Zugang zu einer überdachten Terrasse, Schlafzimmern, Badezimmer, Gäste-WC, Waschküche, Eingangshalle, Eingangsveranda und Pergola-überdachter Terrasse mit Zugang zum Außenbereich vereint Lagerung. Die erste Etage besteht aus einer Eingangshalle, zwei Schlafzimmern, einem Badezimmer und einer überdachten Terrasse. Der weitläufige, umzäunte Garten ist voller Grün und mediterraner Pflanzen und die perfekte Harmonie wird durch den Swimmingpool mit Liegewiese abgerundet. Die hervorragende Lage und die räumliche Organisation des Innen- und Außenbereichs dieser Immobilie bieten die Möglichkeit für ein komfortables Familienleben oder eine Investitionsinvestition in ein touristisches Vermietungsunternehmen. Der geplante Termin für die Fertigstellung der Arbeiten und die Übergabe der Immobilie ist für Anfang 2025 vorgesehen. Der angegebene Preis der Immobilie bezieht sich auf die Endausführung ohne Möbel, die eine Enddekoration nach den eigenen Wünschen und Vorlieben ermöglicht.
Sehr geehrte Kunden, die Agenturprovision wird gemäß den Allgemeinen Geschäftsbedingungen berechnet: www.dux-nekretnine.hr/opci-uvjeti-poslovanja
ID CODE: 32131
Wie aus einem Märchen liegt die schöne Renaissancestadt Svetvinčenat auf einem schroffen Plateau, umgeben von Wäldern, Weiden und Weinbergen. Svetvinčenat liegt auf 310 Metern Höhe im Süden Zentralistriens und wird von einem der schönsten Renaissanceplätze des Landes und der ältesten und am besten erhaltenen mittelalterlichen Burg Istriens dominiert. In der Gemeinde Svetvinčenat gibt es 22 Siedlungen, die mit natürlicher Schönheit, reichem historischen und kulturellen Erbe, künstlerischen Manifestationen sowie kulinarischem und gastronomischem Tourismus geschmückt sind. In der Nähe der Kleinstadt Svetvinčenta steht ein Haus mit Swimmingpool in ländlicher Umgebung zum Verkauf. Es befindet sich in einer sanften Siedlung, deren Lage ein authentisches Erlebnis einer kleinen istrischen Stadt, Intimität und Entspannung von all der Hektik und dem Lärm bietet und gleichzeitig nahe genug an den dynamischen Städten Istriens mit einer Reihe von Annehmlichkeiten liegt. Neben der Mikrolage zeichnet sich die Immobilie durch die Bauqualität aus, die langfristige Zufriedenheit und Wohnqualität garantiert. Das mediterrane Haus von zeitlosem Charme und Architektur, teilweise mit Stein verkleidet, fügt sich in Form und Farbe in das Dorf und die Landschaft ein. Es wurde als eine Wohneinheit konzipiert, die auf zwei Etagen Eleganz, Funktionalität und Komfort vereint. Das Erdgeschoss besteht aus einem offenen Raumkonzept, der Küche, Esszimmer und Wohnzimmer mit Zugang zu einer überdachten Terrasse, Schlafzimmern, Badezimmer, Gäste-WC, Waschküche, Eingangshalle, Eingangsveranda und Pergola-überdachter Terrasse mit Zugang zum Außenbereich vereint Lagerung. Die erste Etage besteht aus einer Eingangshalle, zwei Schlafzimmern, einem Badezimmer und einer überdachten Terrasse. Der weitläufige, umzäunte Garten ist voller Grün und mediterraner Pflanzen und die perfekte Harmonie wird durch den Swimmingpool mit Liegewiese abgerundet. Die hervorragende Lage und die räumliche Organisation des Innen- und Außenbereichs dieser Immobilie bieten die Möglichkeit für ein komfortables Familienleben oder eine Investitionsinvestition in ein touristisches Vermietungsunternehmen. Der geplante Termin für die Fertigstellung der Arbeiten und die Übergabe der Immobilie ist für Anfang 2025 vorgesehen. Der angegebene Preis der Immobilie bezieht sich auf die Endausführung ohne Möbel, die eine Enddekoration nach den eigenen Wünschen und Vorlieben ermöglicht.
Sehr geehrte Kunden, die Agenturprovision wird gemäß den Allgemeinen Geschäftsbedingungen berechnet: www.dux-nekretnine.hr/opci-uvjeti-poslovanja
ID CODE: 32131
Ausstattungsmerkmale
| Anzahl der Etagen im Haus | 0 |
| Bad | 2 |
Karte wird geladen...
Objektstandort
52342 Svetvinčenat
- Istrien
Kontaktanfrage senden
Über den Anbieter
DUX Nekretnine d.o.o.
Tizianova
51000 Rijeka
Kontakt
| Telefon | +385 91 480 8808 |
| Mobil | +385 91 480 8808 |
Ansprechpartner/in
Iva Zajc