FUZINE, VRELO - Gebäude. Grundstück, 498 m2, FRIEDLICHE UND RUHIGE LAGE!!!
69.000 €
Kaufpreis
immobilien.de Nr.: 8658851
Objektnummer: 31509
Kaufpreis
| Kaufpreis | 69.000 € |
Wohnfläche, Grundstück & Bausubstanz
| Gesamtfläche | 498 m² |
| Verfügbar ab | keine Angabe |
Beschreibung der Immobilie
FUŽINE Wir verkaufen ein Baugrundstück in guter und gefragter Lage.
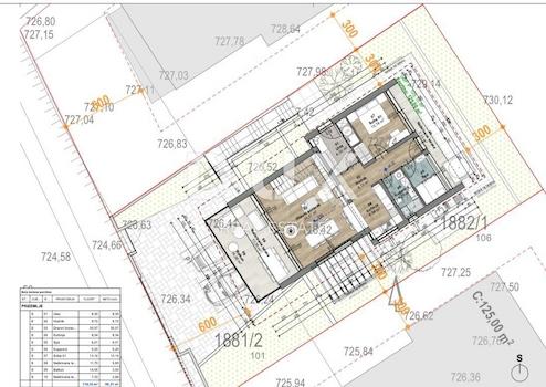
Das Grundstück erstreckt sich über 498 m2 und hat eine rechteckige Form. Die Standortgenehmigung wird gemäß dem Konzeptprojekt für den Bau eines modernen Berghauses mit einer Größe von 155 m2 eingeholt. Das Haus besteht aus einem Erdgeschoss und einem Obergeschoss und verfügt über vier Schlafzimmer und einen Wellnessbereich. Das Projekt ist änderbar und der Plan sieht auch den Bau eines Hauses mit zwei Wohneinheiten vor. Ausgezeichnete Immobilie mit viel Potenzial auf der sonnigen und hellen Seite, erhöht an der Straße. Die Nähe zu allen wichtigen Annehmlichkeiten bietet dennoch Ruhe und Frieden, ideal zum Entspannen in der Natur. Der Grundstückspreis beträgt 69.000 Euro (MwSt. ist nicht im Preis inbegriffen). Sehr geehrte Kunden, die Agenturprovision wird gemäß den Allgemeinen Geschäftsbedingungen www.dux-nekretnine.hr/opci-uvjeti-poslovanja berechnet
ID CODE: 31509
Das Grundstück erstreckt sich über 498 m2 und hat eine rechteckige Form. Die Standortgenehmigung wird gemäß dem Konzeptprojekt für den Bau eines modernen Berghauses mit einer Größe von 155 m2 eingeholt. Das Haus besteht aus einem Erdgeschoss und einem Obergeschoss und verfügt über vier Schlafzimmer und einen Wellnessbereich. Das Projekt ist änderbar und der Plan sieht auch den Bau eines Hauses mit zwei Wohneinheiten vor. Ausgezeichnete Immobilie mit viel Potenzial auf der sonnigen und hellen Seite, erhöht an der Straße. Die Nähe zu allen wichtigen Annehmlichkeiten bietet dennoch Ruhe und Frieden, ideal zum Entspannen in der Natur. Der Grundstückspreis beträgt 69.000 Euro (MwSt. ist nicht im Preis inbegriffen). Sehr geehrte Kunden, die Agenturprovision wird gemäß den Allgemeinen Geschäftsbedingungen www.dux-nekretnine.hr/opci-uvjeti-poslovanja berechnet
ID CODE: 31509
Ausstattungsmerkmale
| Anzahl der Etagen im Haus | 0 |
Karte wird geladen...
Objektstandort
51322 Fužine
- Kvarner Region [Primorsko-Goranska]
Kontaktanfrage senden
Über den Anbieter
DUX Nekretnine d.o.o.
Tizianova
51000 Rijeka
Kontakt
| Telefon | +385 91 480 8808 |
| Mobil | +385 91 480 8808 |
Ansprechpartner/in
DUX Nekretnine