ISTRIEN, SVETVINČENAT – Baugrundstück mit Baugenehmigung und bezahlten Nebenkosten
78.000 €
Kaufpreis
immobilien.de Nr.: 8657265
Objektnummer: 30383
Kaufpreis
| Kaufpreis | 78.000 € |
Wohnfläche, Grundstück & Bausubstanz
| Gesamtfläche | 547 m² |
| Verfügbar ab | keine Angabe |
Beschreibung der Immobilie
ISTRIEN, SVETVINČENAT – Baugrundstück mit Baugenehmigung und bezahlten Nebenkosten.
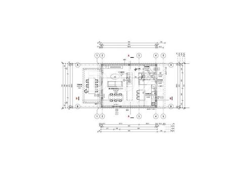
Baugrundstück zum Verkauf mit einem Projekt für ein Haus mit Schwimmbad und Baugenehmigung in einem autochthonen istrischen Dorf. Das Grundstück liegt am Ende des Dorfes in einer Sackgasse -Sack, hat eine regelmäßige Form, Fläche 547,43 m2. Der Zugang erfolgt über eine öffentliche Straße und ist an zwei Seiten von Trockenmauern begrenzt. Auf dem genannten Grundstück ist der Bau eines freistehenden Wohngebäudes, Erdgeschoss und Obergeschoss, Nebengebäude – Außenpool, Abstellraum mit Poolausrüstung, biologischer Reiniger, 2 Parkplätze geplant. Im Erdgeschoss des Hauses sind folgende Räume vorgesehen: Wohnzimmer, Esszimmer und Küche als offener Raum, Abstellraum, Toilette und Flur. Der erste Stock ist über eine Innentreppe erreichbar und im ersten Stock befinden sich 3 Schlafzimmer, jedes mit eigenem Bad. Die Außenterrasse ist 40 m2 groß, der Pool ist 28 m2 groß. Auf dem Grundstück sind Strom- und Wasseranschlüsse vorhanden. Es wurde ein Antrag auf Erteilung einer Baugenehmigung für ein Haus mit einer Nettofläche von 120 m2 mit Nebeneinrichtungen eingereicht, die im Sommer 2024 erwartet wird. Im Verkaufspreis sind das Hauptprojekt und die Baugenehmigung (nach Fertigstellung) enthalten. , Wasser- und Stromanschlüsse, gezahlte Gemeindebeiträge, vorbereitetes und geräumtes Bauland. Es ist möglich, mit dem Verkäufer über den Bau des betreffenden Gebäudes in der Roh- oder Schlüsselfertigphase zu verhandeln. Sehr geehrte Kunden, die Vermittlungsprovision wird gemäß den Allgemeinen Geschäftsbedingungen berechnet. https://www.dux-nekretnine.hr/opci-uvjeti-poslovanja
ID CODE: 30383
Baugrundstück zum Verkauf mit einem Projekt für ein Haus mit Schwimmbad und Baugenehmigung in einem autochthonen istrischen Dorf. Das Grundstück liegt am Ende des Dorfes in einer Sackgasse -Sack, hat eine regelmäßige Form, Fläche 547,43 m2. Der Zugang erfolgt über eine öffentliche Straße und ist an zwei Seiten von Trockenmauern begrenzt. Auf dem genannten Grundstück ist der Bau eines freistehenden Wohngebäudes, Erdgeschoss und Obergeschoss, Nebengebäude – Außenpool, Abstellraum mit Poolausrüstung, biologischer Reiniger, 2 Parkplätze geplant. Im Erdgeschoss des Hauses sind folgende Räume vorgesehen: Wohnzimmer, Esszimmer und Küche als offener Raum, Abstellraum, Toilette und Flur. Der erste Stock ist über eine Innentreppe erreichbar und im ersten Stock befinden sich 3 Schlafzimmer, jedes mit eigenem Bad. Die Außenterrasse ist 40 m2 groß, der Pool ist 28 m2 groß. Auf dem Grundstück sind Strom- und Wasseranschlüsse vorhanden. Es wurde ein Antrag auf Erteilung einer Baugenehmigung für ein Haus mit einer Nettofläche von 120 m2 mit Nebeneinrichtungen eingereicht, die im Sommer 2024 erwartet wird. Im Verkaufspreis sind das Hauptprojekt und die Baugenehmigung (nach Fertigstellung) enthalten. , Wasser- und Stromanschlüsse, gezahlte Gemeindebeiträge, vorbereitetes und geräumtes Bauland. Es ist möglich, mit dem Verkäufer über den Bau des betreffenden Gebäudes in der Roh- oder Schlüsselfertigphase zu verhandeln. Sehr geehrte Kunden, die Vermittlungsprovision wird gemäß den Allgemeinen Geschäftsbedingungen berechnet. https://www.dux-nekretnine.hr/opci-uvjeti-poslovanja
ID CODE: 30383
Ausstattungsmerkmale
| Anzahl der Etagen im Haus | 0 |
Karte wird geladen...
Objektstandort
52342 Svetvinčenat
- Istrien
Kontaktanfrage senden
Über den Anbieter
DUX Nekretnine d.o.o.
Tizianova
51000 Rijeka
Kontakt
| Telefon | +385 91 480 8808 |
| Mobil | +385 91 480 8808 |
Ansprechpartner/in
Ana Glavaš