ISTRIEN, GROŽNJAN - Baugrundstück mit Projekt
130.000 €
Kaufpreis
immobilien.de Nr.: 8657167
Objektnummer: 31430
Kaufpreis
| Kaufpreis | 130.000 € |
Wohnfläche, Grundstück & Bausubstanz
| Gesamtfläche | 678 m² |
| Verfügbar ab | keine Angabe |
Beschreibung der Immobilie
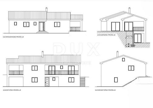
ISTRIEN, GROŽNJAN – Bauland mit dem Projekt
Grožnjan, eine mittelalterliche Stadt im Nordwesten Istriens, etwa 15 km vom Meer entfernt, auf einem Hügel gelegen, umgeben von Olivenhainen und Weinbergen. Es ist stolz auf seine reiche Tradition, sein kulturelles Erbe und die Schönheit seiner natürlichen Umgebung, die alle durch Kunst bereichert werden. Einst eine wichtige venezianische Festung und regionales Zentrum, ist Grožnjan heute eine Stadt der Künstler und eines der begehrtesten Reiseziele für einen kreativen Urlaub. Wie auch in anderen Städten Istriens sind hier mediterranes und kontinentales Klima eng miteinander verbunden, sodass die Lebensbedingungen äußerst günstig sind. Zum Verkauf steht ein Baugrundstück von 678 m2 mit einem Projekt. Dem Projekt zufolge soll das zukünftige Gebäude eine Bruttogeschossfläche von 199,57 m2 haben und zwei Wohneinheiten enthalten, die auf das Untergeschoss und das Erdgeschoss verteilt sind. Nach den Wünschen des zukünftigen Eigentümers kann die Wohneinheit im Untergeschoss als Ort für Unterhaltung, Whirlpool, Fitnessraum, Sauna usw. genutzt werden. Die Lage des Gebäudes im Erdgeschoss lässt genügend Platz für den Bau eines Schwimmbades. Das Grundstück liegt an einem leichten Hang und ist über eine asphaltierte Straße erreichbar. Stromanschluss ist auf dem Grundstück. Die Unterbringung in einer ruhigen Siedlung unweit des malerischen und touristisch attraktiven Grožnjan macht dieses Anwesen ideal für den Bau eines Ferienhauses. Sehr geehrte Kunden, die Agenturprovision wird gemäß den Allgemeinen Geschäftsbedingungen berechnet: www.dux-nekretnine.hr/opci-uvjeti-poslovanja
ID CODE: 31430
Grožnjan, eine mittelalterliche Stadt im Nordwesten Istriens, etwa 15 km vom Meer entfernt, auf einem Hügel gelegen, umgeben von Olivenhainen und Weinbergen. Es ist stolz auf seine reiche Tradition, sein kulturelles Erbe und die Schönheit seiner natürlichen Umgebung, die alle durch Kunst bereichert werden. Einst eine wichtige venezianische Festung und regionales Zentrum, ist Grožnjan heute eine Stadt der Künstler und eines der begehrtesten Reiseziele für einen kreativen Urlaub. Wie auch in anderen Städten Istriens sind hier mediterranes und kontinentales Klima eng miteinander verbunden, sodass die Lebensbedingungen äußerst günstig sind. Zum Verkauf steht ein Baugrundstück von 678 m2 mit einem Projekt. Dem Projekt zufolge soll das zukünftige Gebäude eine Bruttogeschossfläche von 199,57 m2 haben und zwei Wohneinheiten enthalten, die auf das Untergeschoss und das Erdgeschoss verteilt sind. Nach den Wünschen des zukünftigen Eigentümers kann die Wohneinheit im Untergeschoss als Ort für Unterhaltung, Whirlpool, Fitnessraum, Sauna usw. genutzt werden. Die Lage des Gebäudes im Erdgeschoss lässt genügend Platz für den Bau eines Schwimmbades. Das Grundstück liegt an einem leichten Hang und ist über eine asphaltierte Straße erreichbar. Stromanschluss ist auf dem Grundstück. Die Unterbringung in einer ruhigen Siedlung unweit des malerischen und touristisch attraktiven Grožnjan macht dieses Anwesen ideal für den Bau eines Ferienhauses. Sehr geehrte Kunden, die Agenturprovision wird gemäß den Allgemeinen Geschäftsbedingungen berechnet: www.dux-nekretnine.hr/opci-uvjeti-poslovanja
ID CODE: 31430
Ausstattungsmerkmale
| Anzahl der Etagen im Haus | 0 |
Karte wird geladen...
Objektstandort
52429 Grožnjan
- Istrien
Kontaktanfrage senden
Über den Anbieter
DUX Nekretnine d.o.o.
Tizianova
51000 Rijeka
Kontakt
| Telefon | +385 91 480 8808 |
| Mobil | +385 91 480 8808 |
Ansprechpartner/in
Dux nekretnine Istra