Villa Zapad, 180 m vom Meer und Strand entfernt
749.000 €
Kaufpreis
116 m²
Wohnfläche
270 m²
Nutzfläche
4
Zimmer
immobilien.de Nr.: 8656027
Objektnummer: 99
Kaufpreis
| Kaufpreis | 749.000 € |
Wohnfläche, Grundstück & Bausubstanz
| Wohnfläche | 116 m² |
| Nutzfläche | 270 m² |
| Grundstücksfläche | 320 m² |
| Zimmer | 4 |
| Baujahr | 2026 |
| Verfügbar ab | keine Angabe |
Energie
| Heizungsart | Fußbodenheizung |
| Energieträger/Befeuerung | Elektro |
Beschreibung der Immobilie
Projekt Resort Vinišće, Bucht von Ljubljeva, drei moderne Villen mit Pool, Meerblick, 180 m vom Meer und Strand entfernt. Vila Zapad.
Das Projekt Resort Vinisce Ljubljeva Bay besteht aus drei modernen Villen: Villa East, Villa Srednja, Villa Zapad.
Südliche Ausrichtung, ganztägige Sonne und ein definierter direkter Blick auf das 180 Meter entfernte Meer sind einige Merkmale unseres Projekts.
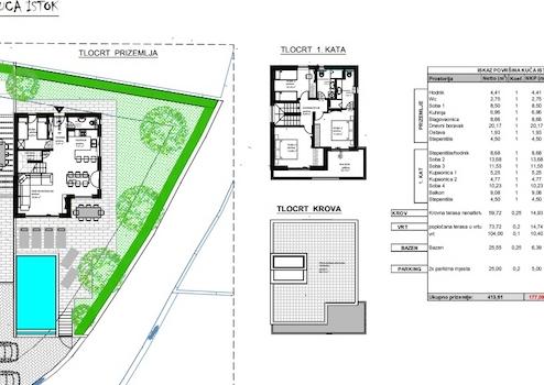
Villa Zapad ist eine nach Südwesten ausgerichtete Villa und besteht aus zwei Etagen.
Im Erdgeschoss gibt es einen Flur, eine separate Toilette, eine offene Küche, ein Schlafzimmer, ein Esszimmer und ein Wohnzimmer, einen Abstellraum und eine Treppe, die in den ersten Stock führt.
Im Obergeschoss befinden sich 3 Schlafzimmer, 2 Badezimmer, eine Treppe zur Dachterrasse und ein Balkon.
Im zweiten Stock gibt es eine Dachterrasse mit schöner Aussicht.
Draußen gibt es eine große Terrasse, einen Garten mit Grill, einen Swimmingpool und 2 Parkplätze.
Insgesamt gibt es 4 Schlafzimmer, 2 Badezimmer, 1 separates WC.
Oberflächen:
- Innenraum 116,54 m2
- Balkon 9,08 m2
- Dachterrasse 59,72 m2
- Außenterrasse im Erdgeschoss 88 m2
- Gartengrundstück 64,80 m2
- Schwimmbad 25,55 m2
- zwei Parkplätze 25 m2
Ausstattung: voll klimatisiert, Fußbodenheizung in Wohnküche und Bad, Videoüberwachung.
Das Projekt wird im Jahr 2025 beginnen und voraussichtlich Ende 2026 abgeschlossen sein.
Weitere Informationen: www.resort-vinisce.com
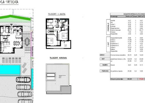
Das Projekt Resort Vinisce Ljubljeva Bay besteht aus drei modernen Villen: Villa East, Villa Srednja, Villa Zapad.
Südliche Ausrichtung, ganztägige Sonne und ein definierter direkter Blick auf das 180 Meter entfernte Meer sind einige Merkmale unseres Projekts.
Villa Zapad ist eine nach Südwesten ausgerichtete Villa und besteht aus zwei Etagen.
Im Erdgeschoss gibt es einen Flur, eine separate Toilette, eine offene Küche, ein Schlafzimmer, ein Esszimmer und ein Wohnzimmer, einen Abstellraum und eine Treppe, die in den ersten Stock führt.
Im Obergeschoss befinden sich 3 Schlafzimmer, 2 Badezimmer, eine Treppe zur Dachterrasse und ein Balkon.
Im zweiten Stock gibt es eine Dachterrasse mit schöner Aussicht.
Draußen gibt es eine große Terrasse, einen Garten mit Grill, einen Swimmingpool und 2 Parkplätze.
Insgesamt gibt es 4 Schlafzimmer, 2 Badezimmer, 1 separates WC.
Oberflächen:
- Innenraum 116,54 m2
- Balkon 9,08 m2
- Dachterrasse 59,72 m2
- Außenterrasse im Erdgeschoss 88 m2
- Gartengrundstück 64,80 m2
- Schwimmbad 25,55 m2
- zwei Parkplätze 25 m2
Ausstattung: voll klimatisiert, Fußbodenheizung in Wohnküche und Bad, Videoüberwachung.
Das Projekt wird im Jahr 2025 beginnen und voraussichtlich Ende 2026 abgeschlossen sein.
Weitere Informationen: www.resort-vinisce.com
Ausstattungsmerkmale
| Anzahl der Etagen im Haus | 2 |
| Küche | Offene Küche |
| Bad | 2 |
| Bad | Dusche |
| Boden | Fliesen |
| Balkone | 1 |
| Terrassen | 1 |
| Dachboden |
Sonstige Informationen
Meer und Strand sind nur 180 Meter entfernt.
Und der Blick von unserem Grundstück ist ein für immer definierter Blick auf das Meer und die nahe gelegenen Inseln...
Und der Blick von unserem Grundstück ist ein für immer definierter Blick auf das Meer und die nahe gelegenen Inseln...
Karte wird geladen...
Objektstandort
21226 Vinisce
Lage & Infrastruktur
Objektstandort
21226 Vinisce
Resort Vinisce, Bucht von Ljubljeva, moderne Villen mit Swimmingpool, Meerblick, 180 m vom Meer und Strand entfernt
Nach jahrelanger Suche nach dem idealen Grundstück für unser Projekt haben wir den idealen Ort gefunden, ein echtes verstecktes Juwel, weit weg vom Stress und der Hektik des modernen Lebens, aber dennoch so nah am modernen Leben.
Der ideale Ort, um Ihren Urlaub zu beginnen, die Schönheiten und die Natur Kroatiens kennenzulernen, die angenehme und malerische Bucht von Ljubljeva.
Unser Grundstück liegt auf einem Hügel, direkt an der Straße, die zum Meer und Strand führt.
Meer und Strand sind nur 180 Meter entfernt.
Und der Blick von unserem Grundstück ist ein für immer definierter Blick auf das Meer und die nahe gelegenen Inseln...
Die Idee und Vision unseres Projekts ist die Ausrichtung auf das Meer und die Sonne, mit einer ruhigen Lage, wo Sie immer noch das Zwitschern der Vögel hören und Ihren Jahresurlaub mit Ihren Kindern unbeschwert genießen können.
Südausrichtung, ganztägige Sonne und ein definierter direkter Blick auf das Meer, das 180 Meter entfernt ist, sind einige der Merkmale unseres Projekts.
Ljubljeva ist:
- 3 km von der Bucht von Stari Trogir, einem langen Sandstrand, dem reichen archäologischen Kulturerbe aus der Römerzeit
- 4 km von Vinisce (Geschäfte, Bars, Restaurants ...)
- 6 km von der Marina (Apotheke, Arzt, Feuerwehr, Geschäfte, Bars)
- 18 km von Trogir, UNESCO-Stadt
- 24 km vom Flughafen Split (SPU)
- 40 km von der Stadt Split
- 50 km von Sibenik
- 60 km vom Nationalpark Krka
- 130 km von Zadar und dem Flughafen Zadar (ZAD)
Unser Projekt Vinisce Resort besteht aus 3 modernen Villen mit Dachterrasse, jede mit Swimmingpool und 2 Parkplätzen.
Unser Ziel ist es, ein perfektes Urlaubsdomizil zu bauen, das mit der Natur und der Umgebung, in der es sich befindet, korreliert. Die Villen werden voll klimatisiert sein und es wird Fußbodenheizung in Küche, Wohnzimmer und Badezimmern geben.
Umgeben von Steinmauern und mediterranen Bäumen, Whirlpool auf der Dachterrasse, herrlicher Aussicht vom Infinity-Pool und Sommerbrise – das alles sorgt für unvergessliche Familienerinnerungen im Urlaub an der Adriaküste.
In der Nähe gibt es viele Strände und interessante Orte, wie den antiken Hafen von Stari Trogir, eine archäologische Stätte.
Der erste Strand liegt 180 Meter von der Villa entfernt, ein kleiner Kieselstrand und Sie sind von Felsstränden umgeben. Und 300 Meter entfernt liegt ein großer Kieselstrand.
Die Bucht von Ljubljeva ist Ihr ruhiger Hafen.
Nach jahrelanger Suche nach dem idealen Grundstück für unser Projekt haben wir den idealen Ort gefunden, ein echtes verstecktes Juwel, weit weg vom Stress und der Hektik des modernen Lebens, aber dennoch so nah am modernen Leben.
Der ideale Ort, um Ihren Urlaub zu beginnen, die Schönheiten und die Natur Kroatiens kennenzulernen, die angenehme und malerische Bucht von Ljubljeva.
Unser Grundstück liegt auf einem Hügel, direkt an der Straße, die zum Meer und Strand führt.
Meer und Strand sind nur 180 Meter entfernt.
Und der Blick von unserem Grundstück ist ein für immer definierter Blick auf das Meer und die nahe gelegenen Inseln...
Die Idee und Vision unseres Projekts ist die Ausrichtung auf das Meer und die Sonne, mit einer ruhigen Lage, wo Sie immer noch das Zwitschern der Vögel hören und Ihren Jahresurlaub mit Ihren Kindern unbeschwert genießen können.
Südausrichtung, ganztägige Sonne und ein definierter direkter Blick auf das Meer, das 180 Meter entfernt ist, sind einige der Merkmale unseres Projekts.
Ljubljeva ist:
- 3 km von der Bucht von Stari Trogir, einem langen Sandstrand, dem reichen archäologischen Kulturerbe aus der Römerzeit
- 4 km von Vinisce (Geschäfte, Bars, Restaurants ...)
- 6 km von der Marina (Apotheke, Arzt, Feuerwehr, Geschäfte, Bars)
- 18 km von Trogir, UNESCO-Stadt
- 24 km vom Flughafen Split (SPU)
- 40 km von der Stadt Split
- 50 km von Sibenik
- 60 km vom Nationalpark Krka
- 130 km von Zadar und dem Flughafen Zadar (ZAD)
Unser Projekt Vinisce Resort besteht aus 3 modernen Villen mit Dachterrasse, jede mit Swimmingpool und 2 Parkplätzen.
Unser Ziel ist es, ein perfektes Urlaubsdomizil zu bauen, das mit der Natur und der Umgebung, in der es sich befindet, korreliert. Die Villen werden voll klimatisiert sein und es wird Fußbodenheizung in Küche, Wohnzimmer und Badezimmern geben.
Umgeben von Steinmauern und mediterranen Bäumen, Whirlpool auf der Dachterrasse, herrlicher Aussicht vom Infinity-Pool und Sommerbrise – das alles sorgt für unvergessliche Familienerinnerungen im Urlaub an der Adriaküste.
In der Nähe gibt es viele Strände und interessante Orte, wie den antiken Hafen von Stari Trogir, eine archäologische Stätte.
Der erste Strand liegt 180 Meter von der Villa entfernt, ein kleiner Kieselstrand und Sie sind von Felsstränden umgeben. Und 300 Meter entfernt liegt ein großer Kieselstrand.
Die Bucht von Ljubljeva ist Ihr ruhiger Hafen.
Kontaktanfrage senden
Kontakt
| Telefon | 00385 21 880 317 |
| Mobil | 00 385 197 037 3 |
| Website | nekretnine-larus.com/ |