Moderne Villa am Meer - Villa Nara
1.254.500 €
Kaufpreis
416 m²
Wohnfläche
4
Zimmer
immobilien.de Nr.: 8642902
Objektnummer: RSVBAM030
Kaufpreis
| Kaufpreis | 1.254.500 € |
| Maklerprovision | **Für Sie als Käufer Provisonsfrei** |
Wohnfläche, Grundstück & Bausubstanz
| Wohnfläche | 416 m² |
| Grundstücksfläche | 956 m² |
| Zimmer | 4 |
| Baujahr | 2022 |
| Verfügbar ab | sofort |
| Zustand | Erstbezug |
Energie
| Heizungsart | Fußbodenheizung |
| Energieträger/Befeuerung | Luft-Wärme-Pumpe |
Beschreibung der Immobilie
ENERGIEAUSWEIS
Der Energieausweis liegt seitens des Anbieters noch nicht vor.
---------------
Magnolias Design ist ein etabliertes Gebiet für den Bau von individuell gestalteten Villen in der Urbanisation Cumbre del Sol. Es ist nach Südosten ausgerichtet und bietet exklusive Ausblicke auf das Meer und die Insel Ibiza.
Auf den Grundstücken, die Magnolias Design zum Verkauf anbietet, wurden verschiedene Modelle moderner Villen mit einer klaren und eleganten Architektur errichtet. Bei der Raumaufteilung wurde darauf geachtet, dass der Meerblick und das mediterrane Licht ins Haus einfallen können. Die Villen verfügen über offene Wohnbereiche, in denen die Küche durch eine große Kochinsel mit dem Wohn-/Essbereich verbunden ist, der wiederum durch Glasschiebetüren mit der Veranda und der Terrasse verbunden ist.
Alle Modelle verfügen im Erdgeschoss über drei Schlafzimmer und zwei Bäder. Einige bieten durch einen offenen Raum mit eigener Veranda im Erdgeschoss die Möglichkeit, die Villa auf Wunsch auf vier Schlafzimmer zu erweitern. Alle Villen verfügen über einen Garten und einen überdachten Parkplatz.
Ein Projekt, das moderne Architektur mit höchster Bauqualität verbindet und eine einzigartige Wohnmöglichkeit in Cumbre del Sol bietet.
Der Energieausweis liegt seitens des Anbieters noch nicht vor.
---------------
Magnolias Design ist ein etabliertes Gebiet für den Bau von individuell gestalteten Villen in der Urbanisation Cumbre del Sol. Es ist nach Südosten ausgerichtet und bietet exklusive Ausblicke auf das Meer und die Insel Ibiza.
Auf den Grundstücken, die Magnolias Design zum Verkauf anbietet, wurden verschiedene Modelle moderner Villen mit einer klaren und eleganten Architektur errichtet. Bei der Raumaufteilung wurde darauf geachtet, dass der Meerblick und das mediterrane Licht ins Haus einfallen können. Die Villen verfügen über offene Wohnbereiche, in denen die Küche durch eine große Kochinsel mit dem Wohn-/Essbereich verbunden ist, der wiederum durch Glasschiebetüren mit der Veranda und der Terrasse verbunden ist.
Alle Modelle verfügen im Erdgeschoss über drei Schlafzimmer und zwei Bäder. Einige bieten durch einen offenen Raum mit eigener Veranda im Erdgeschoss die Möglichkeit, die Villa auf Wunsch auf vier Schlafzimmer zu erweitern. Alle Villen verfügen über einen Garten und einen überdachten Parkplatz.
Ein Projekt, das moderne Architektur mit höchster Bauqualität verbindet und eine einzigartige Wohnmöglichkeit in Cumbre del Sol bietet.
Ausstattungsmerkmale
| Anzahl der Etagen im Haus | 2 |
| Küche | Einbauküche |
| Bad | 3 |
| Bad | Dusche, Wanne, Fenster |
| Boden | Stein |
| Terrassen | 1 |
| Carport | 1 |
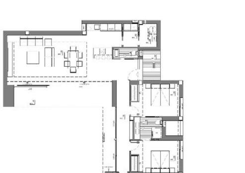
Das Haus besticht durch klare Linien und verschmilzt Innen- und Außenbereich zu offenen, hellen und funktionalen Räumen. Das Wohnzimmer öffnet sich zur Terrasse und bietet Ihnen die Möglichkeit, das wunderbare mediterrane Klima mit seinen fast 300 Sonnentagen im Jahr zu genießen.
Die in offenen L-förmigen Modulen konzipierte Villa umschließt den Hauptgarten, in dem sich ein beeindruckender Infinity-Pool mit dem Meer verbindet. Ein nach außen offener Raum, der Ihnen den Genuss der Sonne und des mediterranen Klimas ermöglicht, gleichzeitig aber auch ein Maximum an Privatsphäre bietet.
Die Villa erstreckt sich über zwei Etagen. Im Obergeschoss befinden sich der Schlafbereich mit zwei Schlafzimmern und einem gemeinsamen Bad sowie die Master-Suite mit eigenem Bad und Ankleidezimmer. Die Zimmer bieten Ihnen einen atemberaubenden Blick auf das Meer und die Berge. Hier können Sie sich vom Alltagsstress erholen und neue Kraft tanken.
Im Erdgeschoss befindet sich der offene Wohnbereich, der eine Verbindung zur Umgebung schafft.
Der Wohnbereich umfasst eine Eingangshalle, eine Gästetoilette sowie ein Tandem aus einem großzügigen Wohn- und Esszimmer und einer Küche, die nahtlos ineinander übergehen. Beide Bereiche sind im Außenbereich miteinander verbunden, wobei die Terrasse und der Swimmingpool als Verbindungspunkt dienen.
Die Villa Nara besticht durch ihren zeitgenössischen Stil, der in perfekter Harmonie mit der mediterranen Tradition steht. Sie lädt zum Entspannen und Genießen ein. Der zentrale Garten mit seiner mediterranen Vegetation und den aromatischen Pflanzen bietet Ihnen die Möglichkeit, mit der Natur in Verbindung zu treten.
Die Villa Nara ist eine exklusive Immobilie, die Ihnen ein Leben in vollen Zügen und unvergessliche Erinnerungen in einer traumhaften Umgebung ermöglicht. Die Villa lädt Sie ein, von einem luxuriösen, komfortablen und ästhetischen Lebensstil zu träumen, in einem Raum, in dem Architektur und Natur zu einer perfekten Symbiose verschmelzen.
Die in offenen L-förmigen Modulen konzipierte Villa umschließt den Hauptgarten, in dem sich ein beeindruckender Infinity-Pool mit dem Meer verbindet. Ein nach außen offener Raum, der Ihnen den Genuss der Sonne und des mediterranen Klimas ermöglicht, gleichzeitig aber auch ein Maximum an Privatsphäre bietet.
Die Villa erstreckt sich über zwei Etagen. Im Obergeschoss befinden sich der Schlafbereich mit zwei Schlafzimmern und einem gemeinsamen Bad sowie die Master-Suite mit eigenem Bad und Ankleidezimmer. Die Zimmer bieten Ihnen einen atemberaubenden Blick auf das Meer und die Berge. Hier können Sie sich vom Alltagsstress erholen und neue Kraft tanken.
Im Erdgeschoss befindet sich der offene Wohnbereich, der eine Verbindung zur Umgebung schafft.
Der Wohnbereich umfasst eine Eingangshalle, eine Gästetoilette sowie ein Tandem aus einem großzügigen Wohn- und Esszimmer und einer Küche, die nahtlos ineinander übergehen. Beide Bereiche sind im Außenbereich miteinander verbunden, wobei die Terrasse und der Swimmingpool als Verbindungspunkt dienen.
Die Villa Nara besticht durch ihren zeitgenössischen Stil, der in perfekter Harmonie mit der mediterranen Tradition steht. Sie lädt zum Entspannen und Genießen ein. Der zentrale Garten mit seiner mediterranen Vegetation und den aromatischen Pflanzen bietet Ihnen die Möglichkeit, mit der Natur in Verbindung zu treten.
Die Villa Nara ist eine exklusive Immobilie, die Ihnen ein Leben in vollen Zügen und unvergessliche Erinnerungen in einer traumhaften Umgebung ermöglicht. Die Villa lädt Sie ein, von einem luxuriösen, komfortablen und ästhetischen Lebensstil zu träumen, in einem Raum, in dem Architektur und Natur zu einer perfekten Symbiose verschmelzen.
Sonstige Informationen
Von Schlapp Immobilien – Denn wir vermitteln Ihnen Zufriedenheit
Nutzen Sie die Kontaktmöglichkeit über dieses Exposé und vereinbaren unverbindlich einen Besichtigungstermin. Ich werde mich umgehend mit Ihnen zwecks Terminabstimmung in Verbindung setzen.
Ihr Ansprechpartner für dieses Objekt:
Ralf Schlapp
Tel.: +49 (0)6502 – 93 56 658
Tel.: +34 641 - 06 6 604
www.schlapp-immobilien.de
www.verkehrswert-ermitteln.de
www.facebook.com/von.schlapp.immobilien
www.twitter.com/von_schlapp
Hinweis zum Exposé Inhalt:
Unser Exposé basiert auf Angaben unserer Auftraggeber. Für die Richtigkeit, Vollständigkeit sowie die Aktualität der im Exposé befindlichen Angaben können wir daher nicht garantieren. Die im Exposé angegebenen Flächenangaben beruhen ebenfalls auf Angaben unserer Auftraggeber und sind unverbindlich.
Beim Kauf älterer Bestandsimmobilien erweist sich die Hinzuziehung eines Fachmannes / eines Sachverständigen vor Vertragsabschluss als ratsam, da offene und versteckte Mängel, die auch dem Verkäufer oftmals nicht bekannt sind, zu erheblichen finanziellen Mehraufwand nach Kauf führen können.
Wir empfehlen Ihnen daher als Käufer vor Erwerb einer älteren Immobilie einen unabhängigen Gutachter in Anspruch zu nehmen!
Kostenfrei Verkehrswert Ihrer Immobilie ermitteln unter http://www.verkehrswert-ermitteln.de
Nutzen Sie die Kontaktmöglichkeit über dieses Exposé und vereinbaren unverbindlich einen Besichtigungstermin. Ich werde mich umgehend mit Ihnen zwecks Terminabstimmung in Verbindung setzen.
Ihr Ansprechpartner für dieses Objekt:
Ralf Schlapp
Tel.: +49 (0)6502 – 93 56 658
Tel.: +34 641 - 06 6 604
www.schlapp-immobilien.de
www.verkehrswert-ermitteln.de
www.facebook.com/von.schlapp.immobilien
www.twitter.com/von_schlapp
Hinweis zum Exposé Inhalt:
Unser Exposé basiert auf Angaben unserer Auftraggeber. Für die Richtigkeit, Vollständigkeit sowie die Aktualität der im Exposé befindlichen Angaben können wir daher nicht garantieren. Die im Exposé angegebenen Flächenangaben beruhen ebenfalls auf Angaben unserer Auftraggeber und sind unverbindlich.
Beim Kauf älterer Bestandsimmobilien erweist sich die Hinzuziehung eines Fachmannes / eines Sachverständigen vor Vertragsabschluss als ratsam, da offene und versteckte Mängel, die auch dem Verkäufer oftmals nicht bekannt sind, zu erheblichen finanziellen Mehraufwand nach Kauf führen können.
Wir empfehlen Ihnen daher als Käufer vor Erwerb einer älteren Immobilie einen unabhängigen Gutachter in Anspruch zu nehmen!
Kostenfrei Verkehrswert Ihrer Immobilie ermitteln unter http://www.verkehrswert-ermitteln.de
Karte wird geladen...
Objektstandort
03726 Alicante
- Alicante
Lage & Infrastruktur
Objektstandort
03726 Alicante
- Alicante
Magnolias Design, eine exklusive Wohnanlage in der Urbanisation Cumbre del Sol in Benitachell zwischen Jávea und Moraira an der nördlichen Costa Blanca. Umgeben von einzigartiger Natur, geschützt durch den Puig de la Llorença und den nahegelegenen Naturpark Granadella mit Wanderwegen durch die mediterrane Vegetation. An der Küste befinden sich paradiesische Buchten, unter denen die Cala del Moraig mit ihrem kristallklaren Wasser und ihrer einzigartigen Unterwasserwelt besonders hervorzuheben ist. Im gleichen Wohnviertel befinden sich die internationale Schule The Lady Elizabeth School, das Restaurant La Cumbre, der Sportclub Cumbre del Sol und nicht weit entfernt Michelin-Restaurants, Golfclubs, Jachtclubs und alle Annehmlichkeiten, um hier das ganze Jahr über zu leben und zu genießen.
Kontaktanfrage senden
Über den Anbieter
von Schlapp Immobilien - Nadia Schlapp
Schimmelhof 1
54338 Schweich
Kontakt
| Telefon | 06502-93 56 658 |
| Fax | 03222-37 25 298 |
| Website | www.schlapp-immobilien.de |
Ansprechpartner/in
Herr Ralf Schlapp