ZADAR, SUKOŠAN - S5 - Zweizimmerwohnung mit Dachterrasse
355.000 €
Kaufpreis
3
Zimmer
immobilien.de Nr.: 8634230
Objektnummer: 29691
Kaufpreis
| Kaufpreis | 355.000 € |
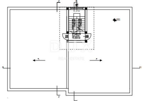
Wohnfläche, Grundstück & Bausubstanz
| Gesamtfläche | 87 m² |
| Zimmer | 3 |
| Verfügbar ab | keine Angabe |
Beschreibung der Immobilie
ZADAR, SUKOŠAN - S5 - 2-Zimmer-Wohnung mit Dachterrasse
Luxuswohnung in einem Neubau in Sukošan: Ihre sonnige Oase nahe Zadar
Nutzen Sie die Gelegenheit und werden Sie Eigentümer einer eleganten Wohnung im schönen Sukošan, unweit des lebhaften Zadar. Wir präsentieren Ihnen diesen luxuriösen Neubau, der Komfort, Stil und einen attraktiven Preis für Schnellentschlossene bietet!
Grundlegende Informationen zur Wohnung:
Lage: Sukošan, nahe Zadar
Ausstattung: 2 Schlafzimmer, Wohnzimmer mit Küche und Essbereich, zwei Badezimmer, Loggia, Dachterrasse, Abstellraum
Zustand: Die Wohnungen befinden sich noch im Bau. Daher besteht die Möglichkeit eines Vorzugspreises beim Kauf vor Fertigstellung.
Ruhe und Komfort in Sukošan: In einem ruhigen Teil von Sukošan gelegen, bietet diese Wohnung die perfekte Balance zwischen entspannender Atmosphäre und der Nähe zu allen wichtigen Annehmlichkeiten. Genießen Sie die Ruhe und den Frieden Ihres neuen Zuhauses, während alles, was Sie brauchen, in unmittelbarer Nähe ist.
Vorteile des Kaufs vor Fertigstellung:
Wenn Sie eine Wohnung vor Baubeginn erwerben, haben Sie die Möglichkeit, einen besseren Preis zu erzielen und die Innenausstattung nach Ihren Wünschen und Bedürfnissen zu gestalten. Nutzen Sie diese einmalige Gelegenheit und schaffen Sie sich Ihr Traumzuhause.
Nähe zu Zadar:
Sukošan liegt unweit der wunderschönen Stadt Zadar, die mit ihrer reichen Geschichte, Kultur und traumhaften Stränden lockt. Schlendern Sie durch die Altstadt, entdecken Sie die Sehenswürdigkeiten und genießen Sie die vielfältige dalmatinische Küche.
Verpassen Sie nicht diese Chance:
Jetzt ist der ideale Zeitpunkt, diese seltene Gelegenheit zu nutzen und sich Ihr neues Zuhause in Sukošan zu einem besseren Preis zu sichern. Kontaktieren Sie uns noch heute, um mehr zu erfahren und einen Besichtigungstermin zu vereinbaren!
Entdecken Sie Komfort und Luxus im Herzen von Sukošan – willkommen in Ihrem neuen Zuhause!
Die Immobilie ist umsatzsteuerpflichtig (juristische Person), der Käufer zahlt keine Grundsteuer.
Die voraussichtliche Fertigstellung ist Sommer 2026.
Sehr geehrte Kunden, die Vermittlungsprovision wird gemäß den Allgemeinen Geschäftsbedingungen berechnet.
www.dux-nekretnine.hr/opci-uvjeti-poslovanja
ID CODE: 29691
Luxuswohnung in einem Neubau in Sukošan: Ihre sonnige Oase nahe Zadar
Nutzen Sie die Gelegenheit und werden Sie Eigentümer einer eleganten Wohnung im schönen Sukošan, unweit des lebhaften Zadar. Wir präsentieren Ihnen diesen luxuriösen Neubau, der Komfort, Stil und einen attraktiven Preis für Schnellentschlossene bietet!
Grundlegende Informationen zur Wohnung:
Lage: Sukošan, nahe Zadar
Ausstattung: 2 Schlafzimmer, Wohnzimmer mit Küche und Essbereich, zwei Badezimmer, Loggia, Dachterrasse, Abstellraum
Zustand: Die Wohnungen befinden sich noch im Bau. Daher besteht die Möglichkeit eines Vorzugspreises beim Kauf vor Fertigstellung.
Ruhe und Komfort in Sukošan: In einem ruhigen Teil von Sukošan gelegen, bietet diese Wohnung die perfekte Balance zwischen entspannender Atmosphäre und der Nähe zu allen wichtigen Annehmlichkeiten. Genießen Sie die Ruhe und den Frieden Ihres neuen Zuhauses, während alles, was Sie brauchen, in unmittelbarer Nähe ist.
Vorteile des Kaufs vor Fertigstellung:
Wenn Sie eine Wohnung vor Baubeginn erwerben, haben Sie die Möglichkeit, einen besseren Preis zu erzielen und die Innenausstattung nach Ihren Wünschen und Bedürfnissen zu gestalten. Nutzen Sie diese einmalige Gelegenheit und schaffen Sie sich Ihr Traumzuhause.
Nähe zu Zadar:
Sukošan liegt unweit der wunderschönen Stadt Zadar, die mit ihrer reichen Geschichte, Kultur und traumhaften Stränden lockt. Schlendern Sie durch die Altstadt, entdecken Sie die Sehenswürdigkeiten und genießen Sie die vielfältige dalmatinische Küche.
Verpassen Sie nicht diese Chance:
Jetzt ist der ideale Zeitpunkt, diese seltene Gelegenheit zu nutzen und sich Ihr neues Zuhause in Sukošan zu einem besseren Preis zu sichern. Kontaktieren Sie uns noch heute, um mehr zu erfahren und einen Besichtigungstermin zu vereinbaren!
Entdecken Sie Komfort und Luxus im Herzen von Sukošan – willkommen in Ihrem neuen Zuhause!
Die Immobilie ist umsatzsteuerpflichtig (juristische Person), der Käufer zahlt keine Grundsteuer.
Die voraussichtliche Fertigstellung ist Sommer 2026.
Sehr geehrte Kunden, die Vermittlungsprovision wird gemäß den Allgemeinen Geschäftsbedingungen berechnet.
www.dux-nekretnine.hr/opci-uvjeti-poslovanja
ID CODE: 29691
Ausstattungsmerkmale
| Anzahl der Etagen im Haus | 0 |
| Inserat befindet sich im Stockwerk | 2 |
| Bad | 2 |
Karte wird geladen...
Objektstandort
23206 Sukošan
- Dalmatien-Zadar (Region) [Zadarska]
Kontaktanfrage senden
Über den Anbieter
DUX Nekretnine d.o.o.
Tizianova
51000 Rijeka
Kontakt
| Telefon | +385 91 480 8808 |
| Mobil | +385 91 480 8808 |
Ansprechpartner/in
Danijela Majdandžić