ZADAR, PRIVLAKA - Neubau! Schöne Wohnung im Erdgeschoss in Sabunike mit Garten und Terrasse! SJ1
231.159 €
Kaufpreis
3
Zimmer
immobilien.de Nr.: 8626196
Objektnummer: 30761
Kaufpreis
| Kaufpreis | 231.159 € |
Wohnfläche, Grundstück & Bausubstanz
| Gesamtfläche | 79 m² |
| Zimmer | 3 |
| Baujahr | 2025 |
| Verfügbar ab | keine Angabe |
Beschreibung der Immobilie
ZADAR, PRIVLAKA – Neubau! Schöne Wohnung im Erdgeschoss in Sabunike mit Garten und Terrasse! SJ1
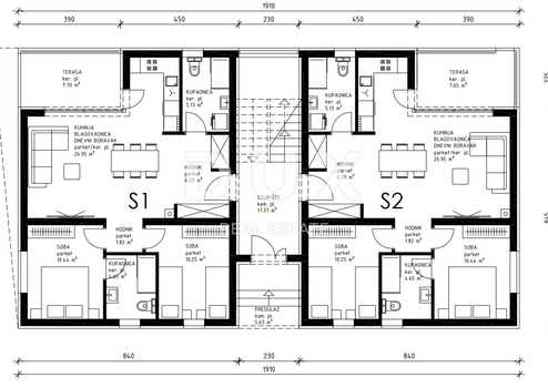
Eine schöne Wohnung zum Verkauf in Sabunike, Privlaka, befindet sich im Erdgeschoss eines Wohngebäudes in unmittelbarer Nähe des Meeres. Diese Wohnung ist ideal für diejenigen, die eine ruhige Umgebung und den Komfort des modernen Lebens suchen. Die Wohnung erstreckt sich über eine Fläche von 79,71 m2, verfügt über zwei Schlafzimmer und zwei Badezimmer und bietet alles, was Sie für einen angenehmen Aufenthalt benötigen. Mit Fußbodenheizung und Klimaanlage wird das ganze Jahr über für eine optimale Temperatur gesorgt. Ein Parkplatz sorgt für Komfort und Sicherheit für Ihr Fahrzeug. Der weitläufige Garten von 87,50 m2 bietet ausreichend Platz zum Entspannen und Genießen der frischen Luft, während die Terrasse von 7,79 m2 den perfekten Ort für den Morgenkaffee oder das gesellige Beisammensein am Abend bietet. Die Fertigstellung der Bauarbeiten ist für Weihnachten geplant, so dass Sie sich bereits im Winter an Ihrem neuen Zuhause erfreuen können. Lassen Sie sich diese einmalige Gelegenheit nicht entgehen, an einem idealen Ort zu wohnen, der die Nähe zum Meer, eine ruhige Umgebung und moderne Ausstattung vereint. Kontaktieren Sie uns für weitere Informationen und vereinbaren Sie einen Besichtigungstermin!
Sehr geehrte Kunden, die Vermittlungsprovision wird gemäß den Allgemeinen Geschäftsbedingungen berechnet. www.dux-nekretnine.hr/opci-uvjeti-poslovanja
ID CODE: 30761
Eine schöne Wohnung zum Verkauf in Sabunike, Privlaka, befindet sich im Erdgeschoss eines Wohngebäudes in unmittelbarer Nähe des Meeres. Diese Wohnung ist ideal für diejenigen, die eine ruhige Umgebung und den Komfort des modernen Lebens suchen. Die Wohnung erstreckt sich über eine Fläche von 79,71 m2, verfügt über zwei Schlafzimmer und zwei Badezimmer und bietet alles, was Sie für einen angenehmen Aufenthalt benötigen. Mit Fußbodenheizung und Klimaanlage wird das ganze Jahr über für eine optimale Temperatur gesorgt. Ein Parkplatz sorgt für Komfort und Sicherheit für Ihr Fahrzeug. Der weitläufige Garten von 87,50 m2 bietet ausreichend Platz zum Entspannen und Genießen der frischen Luft, während die Terrasse von 7,79 m2 den perfekten Ort für den Morgenkaffee oder das gesellige Beisammensein am Abend bietet. Die Fertigstellung der Bauarbeiten ist für Weihnachten geplant, so dass Sie sich bereits im Winter an Ihrem neuen Zuhause erfreuen können. Lassen Sie sich diese einmalige Gelegenheit nicht entgehen, an einem idealen Ort zu wohnen, der die Nähe zum Meer, eine ruhige Umgebung und moderne Ausstattung vereint. Kontaktieren Sie uns für weitere Informationen und vereinbaren Sie einen Besichtigungstermin!
Sehr geehrte Kunden, die Vermittlungsprovision wird gemäß den Allgemeinen Geschäftsbedingungen berechnet. www.dux-nekretnine.hr/opci-uvjeti-poslovanja
ID CODE: 30761
Ausstattungsmerkmale
| Anzahl der Etagen im Haus | 2 |
| Bad | 2 |
Karte wird geladen...
Objektstandort
Privlaka
- Dalmatien-Zadar (Region) [Zadarska]
Kontaktanfrage senden
Über den Anbieter
DUX Nekretnine d.o.o.
Tizianova
51000 Rijeka
Kontakt
| Telefon | +385 91 480 8808 |
| Mobil | +385 91 480 8808 |
Ansprechpartner/in
Josip Šestan