Malinska-Barušići, Grundstück mit Baugenehmigung!
195.000 €
Kaufpreis
immobilien.de Nr.: 8590203
Objektnummer: 4299
Preise & Kosten
| Kaufpreis | 195.000 € |
| Nebenkosten | keine Angabe |
Größe & Zustand
| Gesamtfläche | 500 m² |
| Verfügbar ab | keine Angabe |
Objektbeschreibung
NUR IN UNSEREM ANGEBOT!
Malinska- Barušići, Verkauf von Bauland mit Hauptprojekt und gültiger Baugenehmigung!
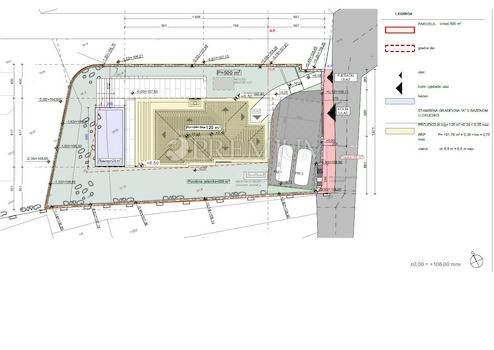
Auf einem Grundstück von 500m2 ist der Bau einer attraktiven Villa mit Pool geplant. Die Villa, mit einer netto Wohnfläche von 160m2, besteht aus einem Erdgeschoss und einem ersten Stock. Im Erdgeschoss (89,57m2) befinden sich ein Foyer, Waschküche, Abstellraum, Badezimmer, Küche, Esszimmer und Wohnzimmer mit Zugang zu einer überdachten Terrasse (21,29m2 x 0,5 = 10,64m2). Im ersten Stock befinden sich vier Schlafzimmer und 3 Badezimmer. Zwei Schlafzimmer haben Zugang zu einer gemeinsamen Terrasse mit Meerblick.
Auf dem großzügigen Grundstück sind ein Pool (24m2) und ein Sonnenbereich geplant, sowie zwei Parkplätze.
Ruhige Lage, 2500m vom Meer entfernt!
ID CODE: 4299
Malinska- Barušići, Verkauf von Bauland mit Hauptprojekt und gültiger Baugenehmigung!
Auf einem Grundstück von 500m2 ist der Bau einer attraktiven Villa mit Pool geplant. Die Villa, mit einer netto Wohnfläche von 160m2, besteht aus einem Erdgeschoss und einem ersten Stock. Im Erdgeschoss (89,57m2) befinden sich ein Foyer, Waschküche, Abstellraum, Badezimmer, Küche, Esszimmer und Wohnzimmer mit Zugang zu einer überdachten Terrasse (21,29m2 x 0,5 = 10,64m2). Im ersten Stock befinden sich vier Schlafzimmer und 3 Badezimmer. Zwei Schlafzimmer haben Zugang zu einer gemeinsamen Terrasse mit Meerblick.
Auf dem großzügigen Grundstück sind ein Pool (24m2) und ein Sonnenbereich geplant, sowie zwei Parkplätze.
Ruhige Lage, 2500m vom Meer entfernt!
ID CODE: 4299
Ausstattung
| Anzahl der Etagen im Haus | 0 |
