ISTRIEN, BRTONIGLA - Bauland für Investitionen, Blick auf Brtonigla
356.000 €
Kaufpreis
immobilien.de Nr.: 8588378
Objektnummer: 28384
Kaufpreis
| Kaufpreis | 356.000 € |
Wohnfläche, Grundstück & Bausubstanz
| Gesamtfläche | 3.555 m² |
| Verfügbar ab | keine Angabe |
Beschreibung der Immobilie
ISTRIEN, BRTONIGLA - Bauland für Investitionen, Blick auf Brtonigla
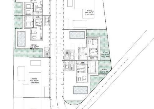
Brtonigla ist eine Gemeinde, die reich an natürlichen Ressourcen ist und stolz auf ihre unberührte Natur ist. Es umfasst die Meeresküste und das grüne Binnenland Istriens. Auf dem Gebiet der Gemeinde herrscht ein mildes, mediterranes Klima, das das ganze Jahr über einen angenehmen Aufenthalt ermöglicht. Der Großteil der aktiven Bevölkerung der Gemeinde ist in der Landwirtschaft tätig, und die wichtigsten Produkte von hoher Qualität sind Wein, Oliven und Olivenöl, Käse, Fisch, Trüffel, Fleisch, istrischer Schinken, Gemüse sowie einzigartige duftende und aromatische Kräuter. Ein weiterer grundlegender Wirtschaftszweig der Gemeinde ist der Tourismus. Es gibt auch den zweitbesten Aquapark Europas. Nur einen Schritt von Brtonigla entfernt steht dieses großzügige Baugrundstück von 3.555 m2 zum Verkauf. Das Grundstück bietet einen Blick auf Brtonigla. Das Grundstück liegt neben einer Asphaltstraße und Strom und Wasser befinden sich im Umkreis von 50 Metern um das Grundstück. Die Kanalisation ist ca. 100 Meter entfernt. Das Grundstück wurde gerodet und hat eine regelmäßige Form, die die Möglichkeit bietet, weitere Gebäude zu unterteilen und zu errichten. Es ist möglich, Gebäude für Wohnzwecke sowie für öffentliche, soziale, wirtschaftliche, sportliche und infrastrukturelle Zwecke zu errichten. Standortinformationen sind verfügbar. Nutzen Sie diese Investitionsmöglichkeit! Sehr geehrte Kunden, die Agenturprovision wird gemäß den Allgemeinen Geschäftsbedingungen berechnet: www.dux-nekretnine.hr/opci-uvjeti-poslovanja
ID CODE: 28384
Brtonigla ist eine Gemeinde, die reich an natürlichen Ressourcen ist und stolz auf ihre unberührte Natur ist. Es umfasst die Meeresküste und das grüne Binnenland Istriens. Auf dem Gebiet der Gemeinde herrscht ein mildes, mediterranes Klima, das das ganze Jahr über einen angenehmen Aufenthalt ermöglicht. Der Großteil der aktiven Bevölkerung der Gemeinde ist in der Landwirtschaft tätig, und die wichtigsten Produkte von hoher Qualität sind Wein, Oliven und Olivenöl, Käse, Fisch, Trüffel, Fleisch, istrischer Schinken, Gemüse sowie einzigartige duftende und aromatische Kräuter. Ein weiterer grundlegender Wirtschaftszweig der Gemeinde ist der Tourismus. Es gibt auch den zweitbesten Aquapark Europas. Nur einen Schritt von Brtonigla entfernt steht dieses großzügige Baugrundstück von 3.555 m2 zum Verkauf. Das Grundstück bietet einen Blick auf Brtonigla. Das Grundstück liegt neben einer Asphaltstraße und Strom und Wasser befinden sich im Umkreis von 50 Metern um das Grundstück. Die Kanalisation ist ca. 100 Meter entfernt. Das Grundstück wurde gerodet und hat eine regelmäßige Form, die die Möglichkeit bietet, weitere Gebäude zu unterteilen und zu errichten. Es ist möglich, Gebäude für Wohnzwecke sowie für öffentliche, soziale, wirtschaftliche, sportliche und infrastrukturelle Zwecke zu errichten. Standortinformationen sind verfügbar. Nutzen Sie diese Investitionsmöglichkeit! Sehr geehrte Kunden, die Agenturprovision wird gemäß den Allgemeinen Geschäftsbedingungen berechnet: www.dux-nekretnine.hr/opci-uvjeti-poslovanja
ID CODE: 28384
Ausstattungsmerkmale
| Anzahl der Etagen im Haus | 0 |
Karte wird geladen...
Objektstandort
52474 Brtonigla
- Istrien
Kontaktanfrage senden
Über den Anbieter
DUX Nekretnine d.o.o.
Tizianova
51000 Rijeka
Kontakt
| Telefon | +385 91 480 8808 |
| Mobil | +385 91 480 8808 |
Ansprechpartner/in
Tina Širol