ISTRIEN, TINJAN – Moderner Neubau im italienischen Stil
550.000 €
Kaufpreis
4
Zimmer
immobilien.de Nr.: 8588047
Objektnummer: 28791
Kaufpreis
| Kaufpreis | 550.000 € |
Wohnfläche, Grundstück & Bausubstanz
| Gesamtfläche | 127 m² |
| Grundstücksfläche | 506 m² |
| Zimmer | 4 |
| Baujahr | 2024 |
| Verfügbar ab | keine Angabe |
Beschreibung der Immobilie
ISTRA TINJAN – Neubau in zeitlosem Stil und Design
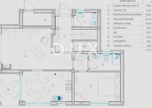
Wir präsentieren stolz das Projekt eines Neubaus in der Nähe der malerischen Stadt Tinjan. Es handelt sich um ein Projekt zum Bau eines privaten Komplexes typischer Villen, der nach dem Vorbild italienischer Villen mit einem Hauch istrischen Baustils gestaltet ist. Die Villen sind eingebettet in eine Umgebung mit herrlicher Natur, einer sanften Hügellandschaft und bewirtschafteten Ackerfeldern. Beim Bau wird eines der modernsten Materialien verwendet, was das Qualitätsniveau bestätigt und maximalen Komfort während des Aufenthalts in jeder Villa bietet. Bei der Ausstattung der Villen kommt eine der modernsten auf dem Markt erhältlichen Techniken zum Einsatz, natürlich handelt es sich dabei um namhafte globale Hersteller. Darüber hinaus legten die Investoren großen Wert auf die Gestaltung des Innenraums der Villen, um sicherzustellen, dass jeder Raum seine vorgesehene Funktion vollständig erfüllt. Alle Villen der Anlage verfügen über die gleiche Grundfläche und Raumaufteilung, lassen ihren zukünftigen Eigentümern aber selbstverständlich Raum, die Immobilie in Zusammenarbeit mit dem Investor an ihre Bedürfnisse und Wünsche anzupassen. OBJEKTBESCHREIBUNG: Diese hochwertige, malerische Villa verfügt über insgesamt 127,66 m² Wohnfläche, die auf zwei Etagen aufgeteilt ist, nämlich; Erdgeschoss (73,73 m2) und erster Stock (53,93 m2). So empfängt uns im Erdgeschoss der Villa eine Eingangshalle, die zum Wohnbereich führt, der als offener Raum ohne Trennwände konzipiert ist. Geplant ist hier ein großes und gemütliches Wohnzimmer mit Holzkamin und einer Glasschiebewand, durch die sich der Zugang und Blick auf den Garten und den Pool erstreckt. Neben dem Wohnzimmer, leicht abgetrennt, befindet sich der Raum für die Küche mit einem geräumigen Esszimmer, von dem aus auch der Ausgang zur überdachten Terrasse durch die Glaswand reicht. Neben dem Wohnzimmer gibt es auch das durch einen kleineren Flur getrennte erste Schlafzimmer, das über ein eigenes Bad und Zugang zum Garten verfügt. Darüber hinaus gibt es im Erdgeschoss der Villa in der oben genannten Lobby ein Gäste-WC sowie eine Treppe, die in die erste Etage der Villa führt, wo sich 2 komfortable und geräumige Schlafzimmer befinden. Jedes Schlafzimmer verfügt über ein eigenes Bad sowie Zugang zu einer Gemeinschaftsterrasse. Am Ende der Bauarbeiten wird der Hof vollständig begrünt und von einer Mauer umgeben sein. Somit haben Sie die Möglichkeit, Ihren Aufenthalt im Freien umgeben von zahlreichen mediterranen Pflanzen und angelegten Grünflächen zu verbringen, die durch ein automatisches Bewässerungssystem versorgt werden. Natürlich wird der zentrale Teil des Gartens von einem komfortablen Swimmingpool mit Elektrolyseanlage (Salzwasser) und einer Liegewiese eingenommen, während Sie sich keine Sorgen um Ihre Blechhaustiere machen müssen, da Parkplätze für bis zu 2 Autos vorhanden sind im Garten der Villa geplant. ZUSÄTZLICHE INFORMATIONEN: * Villen werden schlüsselfertig und ohne Möbel verkauft. * Käufer haben das Recht, Einfluss auf die Konstruktion zu nehmen. * Die Villa wird mit Klimaanlagen in jedem Raum sowie einer elektrischen Fußbodenheizung in allen Räumen ausgestattet sein. * Die Immobilie ist in das Mehrwertsteuersystem einbezogen, was bedeutet, dass für juristische Personen der Preis abzüglich des Steuerbetrags berechnet werden kann. * Das voraussichtliche Ende der Arbeiten ist Mitte 2025. Für weitere Fragen, notwendige Informationen oder den Wunsch, einen Termin zur Besichtigung der Villa zu vereinbaren, können Sie sich gerne vertrauensvoll an uns wenden. Sehr geehrte Kunden, die Agenturprovision wird gemäß den Allgemeinen Geschäftsbedingungen www.dux-nekretnine.hr/opci-uvjeti-poslovanja berechnet
ID CODE: 28791
Wir präsentieren stolz das Projekt eines Neubaus in der Nähe der malerischen Stadt Tinjan. Es handelt sich um ein Projekt zum Bau eines privaten Komplexes typischer Villen, der nach dem Vorbild italienischer Villen mit einem Hauch istrischen Baustils gestaltet ist. Die Villen sind eingebettet in eine Umgebung mit herrlicher Natur, einer sanften Hügellandschaft und bewirtschafteten Ackerfeldern. Beim Bau wird eines der modernsten Materialien verwendet, was das Qualitätsniveau bestätigt und maximalen Komfort während des Aufenthalts in jeder Villa bietet. Bei der Ausstattung der Villen kommt eine der modernsten auf dem Markt erhältlichen Techniken zum Einsatz, natürlich handelt es sich dabei um namhafte globale Hersteller. Darüber hinaus legten die Investoren großen Wert auf die Gestaltung des Innenraums der Villen, um sicherzustellen, dass jeder Raum seine vorgesehene Funktion vollständig erfüllt. Alle Villen der Anlage verfügen über die gleiche Grundfläche und Raumaufteilung, lassen ihren zukünftigen Eigentümern aber selbstverständlich Raum, die Immobilie in Zusammenarbeit mit dem Investor an ihre Bedürfnisse und Wünsche anzupassen. OBJEKTBESCHREIBUNG: Diese hochwertige, malerische Villa verfügt über insgesamt 127,66 m² Wohnfläche, die auf zwei Etagen aufgeteilt ist, nämlich; Erdgeschoss (73,73 m2) und erster Stock (53,93 m2). So empfängt uns im Erdgeschoss der Villa eine Eingangshalle, die zum Wohnbereich führt, der als offener Raum ohne Trennwände konzipiert ist. Geplant ist hier ein großes und gemütliches Wohnzimmer mit Holzkamin und einer Glasschiebewand, durch die sich der Zugang und Blick auf den Garten und den Pool erstreckt. Neben dem Wohnzimmer, leicht abgetrennt, befindet sich der Raum für die Küche mit einem geräumigen Esszimmer, von dem aus auch der Ausgang zur überdachten Terrasse durch die Glaswand reicht. Neben dem Wohnzimmer gibt es auch das durch einen kleineren Flur getrennte erste Schlafzimmer, das über ein eigenes Bad und Zugang zum Garten verfügt. Darüber hinaus gibt es im Erdgeschoss der Villa in der oben genannten Lobby ein Gäste-WC sowie eine Treppe, die in die erste Etage der Villa führt, wo sich 2 komfortable und geräumige Schlafzimmer befinden. Jedes Schlafzimmer verfügt über ein eigenes Bad sowie Zugang zu einer Gemeinschaftsterrasse. Am Ende der Bauarbeiten wird der Hof vollständig begrünt und von einer Mauer umgeben sein. Somit haben Sie die Möglichkeit, Ihren Aufenthalt im Freien umgeben von zahlreichen mediterranen Pflanzen und angelegten Grünflächen zu verbringen, die durch ein automatisches Bewässerungssystem versorgt werden. Natürlich wird der zentrale Teil des Gartens von einem komfortablen Swimmingpool mit Elektrolyseanlage (Salzwasser) und einer Liegewiese eingenommen, während Sie sich keine Sorgen um Ihre Blechhaustiere machen müssen, da Parkplätze für bis zu 2 Autos vorhanden sind im Garten der Villa geplant. ZUSÄTZLICHE INFORMATIONEN: * Villen werden schlüsselfertig und ohne Möbel verkauft. * Käufer haben das Recht, Einfluss auf die Konstruktion zu nehmen. * Die Villa wird mit Klimaanlagen in jedem Raum sowie einer elektrischen Fußbodenheizung in allen Räumen ausgestattet sein. * Die Immobilie ist in das Mehrwertsteuersystem einbezogen, was bedeutet, dass für juristische Personen der Preis abzüglich des Steuerbetrags berechnet werden kann. * Das voraussichtliche Ende der Arbeiten ist Mitte 2025. Für weitere Fragen, notwendige Informationen oder den Wunsch, einen Termin zur Besichtigung der Villa zu vereinbaren, können Sie sich gerne vertrauensvoll an uns wenden. Sehr geehrte Kunden, die Agenturprovision wird gemäß den Allgemeinen Geschäftsbedingungen www.dux-nekretnine.hr/opci-uvjeti-poslovanja berechnet
ID CODE: 28791
Ausstattungsmerkmale
| Anzahl der Etagen im Haus | 2 |
| Bad | 3 |
Karte wird geladen...
Objektstandort
52444 Tinjan
- Istrien
Kontaktanfrage senden
Über den Anbieter
DUX Nekretnine d.o.o.
Tizianova
51000 Rijeka
Kontakt
| Telefon | +385 91 480 8808 |
| Mobil | +385 91 480 8808 |
Ansprechpartner/in
Loren Kečan