LABIN, SVETA MARINA – Baugrundstück 500m2 mit Meerblick und konzeptionellem Projekt
145.000 €
Kaufpreis
immobilien.de Nr.: 8587959
Objektnummer: 28924
Kaufpreis
| Kaufpreis | 145.000 € |
Wohnfläche, Grundstück & Bausubstanz
| Gesamtfläche | 500 m² |
| Verfügbar ab | keine Angabe |
Beschreibung der Immobilie
LABIN, SVETA MARINA - Baugrundstück 500m2 mit Blick auf das Meer und Konzeptprojekt
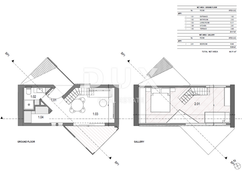
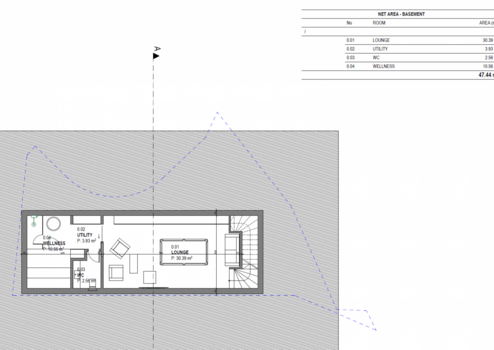
Das Grundstück hat einen Blick auf das Meer und eine südliche Ausrichtung. Das Baugrundstück in der Natur und laut Konzeption besteht aus 2 Teilen: - einem Teil von ca. 500m2, auf dem laut Konzeption ein Gebäude mit 3 Wohnungen geplant ist. Dieser Preis gilt nur für diesen Teil! - ein Teil von ca. 435 m2 mit einem alten Haus, an dem ein Umbau geplant ist - Erweiterung des bestehenden Hauses mit einem konzeptionellen Projekt einer Villa mit Swimmingpool. Dieser Teil kann separat erworben werden, der Preis allein für diesen Teil beträgt 195.000 € . Für diesen Teil von 435 m² müssen weitere 107 m² von der Gemeinde erworben werden, für die eine Kaufmöglichkeit besteht. Dieser Teil hätte dann eine Gesamtfläche von 542 m2, was für die Umsetzung des konzeptionellen Projekts ausreicht. Der Preis für beide Teile zusammen beträgt 310.000 €! Die Geländebeschaffenheit ist leicht abschüssig/völlig flach. Das Feld liegt in einer ruhigen und friedlichen Lage und direkt neben der asphaltierten Straße. Alle Versorgungseinrichtungen vor Ort. Sauberes und ordentliches Anwesen. Das Grundstück ist teilweise geräumt und für den Bau bereit. Das zukünftige Baugrundstück auf diesem Grundstück würde bereits vom Erdgeschoss aus einen Blick auf das Meer haben, aber vom ersten Stock aus hätte man einen offenen Panoramablick auf das Meer. Dieses Anwesen liegt 390 m Luftlinie vom Meer entfernt, bzw. 700 m mit dem Auto (ca. 1 Min.). Eine gute Gelegenheit für Investoren, die sich mit dem Bau von Wohnungen/Häusern zur Miete beschäftigen – Ferien mit Schwimmbad, aber auch für diejenigen, die ein Familienhaus in einer ruhigen, friedlichen Umgebung bauen möchten. IMMOBILIE IN TOLLER UND EINZIGARTIGER LAGE MIT GROSSEM POTENZIAL!!! LABIN Die Stadt Labin wurde auf einem 320 Meter hohen Hügel gegründet – dem Standort der römischen Siedlung Albona, deren Name erstmals im Jahr 285 n. Chr. erwähnt wurde. Früher war dieses Juwel für seine 400 Jahre alte Bergbautätigkeit bekannt, heute ist es eines der kulturellen und administrativen Zentren Istriens. Die charmante Stadt vereint kulturelle und historische Denkmäler und reiche Architektur bei verschiedenen kulturellen Veranstaltungen. Die Altstadt liegt auf dem Hügel, während der andere Teil der Stadt als Podlabin bekannt ist. Der Bereich der Altstadt ist als Stadt der Künstler bekannt, wo es zahlreiche Ateliers gibt, die man bei einem Spaziergang durch die Gassen sehen kann. Darüber hinaus können Sie das Stadtmuseum mit seiner archäologischen und ethnologischen Sammlung besuchen und das einzigartige und unvergessliche Erlebnis des Betretens eines Modellbergwerks erleben. Nur 5 Kilometer von Labin entfernt liegt Rabac – das wichtigste Touristenzentrum an der Ostküste Istriens, am Fuße eines Hügels gelegen, der es schützt und ein angenehmes mediterranes Klima genießt. Es ist mit einer atemberaubenden Umgebung, wunderschönen Kiesstränden und einem Blick auf die Kvarner-Bucht geschmückt. Im Laufe der Zeit entwickelte es sich zu einem bekannten Touristenzentrum mit bis zu 15 Hotels und Apartmentanlagen sowie mehreren Campingplätzen. Wenn Sie einen Blick auf das ungewöhnliche gastronomische Angebot werfen möchten, vergessen Sie nicht, eine Spezialität der Region Labinština zu probieren. Süße gekochte Donuts – süßer Teig mit Käse in Form von Ravioli in einer ungewöhnlichen Kombination mit Gulasch stellen sicherlich ein neues Erlebnis dar. Sehr geehrte Kunden, die Vermittlungsprovision wird gemäß den Allgemeinen Geschäftsbedingungen berechnet: www.dux-nekretnine.hr/opci-uvjeti-poslovanja Sehr geehrte potenzielle Käufer, Mieter und Pächter, wir besichtigen die Immobilie, an der Sie interessiert sind und an der Sie interessiert sind an denen Sie ein Interesse haben, ist nur und ausschließlich mit der Unterzeichnung des Immobilienmaklervertrages möglich, zum Zwecke des Schutzes des Eigentümers der Immobilie vor dem Besuch nicht registrierter Personen und im Einklang mit dem Datenschutzgesetz und dem Immobilienmaklergesetz . Bei der Besichtigung jeder Immobilie ist der potenzielle Käufer/Mieter/Pächter verpflichtet, den Immobilienmaklervertrag auszufüllen und zu unterzeichnen, der Folgendes enthält: - grundlegende Informationen über den potenziellen Käufer/Mieter/Mieter - grundlegende Informationen über die Agentur - den Betrag der Vermittlungsprovision Die Vermittlungsprovision für den Käufer beträgt 3 % (+25 % MwSt.) des gesamten vereinbarten Kaufpreises. Die Vermittlungsprovision für den Mieter beträgt eine Monatsmiete (+ 25 % MwSt.).
ID CODE: 28924
Das Grundstück hat einen Blick auf das Meer und eine südliche Ausrichtung. Das Baugrundstück in der Natur und laut Konzeption besteht aus 2 Teilen: - einem Teil von ca. 500m2, auf dem laut Konzeption ein Gebäude mit 3 Wohnungen geplant ist. Dieser Preis gilt nur für diesen Teil! - ein Teil von ca. 435 m2 mit einem alten Haus, an dem ein Umbau geplant ist - Erweiterung des bestehenden Hauses mit einem konzeptionellen Projekt einer Villa mit Swimmingpool. Dieser Teil kann separat erworben werden, der Preis allein für diesen Teil beträgt 195.000 € . Für diesen Teil von 435 m² müssen weitere 107 m² von der Gemeinde erworben werden, für die eine Kaufmöglichkeit besteht. Dieser Teil hätte dann eine Gesamtfläche von 542 m2, was für die Umsetzung des konzeptionellen Projekts ausreicht. Der Preis für beide Teile zusammen beträgt 310.000 €! Die Geländebeschaffenheit ist leicht abschüssig/völlig flach. Das Feld liegt in einer ruhigen und friedlichen Lage und direkt neben der asphaltierten Straße. Alle Versorgungseinrichtungen vor Ort. Sauberes und ordentliches Anwesen. Das Grundstück ist teilweise geräumt und für den Bau bereit. Das zukünftige Baugrundstück auf diesem Grundstück würde bereits vom Erdgeschoss aus einen Blick auf das Meer haben, aber vom ersten Stock aus hätte man einen offenen Panoramablick auf das Meer. Dieses Anwesen liegt 390 m Luftlinie vom Meer entfernt, bzw. 700 m mit dem Auto (ca. 1 Min.). Eine gute Gelegenheit für Investoren, die sich mit dem Bau von Wohnungen/Häusern zur Miete beschäftigen – Ferien mit Schwimmbad, aber auch für diejenigen, die ein Familienhaus in einer ruhigen, friedlichen Umgebung bauen möchten. IMMOBILIE IN TOLLER UND EINZIGARTIGER LAGE MIT GROSSEM POTENZIAL!!! LABIN Die Stadt Labin wurde auf einem 320 Meter hohen Hügel gegründet – dem Standort der römischen Siedlung Albona, deren Name erstmals im Jahr 285 n. Chr. erwähnt wurde. Früher war dieses Juwel für seine 400 Jahre alte Bergbautätigkeit bekannt, heute ist es eines der kulturellen und administrativen Zentren Istriens. Die charmante Stadt vereint kulturelle und historische Denkmäler und reiche Architektur bei verschiedenen kulturellen Veranstaltungen. Die Altstadt liegt auf dem Hügel, während der andere Teil der Stadt als Podlabin bekannt ist. Der Bereich der Altstadt ist als Stadt der Künstler bekannt, wo es zahlreiche Ateliers gibt, die man bei einem Spaziergang durch die Gassen sehen kann. Darüber hinaus können Sie das Stadtmuseum mit seiner archäologischen und ethnologischen Sammlung besuchen und das einzigartige und unvergessliche Erlebnis des Betretens eines Modellbergwerks erleben. Nur 5 Kilometer von Labin entfernt liegt Rabac – das wichtigste Touristenzentrum an der Ostküste Istriens, am Fuße eines Hügels gelegen, der es schützt und ein angenehmes mediterranes Klima genießt. Es ist mit einer atemberaubenden Umgebung, wunderschönen Kiesstränden und einem Blick auf die Kvarner-Bucht geschmückt. Im Laufe der Zeit entwickelte es sich zu einem bekannten Touristenzentrum mit bis zu 15 Hotels und Apartmentanlagen sowie mehreren Campingplätzen. Wenn Sie einen Blick auf das ungewöhnliche gastronomische Angebot werfen möchten, vergessen Sie nicht, eine Spezialität der Region Labinština zu probieren. Süße gekochte Donuts – süßer Teig mit Käse in Form von Ravioli in einer ungewöhnlichen Kombination mit Gulasch stellen sicherlich ein neues Erlebnis dar. Sehr geehrte Kunden, die Vermittlungsprovision wird gemäß den Allgemeinen Geschäftsbedingungen berechnet: www.dux-nekretnine.hr/opci-uvjeti-poslovanja Sehr geehrte potenzielle Käufer, Mieter und Pächter, wir besichtigen die Immobilie, an der Sie interessiert sind und an der Sie interessiert sind an denen Sie ein Interesse haben, ist nur und ausschließlich mit der Unterzeichnung des Immobilienmaklervertrages möglich, zum Zwecke des Schutzes des Eigentümers der Immobilie vor dem Besuch nicht registrierter Personen und im Einklang mit dem Datenschutzgesetz und dem Immobilienmaklergesetz . Bei der Besichtigung jeder Immobilie ist der potenzielle Käufer/Mieter/Pächter verpflichtet, den Immobilienmaklervertrag auszufüllen und zu unterzeichnen, der Folgendes enthält: - grundlegende Informationen über den potenziellen Käufer/Mieter/Mieter - grundlegende Informationen über die Agentur - den Betrag der Vermittlungsprovision Die Vermittlungsprovision für den Käufer beträgt 3 % (+25 % MwSt.) des gesamten vereinbarten Kaufpreises. Die Vermittlungsprovision für den Mieter beträgt eine Monatsmiete (+ 25 % MwSt.).
ID CODE: 28924
Ausstattungsmerkmale
| Anzahl der Etagen im Haus | 0 |
Karte wird geladen...
Objektstandort
52223 Raša
- Istrien
Kontaktanfrage senden
Über den Anbieter
DUX Nekretnine d.o.o.
Tizianova
51000 Rijeka
Kontakt
| Telefon | +385 91 480 8808 |
| Mobil | +385 91 480 8808 |
Ansprechpartner/in
Patrik Hrštić