"Exklusive Villa in idyllischer Lage mit einem wunderschönen Anwesen eingebettet in ein ruhiges Eck.
1.112.000 €
Kaufpreis
380 m²
Wohnfläche
6
Zimmer
immobilien.de Nr.: 8535538
Objektnummer: FALC-AnKu-40811
Dateien
Preise & Kosten
| Kaufpreis | 1.112.000 € |
| Nebenkosten | keine Angabe |
| Kaufpreis pro m² | 2855,26 € |
| Stellplatz Freiplatz Kaufpreis | 0 € |
Größe & Zustand
| Wohnfläche | 380 m² |
| Grundstücksfläche | 1.100 m² |
| Zimmer | 6 |
| Baujahr | 2013 |
| Verfügbar ab | sofort |
Energie
| Heizungsart | Zentralheizung |
| Wesentlicher Energieträger | Strom |
| Energieträger/Befeuerung | Elektro |
Objektbeschreibung
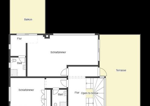
Zum Verkauf steht ein luxuriöses freistehendes Haus in Ozankoy, Kyrenia. Das im Jahr 2013 erbaute Haus wird im Moment umfassend renoviert und wird in einem erstklassigen Zustand übergeben. Mit einer Wohnfläche von ca. 380 m² bietet das Haus auf drei Etagen ausreichend Platz für eine Familie.
Das Haus verfügt über insgesamt sechs Zimmer, darunter vier Schlafzimmer und vier Badezimmer. Die hochwertige Ausstattung und die luxuriöse Bauweise machen dieses Objekt zu einem echten Highlight. Eine moderne Einbauküche, ein Gäste-WC und ein Kamin sorgen für zusätzlichen Komfort.
Die Immobilie ist vollständig klimatisiert und verfügt über eine Terrasse und einen Balkon, die zum Entspannen und Genießen der mediterranen Atmosphäre einladen. Ein Swimmingpool rundet das Angebot ab und bietet an heißen Tagen eine erfrischende Abkühlung.
Das Haus ist ab sofort verfügbar und eignet sich ideal für anspruchsvolle Käufer, die ein exklusives Wohnobjekt in einer attraktiven Lage suchen. Lassen Sie sich diese einmalige Gelegenheit nicht entgehen und vereinbaren Sie noch heute einen Besichtigungstermin.
Das Haus verfügt über insgesamt sechs Zimmer, darunter vier Schlafzimmer und vier Badezimmer. Die hochwertige Ausstattung und die luxuriöse Bauweise machen dieses Objekt zu einem echten Highlight. Eine moderne Einbauküche, ein Gäste-WC und ein Kamin sorgen für zusätzlichen Komfort.
Die Immobilie ist vollständig klimatisiert und verfügt über eine Terrasse und einen Balkon, die zum Entspannen und Genießen der mediterranen Atmosphäre einladen. Ein Swimmingpool rundet das Angebot ab und bietet an heißen Tagen eine erfrischende Abkühlung.
Das Haus ist ab sofort verfügbar und eignet sich ideal für anspruchsvolle Käufer, die ein exklusives Wohnobjekt in einer attraktiven Lage suchen. Lassen Sie sich diese einmalige Gelegenheit nicht entgehen und vereinbaren Sie noch heute einen Besichtigungstermin.
Ausstattung
| Anzahl der Etagen im Haus | 3 |
| Küche | Einbauküche |
| Bad | 4 |
| Balkone | 1 |
- Gäste WC
- Einbauküche
- Kamin
- Klimatisiert
- Terrasse
- Balkon
- Infinitypool
- Unterkellert
- Zentralheizung
- Strom als Befeuerung
- Mediterraner Baustil
- 2 PKW Stellplätze
- Kellergeschoss mit Küche und großem Wohnzimmer
- Weitere Informationen auf Anfrage
- Einbauküche
- Kamin
- Klimatisiert
- Terrasse
- Balkon
- Infinitypool
- Unterkellert
- Zentralheizung
- Strom als Befeuerung
- Mediterraner Baustil
- 2 PKW Stellplätze
- Kellergeschoss mit Küche und großem Wohnzimmer
- Weitere Informationen auf Anfrage
Sonstige Informationen
Bitte beachten Sie, dass kein Energieausweis vorhanden ist, da es keine Pflicht zur Erstellung gibt. Die genaue Lage und weitere Details zur Immobilie können Sie gerne bei uns erfragen. Wir stehen Ihnen jederzeit gerne zur Verfügung und freuen uns auf Ihre Anfrage. Die Objektbeschreibung beruht ganz oder zum Teil auf Angaben des Eigentümers. Für die Richtigkeit oder Vollständigkeit übernehmen wir keine Gewähr.
Lage des Objektes
Das freistehende Haus befindet sich in der charmanten Stadt Ozankoy auf Zypern. Die Immobilie mit der Hausnummer 2 liegt in einer ruhigen Wohngegend und ist ideal für Familien geeignet.
Die Lage des Hauses zeichnet sich durch ihre Nähe zum Stadtzentrum aus, das nur 1 Kilometer entfernt ist. Hier finden Sie eine Vielzahl von Einkaufsmöglichkeiten, Restaurants und Unterhaltungsmöglichkeiten.
Auch die Autobahn ist nur 2,5 Kilometer entfernt, was eine gute Anbindung an die umliegenden Städte und Regionen bietet.
Für Familien mit kleinen Kindern ist die Nähe zum Kindergarten und zur Grundschule von Vorteil. Der Kindergarten ist nur 0,8 Kilometer entfernt und die Grundschule befindet sich in einer Entfernung von 1 Kilometer.
Die Lage des Hauses kombiniert die Vorzüge einer ruhigen Wohngegend mit der Nähe zu allen wichtigen Einrichtungen und Verkehrsanbindungen.
Die Lage des Hauses zeichnet sich durch ihre Nähe zum Stadtzentrum aus, das nur 1 Kilometer entfernt ist. Hier finden Sie eine Vielzahl von Einkaufsmöglichkeiten, Restaurants und Unterhaltungsmöglichkeiten.
Auch die Autobahn ist nur 2,5 Kilometer entfernt, was eine gute Anbindung an die umliegenden Städte und Regionen bietet.
Für Familien mit kleinen Kindern ist die Nähe zum Kindergarten und zur Grundschule von Vorteil. Der Kindergarten ist nur 0,8 Kilometer entfernt und die Grundschule befindet sich in einer Entfernung von 1 Kilometer.
Die Lage des Hauses kombiniert die Vorzüge einer ruhigen Wohngegend mit der Nähe zu allen wichtigen Einrichtungen und Verkehrsanbindungen.
Anbieter kontaktieren
Anbieter
FALC Immobilien GmbH & Co. KG
Humperdickstr. 3
53773 Hennef (Sieg)
Kontakt
| Telefon | +49 2242 9010344 |
| Mobil | +49 176 73581579 |
| Fax | +49 2242 9010319 |
| Website | www.falcimmo.de |
