IHR UNGARN EXPERTE verkauft ein schönes 3-stöckiges Mehrgenerationenhaus, Panoramablick in Alsópáhok

200.000 €
Kaufpreis
300 m²
Wohnfläche
8
Zimmer
immobilien.de Nr.: 8528358 Objektnummer: 15213#suwskN
Vorderansicht
Rückseite
Zugang zum Hasu
Ausblick
Ansichtvon Rückseite
einmaliger Fernblick
Ansicht vom Grundstück
Blick auf das Grundstück
Wohnzimmer mit Holzbalkendecke
Blick vom Wohnzimmer zum Schlafzimmer
ger#umiges Schlafzimmer
IMG_20220719_115255_copy_2304x1728
IMG_20220719_122320_copy_2304x1728
Wohnraum im Obergeschoss
Bad mit Dusche
Gäste-Toilette
Bad im Obergeschoss
Ansciht von Straßenseite
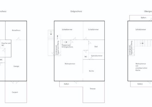
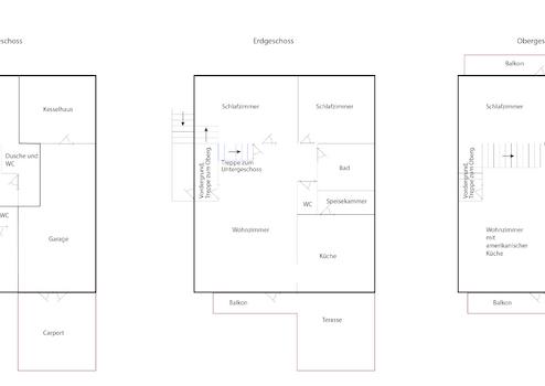
alaprajz2-01_copy_2697x1229
Grundrisse

Kaufpreis

Kaufpreis 200.000 €

Wohnfläche, Grundstück & Bausubstanz

Wohnfläche 300 m²
Grundstücksfläche 600 m²
Zimmer 8
Baujahr 2000
Verfügbar ab keine Angabe
Zustand Voll Saniert

Energie

Baujahr (laut Energieausweis) 2000

Beschreibung der Immobilie

Beschreibung
IHR UNGARN EXPERTE verkauft schönes Panorama 120 m2, 3-stöckiges Mehrgenerationenhaus

Jede Ebene hat einen separaten Eingang. Auf der mittleren Ebene gibt es 2 Schlafzimmer, großes Wohnzimmer, Küche, Bad, WC, Terrasse. Auf der oberen Etage gibt es 2 Schlafzimmer, Wohnzimmer mit amerikanischer Küche, 2 Bäder mit WC, Terrassen. Die untere Ebene ist halb unterkellert mit einem 1-Zimmer-Wohnung mit Bad mit Küche, Garage und Werkstatt.
Das Haus wurde in den letzten Jahren mehreren technischen Renovierungen unterzogen. Die Wasser- und Stromleitungen wurden erneuert, eine neue Heizungsanlage, neue Fenster und ein neues Dach. Ästhetische Renovierungen wurden im mittleren Stockwerk und in einem der Bäder im Obergeschoss durchgeführt. Das Obergeschoss bedarf einer ästhetischen Renovierung. Seit vielen Jahren wird hier eine Schreinerei betrieben, die ein regelmäßiges Einkommen erwirtschaftet.
Die Heizung ist zentral, wahlweise mit Gas- oder Holzkessel, und es gibt auch einen Kamin im mittleren Stockwerk.
Der Hof ist teilweise gepflastert, begrünt und mit Obstbäumen bepflanzt, und es gibt auch einen überdachten Carport.
Das Haus befindet sich in einer ruhigen Seitenstraße und ist dennoch zentral gelegen mit guter Verkehrsanbindung. Hévíz ist 1 km entfernt, Keszthely 10km.

WIR ARBEITEN MIT ZUVERLÄSSIGEN PARTNERN VOR ORT IN UNGARN ZUSAMMEN UND SIND IN DER LAGE EINE PROFESSIONELLE BETREUUNG VOM ERSTEN KONTAKT, ÜBER EINE AUSWAHL DER IMMOBILIE AUS EINEM BREITEN ANGEBOT, BIS HIN ZUM RECHTSSICHEREN KAUFVERTRAG UND DANACH ZU GEWÄHRLEISTEN.

UNSERE PARTNER VOR ORT IN UNGARN SPRECHEN UNGARISCH, DEUTSCH UND ENGLISCH
Wenn Sie irgendwelche Fragen über die Immobilie haben, rufen Sie uns gerne an. Fragen Sie uns, wir helfen Ihnen gerne weiter.

Ausstattungsmerkmale

 
Küche Einbauküche
Bad 2
Bad Dusche, Fenster, Bidet
Balkone 3
Terrassen 1
Keller
Alapterület 300 m2
Telekterület 600 m2
Szobák 6 + 2 fél
Ingatlan állapota felújított
Építés éve 1981 és 2000 között
Komfort duplakomfortos
Épület szintjei 3
Légkondicionáló van
Fürdő és wc külön és egyben is
Kilátás panorámás
Tetőtér beépített
Pince van
Parkolás önálló garázs


Fűtés gázkazán, vegyes tüzelésű kazán, kandalló

Leírás
Magánszemélytől eladó egy gyönyörű örökpanorámás 120 m2 3 szintes többgenerációs családi ház.

Minden szint külön bejáratú. A középső szinten 2 szoba, nagy nappali, konyha, fürdő, wc, terasz található. Az emeleten 2 szoba, amerikai konyhás nappali, 2 fürdő-wc, teraszok vannak. Az alsó szint félszuterén, itt egy 1 szobás apartman fürdővel konyhával, garázs és műhely található.
A ház több műszaki felújításon esett át az elmúlt években. Cserére került a víz- és villanyvezeték rendszer, új fűtésrendszer, nyílászárók és tető került kivitelezésre. Esztétikai felújítás volt a középső szinten, és az egyik emeleti fürdőben. A felső szint esztétikai felújításra szorul. Itt évek óta szobáztatás folyik, melyből rendszeres jövedelem keletkezik.
Fűtése központi fűtés, választható a gáz vagy fa kazán között, illetve a középső szinten kandalló is van.
Az udvar részben térköves, füvesített és gyümölcsfákkal telepített, illetve fedett autó beálló is található.

A ház egy csendes mellékutcában, mégis központi helyen található, jó közlekedési lehetőségekkel. Hévíz 1 km, Keszthely 10km-re található.
Keszthely 10km.

Sonstige Informationen

Hinweis auf den Umrechnungskurs zwischen HUF (ungarischen Forint) und dem € (EUR)

Wir weisen darauf hin, dass wir die Kaufpreisangabe zum Zeitpunkt der Veröffentlichung des Angebotes von HUF (ungarischen Forint) in € (EUR) zum damaligen Wechselkurs umgerechnet haben.

Bitte beachten Sie deshalb, dass der Kaufpreis schwanken kann.
Es gilt der Kaufpreis zum aktuellen Umrechnungskurs bei Kaufpreisfälligkeit.

Rechtlicher Hinweis / Disclaimer
Wir bitten um Verständnis, dass wir nur vollständig ausgefüllte Emailanfragen mit Vornamen,
Namen, Anschrift, Telefonnummer und Emailadresse beantworten können.
Alle Daten und Fakten stammen vom Eigentümer des Objektes. Wir haben uns vor Ort von der
Übereinstimmung überzeugt. Trotz aller Gründlichkeit können wir für die Richtigkeit und
Vollständigkeit der Angaben keine Haftung übernehmen. Irrtum und Auslassung sowie
Zwischenverkauf und/oder Zwischenvermietung bleiben vorbehalten.

Eine Reservierung kann nur nach schriftlicher Vereinbarung in Absprache mit dem Makler und dem
Eigentümer erfolgen.

Disclaimer / Property offers
Please understand that we will only answer fully completed requests with name, address, telephone
number and email address.
Provided, neither Langer Immobilien GmbH & Co. KG, its officers or employees accept any
responsibility as to the accuracy of the information provided on either this or in any subsequent
communication.
We strongly recommend that each individual investor takes independent professional advice
concerning all aspects of any proposed purchase.
Langer Immobilien GmbH & Co. KG does not take any responsibility for any Professional or other
costs incurred by an investor.
The provision of the information contained in this E-Mail or any subsequent communication is no
indication or proof of Langer Immobilien GmbH & Co. KG’s legal appointment by the owner / vendor
of a proposed investment to market this opportunity exclusively or as one of several appointed
consultants.

Hauptsitz: Langer Immobilien GmbH & Co. KG, Weydingerstraße 14-16, 10178 Berlin - Mitte
Karte wird geladen...
Objektstandort
8394 Alsópáhok

Lage & Infrastruktur

Dorf Alsópáhok im Komitat Zala , Kreis Keszthely .
An der südsüdwestlichen Grenze von Hévíz , nördlich der Autobahn 75 , erstreckt sich eine Siedlung über fast 4 Kilometer. Die Hauptstraße des Dorfes ist die Straße 7351 , die fast über das gesamte Gebiet verläuft , und die Straße 7332, die durch Hévíz führt.
Die Entwicklung der Stadt Hévíz basiert auf dem Tourismus . Mit einer Million Übernachtungen in gewerblichen Unterkünften (2012) ist es nach Budapest die zweitbeliebteste Siedlung in Ungarn . Die größten Versandmärkte sind Deutschland (258.000), Russland (181.000) und Österreich (97.000). Seine Beliebtheit verdankt es natürlich vor allem dem Hévízer See, der auch für seine heilende Wirkung bekannt ist . Der Kurort, der mittlerweile auf eine mehr als 200-jährige Kurtradition zurückblickt, wird jedes Jahr von Hunderttausenden Touristen besucht. Es wird mit einem weiteren Anstieg des internationalen Gästeverkehrs gerechnet, da immer mehr Touristen am nahegelegenen Flughafen Sármellék ankommen .

Hévíz ist Mitglied des Nationalen Verbandes der ungarischen Kurstädte.

Kontaktanfrage senden

Über den Anbieter

Langer Immobilien GmbH & Co.KG
Weydingerstraße 14-16
10178 Berlin
Ansprechpartner/in
Herrn Günther Langer
Weitere Anbieterdaten