Primošten, Neubau, Ein-Zimmer-Wohnung in ruhiger Lage
150.000 €
Kaufpreis
2
Zimmer
immobilien.de Nr.: 8440624
Objektnummer: 719-S4
Kaufpreis
| Kaufpreis | 150.000 € |
Wohnfläche, Grundstück & Bausubstanz
| Gesamtfläche | 45 m² |
| Zimmer | 2 |
| Baujahr | 2024 |
| Verfügbar ab | keine Angabe |
Beschreibung der Immobilie
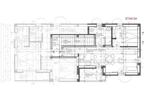
In Primošten steht eine moderne Einzimmerwohnung (S4) in ruhiger Lage zum Verkauf. Die Wohnung befindet sich im zweiten Stock und besteht aus: einem Schlafzimmer, Badezimmer, Küche mit Esszimmer und Wohnzimmer in einer Einheit, die auf eine überdachte Terrasse führt. Zur Wohnung gehört auch ein Parkplatz.
- Moderne Architektur und Design und hervorragende Aufteilung
- Hochwertige Konstruktion,
- Außenfassade aus Polystyrol
- PVC-Tischlerei mit elektrisch betriebenen ALU-Rollläden
- Ausgestattet mit einer Inverter-Klimaanlage zum Heizen und Kühlen,
- Sicherheitseingangstür,
- Hochwertige Keramik mit wunderschön und modern eingerichteten Badezimmern
Im selben Gebäude stehen noch mehrere weitere Wohnungen zum Verkauf und der voraussichtliche Bautermin für die Wohnungen ist Hochsommer 2025
Primošten ist eines der attraktivsten Reiseziele an der Adria mit wunderschönen Stränden, klarem Meer und langen Promenaden sowie zahlreichen kulturellen und sportlichen Einrichtungen. Es verfügt über hervorragende Verkehrsanbindungen, in der Nähe der Autobahn und des Flughafens. Die Wohnung ist eine ausgezeichnete Wahl für einen Sommerurlaub oder zum Wohnen das ganze Jahr über.
ID CODE: 719-S4
- Moderne Architektur und Design und hervorragende Aufteilung
- Hochwertige Konstruktion,
- Außenfassade aus Polystyrol
- PVC-Tischlerei mit elektrisch betriebenen ALU-Rollläden
- Ausgestattet mit einer Inverter-Klimaanlage zum Heizen und Kühlen,
- Sicherheitseingangstür,
- Hochwertige Keramik mit wunderschön und modern eingerichteten Badezimmern
Im selben Gebäude stehen noch mehrere weitere Wohnungen zum Verkauf und der voraussichtliche Bautermin für die Wohnungen ist Hochsommer 2025
Primošten ist eines der attraktivsten Reiseziele an der Adria mit wunderschönen Stränden, klarem Meer und langen Promenaden sowie zahlreichen kulturellen und sportlichen Einrichtungen. Es verfügt über hervorragende Verkehrsanbindungen, in der Nähe der Autobahn und des Flughafens. Die Wohnung ist eine ausgezeichnete Wahl für einen Sommerurlaub oder zum Wohnen das ganze Jahr über.
ID CODE: 719-S4
Ausstattungsmerkmale
| Anzahl der Etagen im Haus | 3 |
| Inserat befindet sich im Stockwerk | 2 |
| Bad | 1 |
Karte wird geladen...
Objektstandort
22202 Primošten
- Dalmatien-Sibenik [Sibensko-Kninska]
Kontaktanfrage senden
Über den Anbieter
BONUM NEKRETNINE d.o.o.
Bana Josipa Jelacica 6a
22000 Sibenik
Kontakt
| Mobil | 095 750 5763 |
Ansprechpartner/in
Bonum nekretnine