Vrbnik, Baugrundstück mit wunderschönem Meerblick!
339.000 €
Kaufpreis
immobilien.de Nr.: 8438142
Objektnummer: 3637
Kaufpreis
| Kaufpreis | 339.000 € |
Wohnfläche, Grundstück & Bausubstanz
| Gesamtfläche | 646 m² |
| Verfügbar ab | keine Angabe |
Beschreibung der Immobilie
Vrbnik, Verkauf, Baugrundstück mit wunderschönem Meerblick, 350 m vom Zentrum entfernt!
Das Grundstück mit einer Fläche von 646 m2 liegt neben einer asphaltierten Straße und aller notwendigen Infrastruktur, in der Umgebung von Einfamilienhäusern und in unmittelbarer Nähe zum Zentrum.
Die Entfernung zum Meer beträgt 750 m.
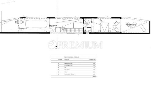
Für das Grundstück wurde ein Konzeptprojekt erstellt, nach dem der Investor bauen kann!
Bauvorschriften gemäß dem Raumplan der Gemeinde Vrbnik:
a) Einfamilienhaus (freistehend, halb oder in einer Reihe) mit maximal 2 Wohneinheiten
- Mindestzulässige Grundstücksfläche: 400 m2
- Maximal zulässiger Bebauungskoeffizient (Kig): 0,3
- Maximal zulässiger Nutzungskoeffizient (Kis): 0,9
- Mindestzulässige Fläche des Grundrisses des neuen Gebäudes: 80 m2
- Maximal zulässige Fläche des Grundrisses des neuen Gebäudes: 200 m2
- Maximal zulässige Anzahl der Stockwerke: 2 oberirdisch, mit der Möglichkeit, einen Keller zu bauen; oder auf extrem abschüssigem Gelände (Neigung größer als 12%), 3 Stockwerke.
- Maximal zulässige Gebäudehöhe: 6,50 m
- Wenn das Gebäude auf extrem abschüssigem Gelände errichtet wird, bei dem die natürliche Geländeneigung größer als 12% ist, beträgt die maximale Anzahl der Stockwerke des Gebäudes 3 oberirdisch, wobei ein Keller obligatorisch ist, die Möglichkeit zum Bau eines Kellers besteht, und die maximale Gebäudehöhe 9,5 m beträgt, gemessen von der Ebene des endgültig geebneten und gestalteten Geländes bis zur Front des Gebäudes von seinem niedrigsten Teil bis zum oberen Rand des Dachfirsts, wobei die niedrigste Ebene des Geländes vor der Front des Gebäudes höchstens 0,5 m über der Ebene des natürlichen Geländes liegen kann.
b) Doppelhaus (ein Doppelhaus kann höchstens eine Wohneinheit in jeder Baueinheit (auf jedem Baugrundstück) haben oder insgesamt höchstens zwei Wohneinheiten)
- Mindestzulässige Grundstücksfläche: 300 m2
- Maximal zulässiger Bebauungskoeffizient (Kig): 0,4
- Maximal zulässiger Nutzungskoeffizient (Kis): 0,8
- Mindestzulässige Fläche des Grundrisses: 60 m2
- Maximal zulässige Anzahl der Stockwerke eines Einfamilienhauses: 2 oberirdisch, mit der Möglichkeit, einen Keller zu bauen; oder auf extrem abschüssigem Gelände (Neigung größer als 12%), 3 Stockwerke, wenn das Untergeschoss für die Garage geplant ist.
- Maximal zulässige Gebäudehöhe: 6
ID CODE: 3637
Das Grundstück mit einer Fläche von 646 m2 liegt neben einer asphaltierten Straße und aller notwendigen Infrastruktur, in der Umgebung von Einfamilienhäusern und in unmittelbarer Nähe zum Zentrum.
Die Entfernung zum Meer beträgt 750 m.
Für das Grundstück wurde ein Konzeptprojekt erstellt, nach dem der Investor bauen kann!
Bauvorschriften gemäß dem Raumplan der Gemeinde Vrbnik:
a) Einfamilienhaus (freistehend, halb oder in einer Reihe) mit maximal 2 Wohneinheiten
- Mindestzulässige Grundstücksfläche: 400 m2
- Maximal zulässiger Bebauungskoeffizient (Kig): 0,3
- Maximal zulässiger Nutzungskoeffizient (Kis): 0,9
- Mindestzulässige Fläche des Grundrisses des neuen Gebäudes: 80 m2
- Maximal zulässige Fläche des Grundrisses des neuen Gebäudes: 200 m2
- Maximal zulässige Anzahl der Stockwerke: 2 oberirdisch, mit der Möglichkeit, einen Keller zu bauen; oder auf extrem abschüssigem Gelände (Neigung größer als 12%), 3 Stockwerke.
- Maximal zulässige Gebäudehöhe: 6,50 m
- Wenn das Gebäude auf extrem abschüssigem Gelände errichtet wird, bei dem die natürliche Geländeneigung größer als 12% ist, beträgt die maximale Anzahl der Stockwerke des Gebäudes 3 oberirdisch, wobei ein Keller obligatorisch ist, die Möglichkeit zum Bau eines Kellers besteht, und die maximale Gebäudehöhe 9,5 m beträgt, gemessen von der Ebene des endgültig geebneten und gestalteten Geländes bis zur Front des Gebäudes von seinem niedrigsten Teil bis zum oberen Rand des Dachfirsts, wobei die niedrigste Ebene des Geländes vor der Front des Gebäudes höchstens 0,5 m über der Ebene des natürlichen Geländes liegen kann.
b) Doppelhaus (ein Doppelhaus kann höchstens eine Wohneinheit in jeder Baueinheit (auf jedem Baugrundstück) haben oder insgesamt höchstens zwei Wohneinheiten)
- Mindestzulässige Grundstücksfläche: 300 m2
- Maximal zulässiger Bebauungskoeffizient (Kig): 0,4
- Maximal zulässiger Nutzungskoeffizient (Kis): 0,8
- Mindestzulässige Fläche des Grundrisses: 60 m2
- Maximal zulässige Anzahl der Stockwerke eines Einfamilienhauses: 2 oberirdisch, mit der Möglichkeit, einen Keller zu bauen; oder auf extrem abschüssigem Gelände (Neigung größer als 12%), 3 Stockwerke, wenn das Untergeschoss für die Garage geplant ist.
- Maximal zulässige Gebäudehöhe: 6
ID CODE: 3637
Ausstattungsmerkmale
| Anzahl der Etagen im Haus | 0 |
Karte wird geladen...
Objektstandort
51516 Vrbnik
- Kvarner Region [Primorsko-Goranska]
Kontaktanfrage senden
Über den Anbieter
Premium SM d.o.o
Dubasyanska 76
51511 Malinska
Kontakt
| Telefon | +38551 858 364 |
| Mobil | +385 91 5474 709 |
Ansprechpartner/in
Magdalena Meštrović