Grundstück Tinjan, 710m2
125.000 €
Kaufpreis
immobilien.de Nr.: 8352278
Objektnummer: T425
Preise & Kosten
| Kaufpreis | 125.000 € |
| Nebenkosten | keine Angabe |
Größe & Zustand
| Gesamtfläche | 710 m² |
| Verfügbar ab | keine Angabe |
Objektbeschreibung
Im Angebot steht ein Grundstück von 710 m2 mit Baugenehmigung und Projekt für den Bau einer Villa mit Pool.
Das Haus ist nach dem Projekt als zweigeschossige Wohnanlage, Erdgeschoss und 1. Stock, konzipiert.
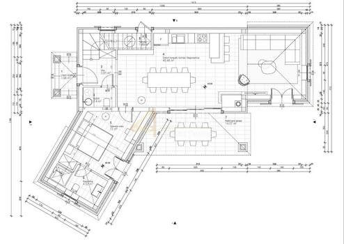
Erdgeschoss: Eingangsbereich, Eingang mit Treppe, Technikraum, WC, Küche mit Esszimmer und Wohnzimmer in einem offenen Raum, Schlafzimmer mit eigenem Badezimmer, überdachte Terrasse.
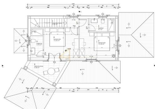
Stock: Flur, zwei Schlafzimmer mit eigenen Badezimmern, überdachte Terrasse.
Wohnfläche des Hauses (Netto): 125,31 m2 / Bruttofläche: 135,84 m2
Pool: 38,25 m2
Gepflasterter Bereich mit Parkplatz: 166,73 m2
Grünfläche: 463,34 m2
Die Möglichkeit zum Kauf eines komplett fertigen Hauses, nach dem sogenannten "Schlüssel-in-der-Hand"-Prinzip, Preis auf Anfrage!
Sehr geehrte Kunden, die Maklergebühr wird gemäß den Allgemeinen Geschäftsbedingungen erhoben.
ID CODE: T425
Das Haus ist nach dem Projekt als zweigeschossige Wohnanlage, Erdgeschoss und 1. Stock, konzipiert.
Erdgeschoss: Eingangsbereich, Eingang mit Treppe, Technikraum, WC, Küche mit Esszimmer und Wohnzimmer in einem offenen Raum, Schlafzimmer mit eigenem Badezimmer, überdachte Terrasse.
Stock: Flur, zwei Schlafzimmer mit eigenen Badezimmern, überdachte Terrasse.
Wohnfläche des Hauses (Netto): 125,31 m2 / Bruttofläche: 135,84 m2
Pool: 38,25 m2
Gepflasterter Bereich mit Parkplatz: 166,73 m2
Grünfläche: 463,34 m2
Die Möglichkeit zum Kauf eines komplett fertigen Hauses, nach dem sogenannten "Schlüssel-in-der-Hand"-Prinzip, Preis auf Anfrage!
Sehr geehrte Kunden, die Maklergebühr wird gemäß den Allgemeinen Geschäftsbedingungen erhoben.
ID CODE: T425
Ausstattung
| Anzahl der Etagen im Haus | 0 |
