Vrbnik, luxuriöse Erdgeschosswohnung mit Meerblick!
590.000 €
Kaufpreis
3
Zimmer
immobilien.de Nr.: 8321116
Objektnummer: 4132
Preise & Kosten
| Kaufpreis | 590.000 € |
| Nebenkosten | keine Angabe |
Größe & Zustand
| Gesamtfläche | 137 m² |
| Zimmer | 3 |
| Baujahr | 2024 |
| Verfügbar ab | keine Angabe |
Objektbeschreibung
Vrbnik, zum Verkauf steht eine Erdgeschosswohnung in einem Wohngebäude mit insgesamt 3 Wohneinheiten!
Die Wohnung besteht aus einem Eingangsbereich, einem Waschraum, einem Badezimmer, 2 Schlafzimmern, wobei das Hauptschlafzimmer über ein eigenes Badezimmer und eine Garderobe verfügt. Zudem gibt es eine Küche mit Essbereich und ein Wohnzimmer mit Zugang zu einer überdachten Terrasse (23m2) sowie einem schön gestalteten Garten von 200m2 mit Pool und Sonnenterrasse.
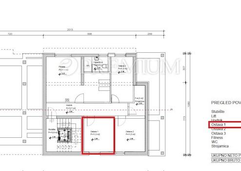
Ein interner Aufzug führt in den Keller des Gebäudes, in dem sich ein zur Wohnung gehörender Abstellraum von 11m2 befindet.
Die Wohnung zeichnet sich durch erstklassige Bauweise, modernes Design, hochwertige Materialien, Fußbodenheizung in allen Räumen mit Wärmepumpe, Aluminiumfenster und -türen, erstklassige Keramik und Videoüberwachung aus.
Zur Wohnung gehören 2 Parkplätze, wobei einer davon überdacht ist.
Das Objekt befindet sich derzeit im Bau, und die Fertigstellung wird bis Ende 2024 erwartet.
Verkauf nach dem "Schlüsselfertig"-Prinzip.
Ein besonderes Merkmal dieser Wohnung ist der fast panoramische Meerblick aus dem Erdgeschoss!
Ruhige Lage, 700m vom Meer entfernt!
ID CODE: 4132
Die Wohnung besteht aus einem Eingangsbereich, einem Waschraum, einem Badezimmer, 2 Schlafzimmern, wobei das Hauptschlafzimmer über ein eigenes Badezimmer und eine Garderobe verfügt. Zudem gibt es eine Küche mit Essbereich und ein Wohnzimmer mit Zugang zu einer überdachten Terrasse (23m2) sowie einem schön gestalteten Garten von 200m2 mit Pool und Sonnenterrasse.
Ein interner Aufzug führt in den Keller des Gebäudes, in dem sich ein zur Wohnung gehörender Abstellraum von 11m2 befindet.
Die Wohnung zeichnet sich durch erstklassige Bauweise, modernes Design, hochwertige Materialien, Fußbodenheizung in allen Räumen mit Wärmepumpe, Aluminiumfenster und -türen, erstklassige Keramik und Videoüberwachung aus.
Zur Wohnung gehören 2 Parkplätze, wobei einer davon überdacht ist.
Das Objekt befindet sich derzeit im Bau, und die Fertigstellung wird bis Ende 2024 erwartet.
Verkauf nach dem "Schlüsselfertig"-Prinzip.
Ein besonderes Merkmal dieser Wohnung ist der fast panoramische Meerblick aus dem Erdgeschoss!
Ruhige Lage, 700m vom Meer entfernt!
ID CODE: 4132
Ausstattung
| Anzahl der Etagen im Haus | 2 |
| Bad | 2 |
