Umgebung von Malinska, neu gebautes Haus in ruhiger Lage!
675.000 €
Kaufpreis
4
Zimmer
immobilien.de Nr.: 8096679
Objektnummer: 3962
Kaufpreis
| Kaufpreis | 675.000 € |
Wohnfläche, Grundstück & Bausubstanz
| Gesamtfläche | 171 m² |
| Grundstücksfläche | 565 m² |
| Zimmer | 4 |
| Baujahr | 2023 |
| Verfügbar ab | keine Angabe |
Beschreibung der Immobilie
Umgebung von Malinska, Verkauf, neu gebaute, moderne, freistehende Häuser, 2,5 km vom Meer entfernt, in ruhiger Lage.
Die Fläche des Hauses beträgt 171 m2 und umfasst das Erdgeschoss, den ersten Stock und den Dachboden.
Im Erdgeschoss befinden sich Eingangsbereich, Gäste-WC, Heizungsraum, Abstellraum, Küche und Esszimmer sowie ein Wohnzimmer mit Zugang zur Terrasse.
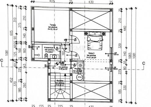
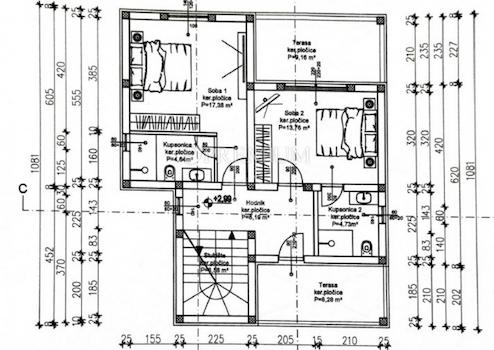
Eine Innentreppe führt in den 1. Stock des Hauses, wo sich ein Flur und ein Ausgang zur Terrasse (Nummer 1), 2 Schlafzimmer mit jeweils eigenem Bad und ein Schlafzimmer mit Ausgang zur Terrasse (Nummer 2) befinden.
Im Dachgeschoss befindet sich eine Waschküche und ein weiteres Schlafzimmer mit eigenem Bad und Zugang zur Terrasse mit Meerblick.
Die Immobilie zeichnet sich durch hochwertige Bauweise, PVC-Tischlerei, Fußbodenheizung, Klimaanlage, Möglichkeit der Holzheizung (eingebauter Kamin) aus.
Es befindet sich in ruhiger Lage, 2500 m vom Meer entfernt!
ID CODE: 3962
Die Fläche des Hauses beträgt 171 m2 und umfasst das Erdgeschoss, den ersten Stock und den Dachboden.
Im Erdgeschoss befinden sich Eingangsbereich, Gäste-WC, Heizungsraum, Abstellraum, Küche und Esszimmer sowie ein Wohnzimmer mit Zugang zur Terrasse.
Eine Innentreppe führt in den 1. Stock des Hauses, wo sich ein Flur und ein Ausgang zur Terrasse (Nummer 1), 2 Schlafzimmer mit jeweils eigenem Bad und ein Schlafzimmer mit Ausgang zur Terrasse (Nummer 2) befinden.
Im Dachgeschoss befindet sich eine Waschküche und ein weiteres Schlafzimmer mit eigenem Bad und Zugang zur Terrasse mit Meerblick.
Die Immobilie zeichnet sich durch hochwertige Bauweise, PVC-Tischlerei, Fußbodenheizung, Klimaanlage, Möglichkeit der Holzheizung (eingebauter Kamin) aus.
Es befindet sich in ruhiger Lage, 2500 m vom Meer entfernt!
ID CODE: 3962
Ausstattungsmerkmale
| Anzahl der Etagen im Haus | 2 |
| Bad | 4 |
Karte wird geladen...
Objektstandort
51511 Malinska-Dubašnica
- Kvarner Region [Primorsko-Goranska]
Kontaktanfrage senden
Über den Anbieter
Premium SM d.o.o
Dubasyanska 76
51511 Malinska
Kontakt
| Mobil | +385 91 5474 709 |
Ansprechpartner/in
Snježana Meštrović