Umgebung von Krk, ein imposantes Haus mit herrlichem Blick auf das Meer!
1.850.000 €
Kaufpreis
8
Zimmer
immobilien.de Nr.: 8086008
Objektnummer: 3936
Kaufpreis
| Kaufpreis | 1.850.000 € |
Wohnfläche, Grundstück & Bausubstanz
| Gesamtfläche | 311 m² |
| Zimmer | 8 |
| Verfügbar ab | keine Angabe |
Beschreibung der Immobilie
Krk, Umgebung, Verkauf eines schönen modernen Hauses mit Swimmingpool und Panoramablick auf das Meer.
Das Haus besteht aus Keller, Erdgeschoss und 1. Stock mit einer Gesamtnettofläche von 311,4 m2.
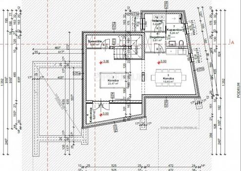
Im Untergeschoss mit einer Nettofläche von 33,93 m2 befinden sich Nebenräume; 2 Tavernen, Heizraum, Abstellraum, Waschküche und Badezimmer.
Eine Innentreppe führt ins Erdgeschoss, das aus einem Eingangsbereich, einem großzügigen Wohnzimmer, einer Küche und einem Esszimmer besteht. Das Wohnzimmer führt zu einer überdachten Terrasse (13m2). Es gibt auch ein kleineres Studio-Apartment (35m2) im Erdgeschoss.
Im Obergeschoss befinden sich 3 Schlafzimmer, jedes mit eigenem Bad und Terrasse.
Der geplante Abschluss der Arbeiten ist 2026.
Es wird nach dem "schlüsselfertigen" System verkauft.
Das Haus ist mit einem modernen Projekt, hochwertiger Konstruktion, bei der nur die besten Materialien verwendet werden, hochwertiger ALU + PVC-Tischlerei, Klimaanlage in allen Zimmern,...
Ausgezeichnete, ruhige Lage, Rand einer Bauzone, 1,3 km vom Meer entfernt.
Wenn der Käufer eine Immobilie in gutem Zustand kaufen möchte, würde der Preis 950.000 € betragen.
ID CODE: 3936
Das Haus besteht aus Keller, Erdgeschoss und 1. Stock mit einer Gesamtnettofläche von 311,4 m2.
Im Untergeschoss mit einer Nettofläche von 33,93 m2 befinden sich Nebenräume; 2 Tavernen, Heizraum, Abstellraum, Waschküche und Badezimmer.
Eine Innentreppe führt ins Erdgeschoss, das aus einem Eingangsbereich, einem großzügigen Wohnzimmer, einer Küche und einem Esszimmer besteht. Das Wohnzimmer führt zu einer überdachten Terrasse (13m2). Es gibt auch ein kleineres Studio-Apartment (35m2) im Erdgeschoss.
Im Obergeschoss befinden sich 3 Schlafzimmer, jedes mit eigenem Bad und Terrasse.
Der geplante Abschluss der Arbeiten ist 2026.
Es wird nach dem "schlüsselfertigen" System verkauft.
Das Haus ist mit einem modernen Projekt, hochwertiger Konstruktion, bei der nur die besten Materialien verwendet werden, hochwertiger ALU + PVC-Tischlerei, Klimaanlage in allen Zimmern,...
Ausgezeichnete, ruhige Lage, Rand einer Bauzone, 1,3 km vom Meer entfernt.
Wenn der Käufer eine Immobilie in gutem Zustand kaufen möchte, würde der Preis 950.000 € betragen.
ID CODE: 3936
Ausstattungsmerkmale
| Anzahl der Etagen im Haus | 1 |
| Bad | 5 |
Karte wird geladen...
Objektstandort
51500 Krk
- Kvarner Region [Primorsko-Goranska]
Kontaktanfrage senden
Über den Anbieter
Premium SM d.o.o
Dubasyanska 76
51511 Malinska
Kontakt
| Mobil | +385995474701 |
Ansprechpartner/in
Snježana Meštrović