ISTRIEN, Rovinj, Luxus Wohnung im Erdgeschoss im Neubau,100,56m2
1 €
Kaufpreis
3
Zimmer
immobilien.de Nr.: 7728106
Objektnummer: 4324
Preise & Kosten
| Kaufpreis | 1 € |
| Nebenkosten | keine Angabe |
Größe & Zustand
| Gesamtfläche | 100 m² |
| Zimmer | 3 |
| Baujahr | 2020 |
| Verfügbar ab | keine Angabe |
Objektbeschreibung
Wir verkaufen eine Top-Wohnung in einem neuen Gebäude im Herzen von Rovinj! Rovinj ist eines der meistbesuchten Reiseziele in Kroatien und liegt an der Westküste Istriens. Neben seiner wunderschönen Küste und zahlreichen Inseln, die es umgeben, ist Rovinj ein begehrter Ort für Ruhe und Leben. Dieses schöne neue Gebäude mit 14 Wohnungen befindet sich in einem Wohnbereich.
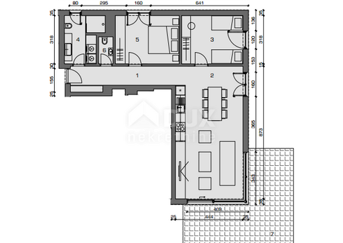
Die Wohnung befindet sich im Erdgeschoss und hat eine Gesamtwohnfläche von 100,56 m2. Sie besteht aus einer Eingangshalle, einem mit Küche und Esszimmer verbundenen Wohnzimmer, zwei Schlafzimmern, Bad, WC und einer nicht überdachten Terrasse von 32,85 m2.
Das Konzept des Baus dieser Immobilie bietet viel natürliches Licht und macht die Immobilie somit komfortabler. Der Innenraum ist mit hochwertigen Materialien ausgestattet und der Eindruck von Luxus wird durch hohe Decken und elegante Filomuro-Innentüren vermittelt, während die Böden mit großformatigem amerikanischem Walnussholz geschmückt sind. Die Sicherheit des Gebäudes wird durch Feuer- und Einbruchstüren gewährleistet, während die dreischichtigen Aluminiumfenster, vom Hersteller ,,Schüco“, automatische Rollläden und Jalousien haben. Jede Wohnung verfügt über einen Abstellraum im Erdgeschoss des Gebäudes von 8,30 m² und einen Parkplatz auf einem privaten Parkplatz, der von einer ferngesteuerten Rampe umgeben ist.
ID CODE: 4324
Die Wohnung befindet sich im Erdgeschoss und hat eine Gesamtwohnfläche von 100,56 m2. Sie besteht aus einer Eingangshalle, einem mit Küche und Esszimmer verbundenen Wohnzimmer, zwei Schlafzimmern, Bad, WC und einer nicht überdachten Terrasse von 32,85 m2.
Das Konzept des Baus dieser Immobilie bietet viel natürliches Licht und macht die Immobilie somit komfortabler. Der Innenraum ist mit hochwertigen Materialien ausgestattet und der Eindruck von Luxus wird durch hohe Decken und elegante Filomuro-Innentüren vermittelt, während die Böden mit großformatigem amerikanischem Walnussholz geschmückt sind. Die Sicherheit des Gebäudes wird durch Feuer- und Einbruchstüren gewährleistet, während die dreischichtigen Aluminiumfenster, vom Hersteller ,,Schüco“, automatische Rollläden und Jalousien haben. Jede Wohnung verfügt über einen Abstellraum im Erdgeschoss des Gebäudes von 8,30 m² und einen Parkplatz auf einem privaten Parkplatz, der von einer ferngesteuerten Rampe umgeben ist.
ID CODE: 4324
Ausstattung
| Anzahl der Etagen im Haus | 4 |
| Bad | 1 |
