Charmant und mit Stil Haus mit ELW und Garten von 1800

700.000 €
Kaufpreis
263 m²
Wohnfläche
8
Zimmer
immobilien.de Nr.: 9392643 Objektnummer: 411548

Preise & Kosten

Kaufpreis 700.000 €
Nebenkosten keine Angabe
Maklerprovision keine Provision, courtagefrei

Größe & Zustand

Wohnfläche 263 m²
Grundstücksfläche 989 m²
Zimmer 8
Baujahr 1800
Verfügbar ab nach Absprache
Zustand Teil Vollsaniert

Energie

Energieausweistyp Bedarfsausweis
Energieeffizienzklasse G
Endenergiebedarf 224
Heizungsart Zentralheizung
Energieträger/Befeuerung Öl

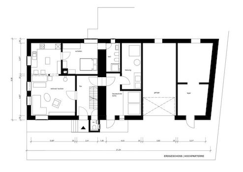
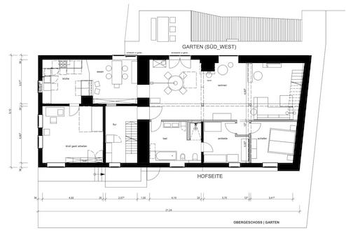
Objektbeschreibung

Objektbeschreibung

Stell dir vor, du kommst nach Hause – und hinter der Straße öffnet sich plötzlich eine kleine, geschützte Welt aus Naturstein, Holz und Grün: ein Haus mit Geschichte, Weite und diesem seltenen Gefühl von „angekommen“. Genau das bietet dieses sanierte, freistehende Wohnhaus (Baujahr ca. 1800) – privat von privat, ohne Maklerprovision, mit direkter Kommunikation zu den Eigentümern.

Fakten auf einen Blick:

Wohnfläche: ca. 263 m²

Grundstück: ca. 989 m², Südwest-Ausrichtung

Zimmer: 8, Schlafzimmer: 3, Bäder: 3

Haustyp: freistehendes Einfamilienhaus mit Einliegerwohnung

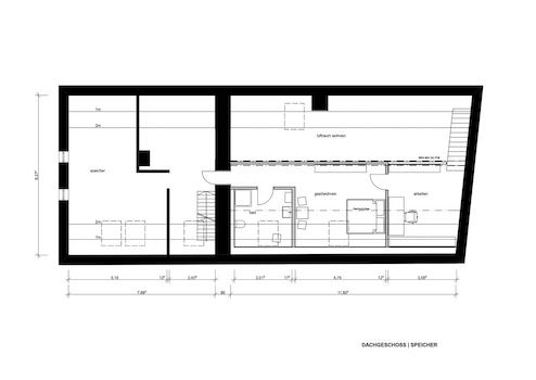
Etagen: 3

Kein Denkmalschutz

Highlights: großes Wohnatelier/Wohnzimmer ca. 12 × 5 m mit ca. 4,5 m Deckenhöhe, Natursteinwände & sichtbares Gebälk, großer Garten mit Obstbäumen, Terrasse, Garage + 2 Stellplätze

Photovoltaik: 9,88 kWp, garantierte Einspeisevergütung bis 2036 (0,123€ je kWh eingespeist)

Heizung: Niedertemperatur-Ölzentralheizung (Baujahr 2004) + 2 moderne Holzöfen als Zusatzwärme

Und dann ist da dieser Moment im großen, lichtdurchfluteten Wohnbereich: Raumhöhe, Blick ins Grüne, Ruhe – ein Zuhause, das man nicht nur besichtigt, sondern spürt.

Ausstattung

Anzahl der Etagen im Haus 3
 
Küche Einbauküche
Bad 3
Boden Fliesen, Parkett
Balkone 0
Garten
Terrassen 1
Garage/Stellplätze 1
Terrasse, Garten, Einbauküche, Gäste-WC, Kamin, Parkett, Fliesen

Bemerkungen:
Bemerkungen zur Ausstattung

Dieses Haus erzählt Geschichte – aber es lebt im Heute: Natursteinmauerwerk, sichtbares Gebälk und zugleich eine Ausstattung, die Alltag komfortabel macht. Besonders eindrucksvoll ist das große Wohnatelier/Wohnzimmer (ca. 12 × 5 m, ca. 4,5 m Höhe) – ein Raum für Licht, Kreativität, Feste und dieses besondere „Wow“, das man kaum nachbauen kann.

Ausstattung & Aufteilung:

Hauptwohnung: ca. 187 m², 6 Zimmer

Einliegerwohnung: ca. 55 m², 2 Zimmer (ideal für Mehrgeneration, Homeoffice, Pflege oder Gäste)

Zusätzlich: Kellerräume und Speicher/Dachgeschoss (mit Ausbaupotenzial im Dachgeschoss)

Dachetage kann als Gäste-/Arbeitsbereich mit eigenem Bad genutzt werden

Eichenparkett in Wohn- und Schlafbereichen

3 modernisierte Bäder (Sanierungen 2012 und 2018)

Heizung: Vitola-200 Niedertemperatur-Ölzentralheizung (BJ 2004), regelmäßig gewartet; Austausch laut Einschätzung des Verkäufers nicht erforderlich

2 moderne Holzöfen für gemütliche Zusatzwärme

Dämmung: obere Geschossdecke/Dach bereits mit Mineralwolle gedämmt

PV-Anlage: 9,88 kWp, Einspeisevergütung bis 2036

Terrasse mit 2 Pavillons (Sonnen-/Regenschutz flexibel)

Internet aktuell: Vodafone Kabel 250 Mbit/s; Telekom DSL 6 Mbit/s (laut euch). Glasfaser: Ausbau durch „Deutsche Glasfaser“ nach 2026 geplant (Planung/Zeithorizont kann sich ändern).

Energiehinweis:
Energieeffizienzklasse Jährlicher Endenergiebedarf (kWh/m²a)Typische Beispiele
...
D 100 – 130 Sehr gut sanierte Altbauten
E 130 – 160 Altbauten, erhöhter Verbrauch
F 160 – 200 Altbauten mit älteren Systemen
G 200 – 250 Altbauten mit hohem Verbrauch

Ausgefertigter Energiebedarfsausweis: 224,64 kWh/(m²·a) = Klasse G
Tatsächlicher Verbrauch: Ø 111–113 kWh/(m²·a) (Durchschnitt letzte 3 Jahre; abhängig von Nutzerverhalten, u. a. Holzofen-Nutzung). Maßgeblich sind die Angaben im Energieausweis.

Am Ende bleibt vor allem ein Gefühl: Platz zum Leben, Platz zum Atmen – und ein Zuhause mit Charakter, das man nicht jeden Tag findet.

Sonstige Informationen

Heizungsart: Zentralheizung
Energieträger: Öl

Rechtlicher Hinweis

Privatverkauf ohne Maklerprovision. Alle Angaben in dieser Anzeige beruhen auf Angaben/Unterlagen der Eigentümer und erfolgen ohne Gewähr. Irrtum und Zwischenverkauf vorbehalten. Energieausweis liegt zur Besichtigung vor.

Makleranfragen nicht erwünscht. Nach § 7 UWG sind unaufgeforderte Kontaktaufnahmen durch Makler ohne ausdrückliche Einwilligung des Empfängers verboten!

ohne-makler (OM) ist weder Anbieter noch Vermittler der Immobilie. OM betreibt eine Plattform für Immobilieneigentümer, die unter anderem die gleichzeitige Veröffentlichung einzelner Inserate auf mehreren Immobilienportalen ermöglicht. Die Inhalte dieser Inserate werden ausschließlich von Dritten verantwortet. Für die Richtigkeit, Vollständigkeit oder Rechtmäßigkeit der Angaben übernimmt OM keine Haftung. Hinweise auf mögliche Rechtsverstöße können jederzeit gemeldet werden und werden nach Prüfung umgehend bearbeitet.

Objektstandort

75045 Walzbachtal - Baden-Württemberg

Lage des Objektes

Lagebeschreibung

Wer sich nach einem Alltag sehnt, der gleichzeitig ruhig und praktisch ist, wird diese Lage lieben: Im alten Ortskern von Wössingen (Gemeinde Walzbachtal) wohnt man eingebettet in ein familienfreundliches Umfeld – und hat trotzdem kurze Wege zu allem, was das Leben angenehm macht. Und als Besonderheit: Der außergewöhnlich große Garten mit Obstbaumwiese mitten im Ortskern fühlt sich an wie ein privates Stück Land.

Infrastruktur & Anbindung:

S-Bahn „Wössingen Ost“ ca. 10 Min. fußläufig – direkte Verbindung Richtung Karlsruhe (u. a. S4 / RE45)

Autobahnen A5, A6, A8 in wenigen Minuten erreichbar

Im Ort bzw. fußläufig: Grundschule, Kindergärten, Ärzte, Einkaufsmöglichkeiten

In näherer Umgebung u. a.: 2 Bäckereien, 2 Restaurants, Café, Arzt, Rathaus, außerdem Grün-/Parkanlagen, Postannahmestellen, Fitnessstudio, Bibliothek, Physiotherapeut

Natur direkt vor der Tür: Felder, Wiesen, Wälder – sowie Golf im Golfclub Johannesthal in der Nähe

Hier bekommt man das, was selten geworden ist: Dorfkern-Leben mit echter Ruhe, guter Anbindung und dem Gefühl, dass Freizeit nicht geplant werden muss – sie beginnt vor der Haustür.
Infrastruktur (im Umkreis von 5 km):
Apotheke, Lebensmittel-Discount, Allgemeinmediziner, Kindergarten, Grundschule, Öffentliche Verkehrsmittel

Anbieter kontaktieren

Anbieter

OM PropTech GmbH
Humboldtstraße 25a
21509 Glinde

Kontakt

Telefon -
Fax -
Website www.ohne-makler.net

Ansprechpartner/in

Privat vom Eigentümer
Weitere Anbieterdaten