Renovierungsbedürftiges Reihenendhaus mit Anbau in Aschheim

749.000 €
Kaufpreis
177,38 m²
Wohnfläche
6
Zimmer
immobilien.de Nr.: 9391860 Objektnummer: 85609#LmYaZj
Ansicht
Rückansicht
Wohnzimmer
Blick vom WZ über den Essplatz in die Küche
Treppenhaus ins Obergeschoss
split level
Raum im Obergeschoss
Bad
Blick in den Garten
Wohnzimmer in "Haus 2"
offene Küche in "Haus 2"
Bad "Haus 2"
Diele "Haus 2"
Terrasse
aus der Umgebung
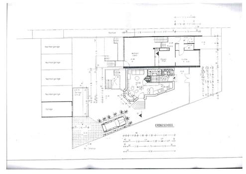
Grundriss EG
Grundriss EG beide
Grundriss OG
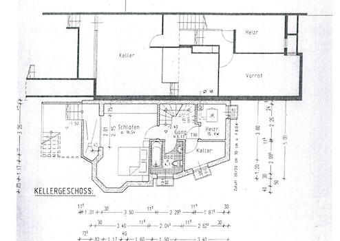
Grundriss UG
Grundriss KG beide
Schnitt

Preise & Kosten

Kaufpreis 749.000 €
Nebenkosten keine Angabe
Maklerprovision 2,975 %

Größe & Zustand

Wohnfläche 177,38 m²
Grundstücksfläche 360 m²
Zimmer 6
Baujahr 1972
Letzte Modernisierung 2018
Verfügbar ab das Objekt steht leer

Energie

Energieausweistyp Bedarfsausweis
Ausstellungsdatum 09. 02. 2018
Gültig bis 08.02.2028
Baujahr (laut Energieausweis) 1972
Endenergiebedarf 217.5
Heizungsart Zentralheizung
Wesentlicher Energieträger Gas
Energieträger/Befeuerung Gas

Objektbeschreibung

Das Objekt befindet sich am Nordrand der Gemeinde Aschheim, in der Nähe der Reitanlage. Es handelt sich um ein 1972 erbautes Reihenendhaus, welches 1997 um einen Anbau ergänzt wurde. Beide Einheiten haben gemeinsame Hausanschlüsse und sind weder juristisch noch verbrauchstechnisch geteilt / getrennt.
Das ursprüngliche Reihenhaus wurde in Split-Level Bauweise errichtet, der Anbau ist eingeschossig. Beide Häuser sind voll unterkellert.
Der Garten wurde so gestaltet, dass vor den westseitigen Kellerräumen Terrassen entstanden sind, diese Kellerräume sind also voll nutzbar. Siehe Grundriss, Schnitt und Bilder.
Das ursprüngliche Reihenhaus hat 5 Zimmer und den nutzbaren Kellerraum, der Anbau ein Zimmer und den nutzbaren Kellerraum. Insgesamt ist die genauere Beschreibung auf Grund der Komplexität schwierig, hier hilft sicher das Studium der angehängten Bilder, der Grundrisse und des Schnitts.
Wichtiger ist die Erwähnung, dass Sämtliches renovierungsbedürftig ist!
Sollte das Objekt grundsätzlich für Sie interessant sind kann am besten eine Besichtigung helfen.

Ausstattung

Anzahl der Etagen im Haus 2
 
Bad 2
Bad Dusche, Wanne
Boden Fliesen, Laminat
Terrassen 1
Garage/Stellplätze 2
Keller
Die Ausstattung des Objektes ist sehr einfach.
Nach etlichen Renovierungsarbeiten kann hier aber ein sehr individuelles Objekt entstehen.
Die Fenster sind etwa aus dem Jahre 2000. Auch alle weiteren Einrichtungen, insbesondere die Bäder sind länger nicht erneuert. Nach Verkäuferangabe wurde die Heizungsanlage 2018 erneuert.
Wir sind bei der Kalkulation des Angebotspreises davon ausgegangen, dass der Erwerber im Haus einige Veränderungen / Erneuerungen vornehmen wird.
Im Erdgeschoss des ursprünglichen Reihenendhauses befindet sich eine Gästetoilette, das Bad mit Badewanne ist im Obergeschoss. Der Anbau hat ein Badezimmer mit Dusche.
Die Einbauküche halten wir nicht für werterhöhend.
Die beiden Garagen sind im Kaufpreis enthalten.

Sonstige Informationen

Wir bieten das Objekt mit einem qualifizierten Alleinauftrag an.
Wenn wir mit diesem Exposé Ihr Interesse geweckt haben, bitten wir um Kontaktaufnahme per Mail über die einschlägigen Webseiten, auf denen Sie dieses Angebot gefunden haben.
Wir senden Ihnen dann kostenfrei weitere Informationen zu.
An dieser Stelle sei der Hinweis gestattet, dass die in diesem Exposé enthaltenen Inhalte von Dritten stammen, und wir deswegen keine Haftung übernehmen können. Wir bitten insofern um Ihr Verständnis.
Über eine Kontaktaufnahme freuen wir uns!! Zwischenverkauf vorbehalten!

Objektstandort

85609 Aschheim

Lage des Objektes

Das Objekt liegt sehr ruhig, am Rande von Aschheim.
Sämtliche Einrichtungen des täglichen Bedarfs befinden sich in der Nähe und sind fußläufig erreichbar.
Aschheim ist eine Gemeinde mit ca. 9.250 Einwohnern und liegt sehr verkehrsgünstig zwischen der Landeshauptstadt München und dem Flughafen, nahe der BAB 99.

Anbieter kontaktieren

Anbieter

Andreas Eissfeldt Immobilien
Possartstr. 24
81679 München

Kontakt

Telefon 089-99848530
Fax 089-998944-05
Website www.eissfeldt.de

Ansprechpartner/in

Herr Andreas Eissfeldt
Weitere Anbieterdaten