Ruhig gelegene Doppelhaushälfte mit zwei Wohnungen am Ortsrand von Ebern
299.000 €
Kaufpreis
137,96 m²
Wohnfläche
5
Zimmer
immobilien.de Nr.: 9391859
Objektnummer: 9610602#LmYaZj
Preise & Kosten
| Kaufpreis | 299.000 € |
| Nebenkosten | keine Angabe |
| Maklerprovision | 2,975 % |
Größe & Zustand
| Wohnfläche | 137,96 m² |
| Grundstücksfläche | 554 m² |
| Zimmer | 5 |
| Baujahr | 1989 |
| Verfügbar ab | 1. Februar 2026 |
Energie
| Energieausweistyp | Bedarfsausweis |
| Ausstellungsdatum | 14. 08. 2025 |
| Gültig bis | 13.08.2035 |
| Baujahr (laut Energieausweis) | 1989 |
| Endenergiebedarf | 229.3 |
| Heizungsart | Zentralheizung |
| Wesentlicher Energieträger | Gas |
| Energieträger/Befeuerung | Gas |
Objektbeschreibung
Diese 1989 erbaute Doppelhaushälfte besticht durch ihre ruhige und sonnige Lage am Rande von Ebern.
Grundsätzlich ist das Haus als Zweifamilienhaus konzipiert.
Das Dachgeschoss war vermietet und wird frei, es ist in gepflegtem Zustand.
Nach Südosten hat man einen sehr schönen Blick vom Garten über mehrere grüne Hügel.
Die sehr große Fensterfläche erhöht die Wohnqualität durch eine hervorragende Belichtung.
Der große Garten lädt zur Entspannung und Erholung ein und ist uneinsehbar. Die Garage schließt direkt an das Haus an, ist aber nur von außen zu betreten.
Nach einigen Renovierungsarbeiten (u.a. gibt es im Keller leichte Feuchtigkeit) kann hier eine Wohlfühloase für Menschen entstehen, die Ruhe schätzen.
Das Objekt verfügt über eine Zisterne für Brauchwasser und eine Photovoltaikanlage, von welcher mindestens die Batterie defekt ist.
Grundsätzlich ist das Haus als Zweifamilienhaus konzipiert.
Das Dachgeschoss war vermietet und wird frei, es ist in gepflegtem Zustand.
Nach Südosten hat man einen sehr schönen Blick vom Garten über mehrere grüne Hügel.
Die sehr große Fensterfläche erhöht die Wohnqualität durch eine hervorragende Belichtung.
Der große Garten lädt zur Entspannung und Erholung ein und ist uneinsehbar. Die Garage schließt direkt an das Haus an, ist aber nur von außen zu betreten.
Nach einigen Renovierungsarbeiten (u.a. gibt es im Keller leichte Feuchtigkeit) kann hier eine Wohlfühloase für Menschen entstehen, die Ruhe schätzen.
Das Objekt verfügt über eine Zisterne für Brauchwasser und eine Photovoltaikanlage, von welcher mindestens die Batterie defekt ist.
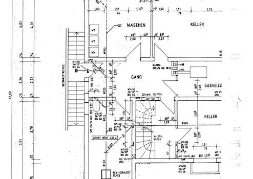
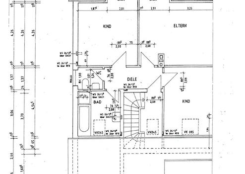
Ausstattung
| Anzahl der Etagen im Haus | 2 |
| Bad | 2 |
| Bad | Wanne, Fenster |
| Boden | Fliesen, Laminat |
| Garage/Stellplätze | 1 |
| Keller |
Die Ausstattung des Objektes ist im Dachgeschoss sehr gepflegt, insgesamt aber mehrheitlich veraltet.
Wir sind bei der Kalkulation des Angebotspreises davon ausgegangen, dass der Erwerber im Haus einige Veränderungen / Erneuerungen vornehmen wird.
Im Erdgeschoß und im Dachgeschoss befindet sich jeweils ein Badezimmer mit Badewanne und eine Küche. Im Keller ist eine weitere Toilette vorhanden.
Die Heizungsanlage ist ebenfalls aus dem Baujahr.
Wir sind bei der Kalkulation des Angebotspreises davon ausgegangen, dass der Erwerber im Haus einige Veränderungen / Erneuerungen vornehmen wird.
Im Erdgeschoß und im Dachgeschoss befindet sich jeweils ein Badezimmer mit Badewanne und eine Küche. Im Keller ist eine weitere Toilette vorhanden.
Die Heizungsanlage ist ebenfalls aus dem Baujahr.
Sonstige Informationen
Wir bieten das Objekt mit einem qualifizierten Alleinauftrag an.
Wenn wir mit diesem Exposé Ihr Interesse geweckt haben, bitten wir um Kontaktaufnahme per Mail über die einschlägigen Webseiten, auf denen Sie dieses Angebot gefunden haben.
Wir senden Ihnen dann kostenfrei weitere Informationen zu.
An dieser Stelle sei der Hinweis gestattet, dass die in diesem Exposé enthaltenen Inhalte von Dritten stammen, und wir deswegen keine Haftung übernehmen können. Wir bitten insofern um Ihr Verständnis.
Über eine Kontaktaufnahme freuen wir uns!! Zwischenverkauf vorbehalten!
Wenn wir mit diesem Exposé Ihr Interesse geweckt haben, bitten wir um Kontaktaufnahme per Mail über die einschlägigen Webseiten, auf denen Sie dieses Angebot gefunden haben.
Wir senden Ihnen dann kostenfrei weitere Informationen zu.
An dieser Stelle sei der Hinweis gestattet, dass die in diesem Exposé enthaltenen Inhalte von Dritten stammen, und wir deswegen keine Haftung übernehmen können. Wir bitten insofern um Ihr Verständnis.
Über eine Kontaktaufnahme freuen wir uns!! Zwischenverkauf vorbehalten!
Lage des Objektes
Das Objekt liegt sehr ruhig, am Rande von Ebern umgeben von Natur. Weitere Bebauung ist hier in absehbarer Zeit nicht zu erwarten. Eine größere Straße ist in der Nähe, aber wenig beeinträchtigend.
Sämtliche Einrichtungen des täglichen Bedarfs befinden sich im ca. 700m entfernten Zentrum von Ebern.
Ebern ist eine Gemeinde mit ca. 7.300 Einwohnern und liegt in Unterfranken, 26km von Haßfurt entfernt.
Sämtliche Einrichtungen des täglichen Bedarfs befinden sich im ca. 700m entfernten Zentrum von Ebern.
Ebern ist eine Gemeinde mit ca. 7.300 Einwohnern und liegt in Unterfranken, 26km von Haßfurt entfernt.
Anbieter kontaktieren
Kontakt
| Telefon | 089-99848530 |
| Fax | 089-998944-05 |
| Website | www.eissfeldt.de |
