Provisionsfrei* 4-Familienhaus in Stuttgarter Villengebiet mit Wellness-Hobbyraum - Privatverkauf
1.650.000 €
Kaufpreis
364 m²
Wohnfläche
143 m²
Nutzfläche
14,5
Zimmer
immobilien.de Nr.: 9391815
Objektnummer: 1763585067-[20658]
Dateien
Preise & Kosten
| Kaufpreis | 1.650.000 € |
| Nebenkosten | keine Angabe |
| Maklerprovision |
Größe & Zustand
| Wohnfläche | 364 m² |
| Nutzfläche | 143 m² |
| Grundstücksfläche | 603 m² |
| Zimmer | 14,5 |
| Baujahr | 1939 |
| Letzte Modernisierung | 2018 |
| Verfügbar ab | sofort/kurzfristig (3 Wohnungen) |
| Zustand | Teil Vollrenoviert |
Energie
| Energieausweistyp | Bedarfsausweis |
| Gültig bis | 2028-03-11 |
| Endenergiebedarf | 157 |
| Heizungsart | Zentralheizung |
| Energieträger/Befeuerung | Gas |
Objektbeschreibung
Mehrfamilienhaus in Villengegend: Im Geiger 75, 70374 Stuttgart
Zu den einzelnen Wohnungen:
- Nutzung als Anlageobjekt und/oder (teilweise) Eigennutzung möglich
- momentan sind bereits 2 Wohnungen frei (HG & EG)
- die DG Wohnung wird Ende November 2025 frei
- die OG Wohnung ist vermietet
- HG: 3 Zimmer, Bad, Küche, Flur und Terrasse, Wohnfläche ca. 90 m²
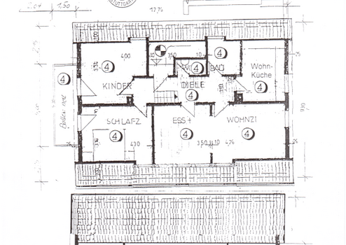
- EG & OG: 4 Zimmer, Flur, Bad, Küche, WC, 2 Balkone, Wohnfläche ca. 100 m²
- DG: 3,5 Zimmer, Bad, WC, Küche, Flur und Balkon, Wohnfläche ca. 74 m² + Nutzfläche von ca. 14 m² im ausgebauten Bühnenbereich
Sonstiges:
- Hobbyraum (Wellnessbereich) im Nebengebäude unter der linken Garage
- Keller: 4 Räume
Momentane/letzte Monats-Kaltmieten:
- HG: 1272
- EG: 1770
- OG: 1675
- DG: 1330
- Hobbyraum (vermietet an OG Mieter): 430
- Garage links (vermietet an OG Mieter): 140
- Garage rechts: 160
Bei diesem Objekt überzeugt insbesondere das tolle Gesamtkonzept. Angefangen von der schönen Villen-Wohnlage im Grünen, den weiten Nachbarabständen und dem parkartigen Garten, der guten Ausstattung bis hin zu dem stilvollen Gebäude mit herrlichem Altbau-Ambiente. Die Wohnungen sind am Besten für einen 2-3 Personenhaushalt geeignet. Die Wohnungen im Dachgeschoß und im Hanggeschoß sind auch für eine Wohngemeinschaft geeignet.
Zum stilvollen Gebäude:
- frühere Architektenvilla, heute Wohnhaus mit 4 Einheiten + großem Garten
- erbaut von dem bekannten Architekten und Bauunternehmer Rudolf Jordan zur Eigennutzung, natürlich nur mit den besten Baumaterialien erstellt
- das Haus verbindet die Vorteile eines repräsentativen Altbaus (Charme und Ausstrahlung) mit den Vorteilen einer neubaugleichen Haustechnik
- kleine Wohneinheit statt große Wohnanlage/Hochhaus/Wohnsilo/Trabantenstadt
- Totalsanierung 2004/Wohnungsrenov. sukzessiv bis 2024/Ursprungsbaujahr 1939
- mit viel Liebe zum Detail wurde das stilvolle Ambiente erhalten
- solide 2 ½ geschossige Bauweise mit überaus massiven Außenwänden
- nur eine Wohnung pro Etage; dadurch keine fensterlosen Küchen/WCs/Bäder
- sehr helle und lichtdurchflutete Zimmer dank großzügiger Fensterflächen
- Anwesen mit gepflegter Privathaus-Atmosphäre statt Mietshaus-Charakter
- Gesundes Wohnraumklima: teilweise 30-40 cm starke Außenwände dienen als Wärmespeicher und regulieren die Raumfeuchtigkeit. Keine muffigen, feuchten, schimmel-anfälligen Betonwände. Durch diffusionsoffene, atmungsaktive Außenwände ohne PE-Folie und Styropor wird das Raum-klima positiv beeinflusst ? Wohlfühlen statt Wohnen unter ungesunder und "miefiger Käseglocke"
- Diverse mediterrane Elemente (z.B. Rundsäulen/Balkonvorbauten/Natursteine) bringen sommerliche Lebensfreude sowie südländischen Charme und Flair
- Ideal sind die großzügigen + sonnenverwöhnten Balkon- und Terrassenflächen, die eine nahtlose Verbindung von Haus und Natur darstellen
- Gepflegter Gesamtzustand von Gebäude und Garten ohne Renovierungsstau
- zusammen mit der guten Wohnlage + Ausstattung ergibt sich ein hoher Wohnwert
- Angenehm ruhige und freundliche Hausgemeinschaft ohne Stress und Streit
Die Vorteile eines Altbaus verbinden sich mit den Vorteilen eines Neubaus:
- Stil, Charme, Flair, Atmosphäre und Ästhetik eines schönen Altbaus in Verbindung mit einer angenehmen Deckenhöhe sind von keinem Neubau zu toppen
- Altbauwohnungen sind viel wohnlicher und haben ein gesünderes Wohnraumklima
- der Altbau bietet Privathaus-Atmosphäre mit großen Gärten + Nachbarabständen
- Neubauwohnungen dagegen haben meist größere Balkone, eine bessere Qualität, sind technisch auf dem neusten Stand und bieten einen höheren Komfort
- aber wer will schon gern in einer Trabantenstadt/Hochhaus/Wohnsilo wohnen, umringt von lauter Nachbarn (oben, unten, rechts, links) und wer mag einen unpersönlichen, dunklen Treppenhauszugang, vorbei an zig Nachbareingangstüren mit unzähligen Schuhen und diversen Küchengerüchen
- beim Neubau lärmt vorne oft der nervige Straßenverkehr + rückwärtig schaut man in den Hinterhof, auf Mülltonnen und das Nebenhaus (dichte Bebauung)
- viele bekommen in Neubauwohnungen Beklemmungen, fühlen sich eingekesselt und haben Platzangst, d.h. Ihnen fällt buchstäblich die Decke auf den Kopf
- so haben sowohl Altbauwohnungen als auch Neubauwohnungen zahlreiche individuelle Vor- und Nachteile. Deshalb die Frage: Darf’s ein bisschen mehr sein?
- Sie sollten sich nur mit dem Optimum zufriedengeben! Ein nachhaltig optimierter Altbau in schöner Lage mit neuen Bädern/Küchen/Haustechnik + großen Balkonen hat natürlich viel Flair und Charme; ist aber nur schwer zu finden und hat seinen Liebhaberpreis und ist naturgemäß meist teurer als ein Neubau-Erstbezug, denn hier vereinen sich quasi die Vorteile eines Neubaus mit denen eines Altbaus.
- Hier haben Sie Neubau-Komfort gepaart mit herrlichem Altbau-Ambiente. Hier haben Sie repräsentative Privathaus-Atmosphäre statt ödem Mietshaus-Charakter. Das Anwesen Im Geiger 75 bietet das Optimum: Neubaukomfort mit Altbauambiente!
Zum Garten/Grundstück:
- parkartig angelegter Garten mit Grillplatz, Sitzbänken, Sonnenmarkise & Brunnen
- hier können Sie ruhig mal feiern (Grillfest, Geburtstag, Gartenparty)
- Weite Nachbarabstände und üppiges Grün erlaubt es den Mietern, sich ungestört in schönster Natur zu entspannen ? ein Plus an Lebensqualität.
Zu den einzelnen Wohnungen:
- Nutzung als Anlageobjekt und/oder (teilweise) Eigennutzung möglich
- momentan sind bereits 2 Wohnungen frei (HG & EG)
- die DG Wohnung wird Ende November 2025 frei
- die OG Wohnung ist vermietet
- HG: 3 Zimmer, Bad, Küche, Flur und Terrasse, Wohnfläche ca. 90 m²
- EG & OG: 4 Zimmer, Flur, Bad, Küche, WC, 2 Balkone, Wohnfläche ca. 100 m²
- DG: 3,5 Zimmer, Bad, WC, Küche, Flur und Balkon, Wohnfläche ca. 74 m² + Nutzfläche von ca. 14 m² im ausgebauten Bühnenbereich
Sonstiges:
- Hobbyraum (Wellnessbereich) im Nebengebäude unter der linken Garage
- Keller: 4 Räume
Momentane/letzte Monats-Kaltmieten:
- HG: 1272
- EG: 1770
- OG: 1675
- DG: 1330
- Hobbyraum (vermietet an OG Mieter): 430
- Garage links (vermietet an OG Mieter): 140
- Garage rechts: 160
Bei diesem Objekt überzeugt insbesondere das tolle Gesamtkonzept. Angefangen von der schönen Villen-Wohnlage im Grünen, den weiten Nachbarabständen und dem parkartigen Garten, der guten Ausstattung bis hin zu dem stilvollen Gebäude mit herrlichem Altbau-Ambiente. Die Wohnungen sind am Besten für einen 2-3 Personenhaushalt geeignet. Die Wohnungen im Dachgeschoß und im Hanggeschoß sind auch für eine Wohngemeinschaft geeignet.
Zum stilvollen Gebäude:
- frühere Architektenvilla, heute Wohnhaus mit 4 Einheiten + großem Garten
- erbaut von dem bekannten Architekten und Bauunternehmer Rudolf Jordan zur Eigennutzung, natürlich nur mit den besten Baumaterialien erstellt
- das Haus verbindet die Vorteile eines repräsentativen Altbaus (Charme und Ausstrahlung) mit den Vorteilen einer neubaugleichen Haustechnik
- kleine Wohneinheit statt große Wohnanlage/Hochhaus/Wohnsilo/Trabantenstadt
- Totalsanierung 2004/Wohnungsrenov. sukzessiv bis 2024/Ursprungsbaujahr 1939
- mit viel Liebe zum Detail wurde das stilvolle Ambiente erhalten
- solide 2 ½ geschossige Bauweise mit überaus massiven Außenwänden
- nur eine Wohnung pro Etage; dadurch keine fensterlosen Küchen/WCs/Bäder
- sehr helle und lichtdurchflutete Zimmer dank großzügiger Fensterflächen
- Anwesen mit gepflegter Privathaus-Atmosphäre statt Mietshaus-Charakter
- Gesundes Wohnraumklima: teilweise 30-40 cm starke Außenwände dienen als Wärmespeicher und regulieren die Raumfeuchtigkeit. Keine muffigen, feuchten, schimmel-anfälligen Betonwände. Durch diffusionsoffene, atmungsaktive Außenwände ohne PE-Folie und Styropor wird das Raum-klima positiv beeinflusst ? Wohlfühlen statt Wohnen unter ungesunder und "miefiger Käseglocke"
- Diverse mediterrane Elemente (z.B. Rundsäulen/Balkonvorbauten/Natursteine) bringen sommerliche Lebensfreude sowie südländischen Charme und Flair
- Ideal sind die großzügigen + sonnenverwöhnten Balkon- und Terrassenflächen, die eine nahtlose Verbindung von Haus und Natur darstellen
- Gepflegter Gesamtzustand von Gebäude und Garten ohne Renovierungsstau
- zusammen mit der guten Wohnlage + Ausstattung ergibt sich ein hoher Wohnwert
- Angenehm ruhige und freundliche Hausgemeinschaft ohne Stress und Streit
Die Vorteile eines Altbaus verbinden sich mit den Vorteilen eines Neubaus:
- Stil, Charme, Flair, Atmosphäre und Ästhetik eines schönen Altbaus in Verbindung mit einer angenehmen Deckenhöhe sind von keinem Neubau zu toppen
- Altbauwohnungen sind viel wohnlicher und haben ein gesünderes Wohnraumklima
- der Altbau bietet Privathaus-Atmosphäre mit großen Gärten + Nachbarabständen
- Neubauwohnungen dagegen haben meist größere Balkone, eine bessere Qualität, sind technisch auf dem neusten Stand und bieten einen höheren Komfort
- aber wer will schon gern in einer Trabantenstadt/Hochhaus/Wohnsilo wohnen, umringt von lauter Nachbarn (oben, unten, rechts, links) und wer mag einen unpersönlichen, dunklen Treppenhauszugang, vorbei an zig Nachbareingangstüren mit unzähligen Schuhen und diversen Küchengerüchen
- beim Neubau lärmt vorne oft der nervige Straßenverkehr + rückwärtig schaut man in den Hinterhof, auf Mülltonnen und das Nebenhaus (dichte Bebauung)
- viele bekommen in Neubauwohnungen Beklemmungen, fühlen sich eingekesselt und haben Platzangst, d.h. Ihnen fällt buchstäblich die Decke auf den Kopf
- so haben sowohl Altbauwohnungen als auch Neubauwohnungen zahlreiche individuelle Vor- und Nachteile. Deshalb die Frage: Darf’s ein bisschen mehr sein?
- Sie sollten sich nur mit dem Optimum zufriedengeben! Ein nachhaltig optimierter Altbau in schöner Lage mit neuen Bädern/Küchen/Haustechnik + großen Balkonen hat natürlich viel Flair und Charme; ist aber nur schwer zu finden und hat seinen Liebhaberpreis und ist naturgemäß meist teurer als ein Neubau-Erstbezug, denn hier vereinen sich quasi die Vorteile eines Neubaus mit denen eines Altbaus.
- Hier haben Sie Neubau-Komfort gepaart mit herrlichem Altbau-Ambiente. Hier haben Sie repräsentative Privathaus-Atmosphäre statt ödem Mietshaus-Charakter. Das Anwesen Im Geiger 75 bietet das Optimum: Neubaukomfort mit Altbauambiente!
Zum Garten/Grundstück:
- parkartig angelegter Garten mit Grillplatz, Sitzbänken, Sonnenmarkise & Brunnen
- hier können Sie ruhig mal feiern (Grillfest, Geburtstag, Gartenparty)
- Weite Nachbarabstände und üppiges Grün erlaubt es den Mietern, sich ungestört in schönster Natur zu entspannen ? ein Plus an Lebensqualität.
Ausstattung
| Anzahl der Etagen im Haus | 4 |
| Küche | Einbauküche |
| Bad | 4 |
| Bad | Dusche, Wanne, Pissoir |
| Boden | Fliesen, Parkett |
| Balkone | 5 |
| Terrassen | 1 |
| Garage/Stellplätze | 2 |
| Keller |
Zur Ausstattung und Bauausführung/nachhaltig optimierter Altbau:
- einladendes, großes und helles Treppenhaus mit schöner Eichenholz-Treppe
- zeitlos schöne Architektur/Fassade mit klassisch moderner Gestaltung
- alle Leitungen + die komplette Haustechnik sind erneuert (Neubaukomfort)
- hochwertige Parkettböden, teilweise Granit/Stuck/Ornamente/Majolika/Edelputz
- jede Wohnung mit Gewölbekeller; überdachte Fahrradplätze
- zentrale Gas-Brennwert-Heizung mit WW-Versorgung Baujahr 2024; Isolierglasfenster
- jede Wohnung mit kompletter Einbauküche inklusive Elektrogeräten (z.B. auch Waschmaschine/Trockner, Geschirrspüler, Herd/Backofen, Kühl-Gefrierkombination), moderne Bäder, Markise, Garderobe, teilweise Wellnesseinrichtung
- umfangreiche Elektrik: Kabel/Sat/Hausantenne; Tel/ISDN; Internet/DSL; Glasfaserkabel, Sensorlichtsteuerung, sodass man nie im Dunkeln ist
- einladendes, großes und helles Treppenhaus mit schöner Eichenholz-Treppe
- zeitlos schöne Architektur/Fassade mit klassisch moderner Gestaltung
- alle Leitungen + die komplette Haustechnik sind erneuert (Neubaukomfort)
- hochwertige Parkettböden, teilweise Granit/Stuck/Ornamente/Majolika/Edelputz
- jede Wohnung mit Gewölbekeller; überdachte Fahrradplätze
- zentrale Gas-Brennwert-Heizung mit WW-Versorgung Baujahr 2024; Isolierglasfenster
- jede Wohnung mit kompletter Einbauküche inklusive Elektrogeräten (z.B. auch Waschmaschine/Trockner, Geschirrspüler, Herd/Backofen, Kühl-Gefrierkombination), moderne Bäder, Markise, Garderobe, teilweise Wellnesseinrichtung
- umfangreiche Elektrik: Kabel/Sat/Hausantenne; Tel/ISDN; Internet/DSL; Glasfaserkabel, Sensorlichtsteuerung, sodass man nie im Dunkeln ist
Sonstige Informationen
BITTE KEINE MAKLERANFRAGEN!
Lage des Objektes
Zur Wohnlage "Im Geiger/Memberg":
- Villengebiet; beste Halbhöhenwohnlage von Stuttgart Bad Cannstatt mit schönem Blick rundum und sehr guten Luftverhältnissen
- Nähe zur Lerchenheide = Natur pur (Spazier-/Sport-/Joggingmöglichkeiten fußläufig)
- angenehm ruhige Lage ohne Durchgangsverkehr (Anliegerstraße, 30-er Zone)
- kaum Parkplatzprobleme vor dem Haus (das gibt’s nur selten in Stuttgart)
- gute Infrastruktur/gewachsenes Wohngebiet: im 300 m Radius erreichen Sie Bäcker, Metzger, Bank, Lebensmittelmarkt, Kirche, Gaststätte, U-Bahn, etc
- U-Bahnhaltstelle "Antwerpener Straße" ist keine 5 Gehminuten (280 m = 950 feet) entfernt, mit Endhaltestelle Stuttgart-Vaihingen
- S-Bahnhaltestelle "Nürnberger Straße" der Linie S1 und S2 ist am Anfang der Straße Im Geiger gelegen, ca. 12 Gehminuten (750 m = 2460 feet), mit Direktanschluss Hauptbahnhof/ Vaihingen/Böblingen/Herrenberg/Flughafen
- Cannstatt liegt zentral im wirtschaftsstarken Dreieck von Stuttgart, Fellbach/Waiblingen und Esslingen mit hervorragendem Arbeitsplatzangebot
- Abseits der großen Verkehrsströme und der Hektik des Alltags
- Kindergarten sowie Grundschule bis Gymnasium im Geiger vorhanden
- durch gute Verkehrsanbindung mit dem Auto sparen Sie Zeit: S-City, Fellbach, zur B14 (Winnenden), B29 (Schorndorf), B10 (Esslingen/Zuffenhausen), A8 + A81
- grüne Oase der Ruhe und Erholung, idyllisch + naturverbunden im Grünen
- vorne blickt man auf die Nachbarvorgärten und rückwärtig auf den Gartenpark
- hier finden Sie Sonne, Ruhe und Erholung und es ist doch so nah zur Stuttgarter Innenstadt und zum Arbeitsplatz
- Villengebiet; beste Halbhöhenwohnlage von Stuttgart Bad Cannstatt mit schönem Blick rundum und sehr guten Luftverhältnissen
- Nähe zur Lerchenheide = Natur pur (Spazier-/Sport-/Joggingmöglichkeiten fußläufig)
- angenehm ruhige Lage ohne Durchgangsverkehr (Anliegerstraße, 30-er Zone)
- kaum Parkplatzprobleme vor dem Haus (das gibt’s nur selten in Stuttgart)
- gute Infrastruktur/gewachsenes Wohngebiet: im 300 m Radius erreichen Sie Bäcker, Metzger, Bank, Lebensmittelmarkt, Kirche, Gaststätte, U-Bahn, etc
- U-Bahnhaltstelle "Antwerpener Straße" ist keine 5 Gehminuten (280 m = 950 feet) entfernt, mit Endhaltestelle Stuttgart-Vaihingen
- S-Bahnhaltestelle "Nürnberger Straße" der Linie S1 und S2 ist am Anfang der Straße Im Geiger gelegen, ca. 12 Gehminuten (750 m = 2460 feet), mit Direktanschluss Hauptbahnhof/ Vaihingen/Böblingen/Herrenberg/Flughafen
- Cannstatt liegt zentral im wirtschaftsstarken Dreieck von Stuttgart, Fellbach/Waiblingen und Esslingen mit hervorragendem Arbeitsplatzangebot
- Abseits der großen Verkehrsströme und der Hektik des Alltags
- Kindergarten sowie Grundschule bis Gymnasium im Geiger vorhanden
- durch gute Verkehrsanbindung mit dem Auto sparen Sie Zeit: S-City, Fellbach, zur B14 (Winnenden), B29 (Schorndorf), B10 (Esslingen/Zuffenhausen), A8 + A81
- grüne Oase der Ruhe und Erholung, idyllisch + naturverbunden im Grünen
- vorne blickt man auf die Nachbarvorgärten und rückwärtig auf den Gartenpark
- hier finden Sie Sonne, Ruhe und Erholung und es ist doch so nah zur Stuttgarter Innenstadt und zum Arbeitsplatz
Anbieter kontaktieren
Anbieter
immo-for-less Privat vom Eigentümer
Bierweg 19
99310 Arnstadt
Kontakt
| Telefon | |
| Mobil | |
| Fax | |
| Website | www.immo-for-less.de |
